
早几年去琶洲,走到哪都可以看到“保利”的字样,去到万胜围还有保利天悦、保利广场、保利写字楼群,当时简直可以称作“保利的琶洲”。

保利天悦 楼探摄
但这几年琶洲片区的写字楼越来越多,琶洲的“保利含量”就变弱了,再看看住宅简直都可以称作 “越秀的琶洲” 了。目前真正意义上的琶洲楼盘只有越秀琶洲南TOD和越秀新港东项目。

琶洲南TOD 楼探摄
琶洲南TOD火出圈,最近楼市回暖它更是一天能成交双位数。注意这不是127、143平的小面积,这些之前都清完了,现在卖出的是200平以上的大平层,这可是2500w+的购买力!
狂卖150亿,琶洲南TOD掏出箱底货(点击阅读)
所以琶洲南TOD现在货不多了,最近几天估计把剩下的10#推出后,今年就不再会有啥动作了。
买不到琶洲南TOD的朋友,也可以等下新港东项目,如无意外应该是琶洲南原班人马去销售。
01 四月开盘,都是大平层
去年我们就给大家爆料,新港东项目是全板式设计,户型都是大平层。

现在项目透露出更多信息,从内部规划图上看,新港东项目由 两栋27层 板式住宅组成,分为北塔、南塔。
项目面积不大,产品涵盖建面约227平、250平、267平户型,总户数只有135套。

外立面也有流出,基本跟琶洲南一致,采用公建化设计,运用大量玻璃材质。

外立面效果图
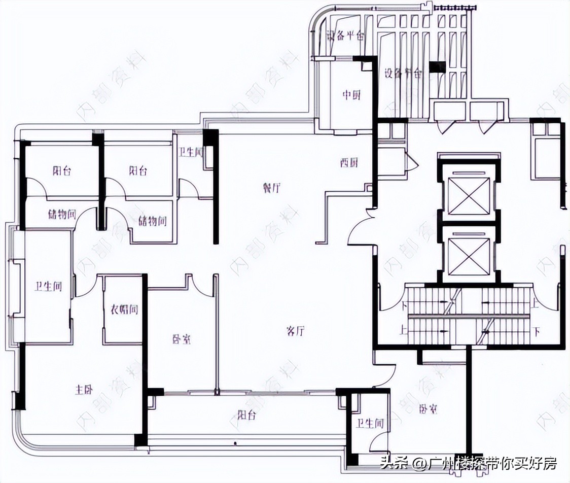
户型图也有一张,是 267平五房三卫 布局,主阳台放在了南边,就是欣赏琶洲南北面的河景观。

267平户型图

琶洲南河边景观 楼探摄
小道消息也透露,新港东首次开盘将定在 4月 ,刚好接棒琶洲南TOD。
02 稀缺度高,不可错过
去年10月官方就发布了琶洲经济开发区获批,《批复》严禁商品房开放。
也就是说,新港东西区很可能是琶洲西区最后一块宅地,并且目前确实没有其他信息支持琶洲西区还有住宅用地。
新港东项目很小,只有两栋楼,但是地理优势是真的强,北面就是琶洲CBD,南边背靠琶洲南TOD,生活配套能蹭琶洲南,门面点缀有琶洲CBD。

琶洲CBD 楼探摄
另外提醒大家,琶洲南TOD近期随时开10#,感兴趣的要抓紧了。
对琶洲南TOD和越秀新港东项目感兴趣或有疑问的,欢迎咨询。
