本案是一套高层住宅的改造项目,面积180m²,4房。
站于窗户前,眼望脚底一片绿木青松,生活原来可以如此美好。忍不住吟诗一句:“海棠亭午沾疏雨,便一饷,胭脂尽吐”。
不同于玫瑰的娇艳,海棠花的美更加内敛,细品才能感受它的极致。
主创设计师:董纬极


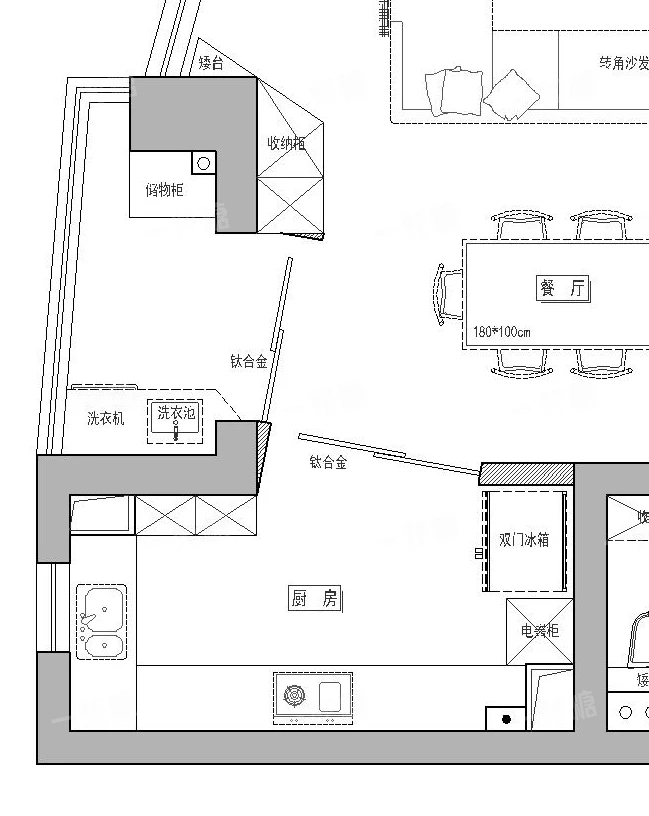
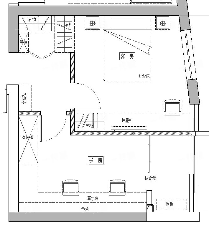
整个空间在各个区域加设了不同功能的收纳:如门口的鞋柜,小衣帽间收纳出门外套及伞具,卫生间洗漱及沐浴用品柜,客厅也增加了书柜功能,书房双人写字台及打印机柜,北阳台的吸尘器柜和洗衣柜,北阳台门口的生活用品。

玄关正面即是衣帽间的背面,衣帽间外体用了成品饰面包裹,接缝留在画的一侧,整体玄关用了比较深的色调,故选了有延伸感的画作。

木饰面一直延伸到客厅,并且主卧的入口做了暗门处理,搭配浅灰沙发,黑白根大理石茶几,使整个空间看起来大气,时尚。

从客厅望向餐厅区域

客厅侧面做了整面书柜。区域的色块划分和柜门的排版考虑左右呼应的对称性。局部的开放架,使厚重的柜体变得透气,同时也方便打理。

小小的读书角,脏粉色的天鹅绒沙发与简约画作,浓浓的艺术气息。电视柜是选用的仿大理石纹的饰面板。

从厨房门口望向客厅

电视墙是选用的布纹样式,与沙发布纹相呼应。

千鸟格的窗帘


墙面是选用的明度和彩度略低的颜色,就是所谓的莫兰迪色调。壁灯使墙面不再呆板,利用光的效果形成一种造型。

鲸鱼桌脚的餐桌是特意选的。


正对门墙面选了两种不同颜色的瓷砖做拼花处理。瓷砖本身是30x60cm规格,一片砖裁切3块等腰三角形(损耗较大),对角铺贴。

透过暗门,里面是主卧。

主卧东南墙面选择了与餐厅背景相同的颜色,蓝色的天鹅绒软包床成为这个空间的主角。

床的两边都留了阅读灯。

次卧选用了灰色和棕黄色的搭配,床对面的电视梳妆组合柜采用了水泥色和木色的双色相拼。

床的两边是下垂式的壁灯

利用入户的小衣帽间的空间,划分出了一个内嵌的衣柜,便于次卧使用,同时不占用次卧的空间。

书房进门是收纳高柜,左侧低柜预留了打印机放置区域。双人书桌上方书柜,开放与封闭式收纳相结合。
