房子面积97㎡(使用面积),属于妥妥的三室两厅结构,之所以分享给大家,就是觉得很多细节不错,比如为了提高利用率,业主坚持在玄关塞冰箱,然后客厅设卡座,本以为多此一举,没想到效果出来,实用倍增!另外,储物收纳方面也做得不错,无论是电视墙,还是床头背景墙,业主老公只是打了一排柜子,没到好处那么多,太实用了!所以如若有需要,不妨就学他家这么装吧,而且还非常漂亮,不信给大家伙晒晒,相信不会让大家失望的。(图源:H&Y联创设计/原胡狸&胭脂设计。)

原始结构图

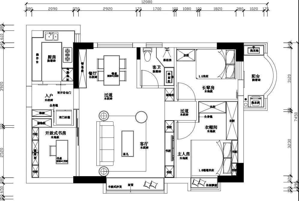
平面布局图
首先,这个是平面图,有一定拆改,有需要的不妨自行参考一下,接下来看实景。

这个是入户玄关,右侧定制了一面白色的顶天立地柜,看着美观大气,而且储物空间也大,加上中间的留空区,如此也算是经典的布局了。比较令人耳目一新的是左侧塞下了一个冰箱,如此大大的提高了利用率。

换一个角度,之所以要这么设计,是因为冰箱的对面空间是厨房,如此动线不会拉得太长。至于装饰效果,以顶部简洁的吊顶为主,结合嵌入式灯带,质感丰富。当然,地面的个性化瓷砖也很漂亮。

沿着玄关进来就是客餐厅了,其实就以整个户型来说还算南北通透,毕竟都有相互对流的窗户,只是没阳台而已,不过这并不妨碍有盛夏的穿堂风以及良好的空气质量。

稍微偏移一下视角,可以发现沙发并不靠墙,因为背后的墙体砸掉了,这样整个空间会变得通透很多,加上后面本身是布局为开放式书房,所以这样设计也实用。

客厅没有阳台,考虑到实用性,设有储物卡座,这样用来休闲以及收纳都没有问题。

接着是电视墙,直接以柜子作为背景,既显得大气也实用,端是一举两得,毕竟电视本身的休闲娱乐功能也没有浪费。

梳理一下,这个是客厅全景,虽然天花板有做吊顶,不过都比较简洁,加上部分灯带以及个性化的吊灯,效果是真喜欢。地面的话选用地板,看着自然大方,而且触感也好。

家具的话,以原木结构的布艺沙发为主,结合相应的椅子和茶几,看着轻巧大方,空间也灵活很多。对面的话可以看到餐厅。

这个是具体效果,吊顶拉平,结合白色的背景墙,再适当点缀一幅装饰画,满满活力。至于餐桌椅,和前面家具差不多,这里就不再赘言了,不过蒙上格子桌布后,显得文艺不少。

另一面是餐柜,无把手的简约柜门实用又大气,加上中间预留的置物台,整体颇为人性化。

另外,餐柜预留了部分开放式结构,如此有藏有露的设计更实用。

来到厨房,布局以U型结构为主,这样利用率高。
装修的话,为大理石墙砖搭配木色无把手隐形柜,整体颜值非常高!

这个是书房,虽然打通变为开放式结构,但是考虑到隐私,右边还有设有推拉门,加上窗帘,整体依然不失实用。

内景。书房这里设有一张结构轻巧的木质书桌,主要是为了方便移动,因为背面的柜子拉下来可以变为床,这样如果有需要的话,作为临时客房完全没问题。另外,转角柜的利用率也确实高。

来到第二间房,也是父母房,为了能充分释放空间,睡床选择靠墙角摆放,这样右侧就能形成一条过道,以便通往阳台晾晒衣物。左侧的话,则是定制的衣柜,款式还不错,看着美观大气。

这个是阳台,可以看到对面的洗衣机和顶部的晾衣架。

第三间房,也是主房,业主老公只是在床头打了一排柜子,不仅储物空间大增,而且作为背景墙也大气很多。其它的就是对面的飘窗和睡床了,都不错,用来放松休息都挺好。

这个是床头右侧(靠飘窗方向)的一角,中间的收纳槽可以放诸如手机和书籍、充电线等一些小物件,这样就不需要床头柜了。还有就是墙壁上的壁灯以及卧室的双控开关了,如此休息时就不需要提前去关灯再跑回来睡觉,很方便。

换一个角度则是衣柜,储物空间真的很大。

最后是唯一的一个卫生间,效果还不错,简约时尚,而且该有的功能一个不落,而个人的话,最喜欢洗漱台,无论浴室柜还是镜柜,功能都非常强大!至此本案就分享到了这里,整体还不错,希望大家喜欢,谢谢啦!