你觉得30平米够住吗?
肯定回答不够的,但设计师的功用就是让不可能化为可能

户型小,谁说会活得逼仄又憋屈!
今天特地揭露,30平米以下的极限小户型
让你看看设计师如何发挥巧思,在小空间也能像,小豪宅一样住得舒适痛快!

▲ 图片来源/studio-open.com
多功能家具
空间小,家具就千万不能太占位,橱柜、床铺、沙发虽然体积大,又是家中必备的家具
要如何让这些家具隐而不见,就是设计师发挥实力的时刻了!
01 ) 床铺、厨房都藏墙里了!
26㎡
地点:伦敦
设计公司:Spheron Architects ▼

▲ 图片来源/spheronarchitects

▲ 平面图。图片来源/spheronarchitects
这是一个伦敦艺术工作者的家,为了让自己专注于创作
独处的空间变得非常重要,以“在修道院隐居生活”的概念
你能看到空间中几乎没有任何家具

▲ 图片来源/spheronarchitects

▲ 图片来源/spheronarchitects
看似家徒四壁,但必备的厨房、床铺都收进墙里了!
拉下中央的掀床,就成了舒适的主卧,床头两侧还藏了三倍多的收纳能当衣柜使用
衣服、生活用品也都能收得不露痕迹

▲ 图片来源/spheronarchitects
厨房则运用柜门遮掩,拉开左右移门,一套完整的厨具跃然眼前
而一旁的卫生间则用相用的木皮隐藏,生活机能其实很充沛
空间也变大不少

▲ 图片来源/spheronarchitects
02 ) 衣柜、洗衣机都放床下!
25㎡
地点:巴塞罗那
设计公司:Naimi Architecture ▼

▲ 图片来源/Naimi Architecture
在这只有25平米的小户型中,床架是空间中最大的家具
别小看这床架,内藏的机关可多了!

▲ 图片来源/Naimi Architecture
设计师特地运用“模块化”的概念,将床架分成5大区块:
- 一张双人床
- 自带插座的床头柜
- 衣柜
- 洗衣机柜
- 11个抽屉
床下所有的空间都用尽了!

▲ 图片来源/Naimi Architecture
床架前方的台阶也自带滚轮,能自由移动,还设置抽屉增加收纳空间
一次囊括收纳、洗衣、坐卧、睡寝,机能实在太强大了

▲ 图片来源/Naimi Architecture

▲ 图片来源/Naimi Architecture
墙面也不放过,利用搁架、门片柜在墙面扩增收纳

▲ 图片来源/Naimi Architecture

▲ 图片来源/Naimi Architecture
还运用双开门的古典设计,电脑设备也藏进墙内,既能扩增机能
在这古典的老建筑中也能增添优雅韵味不突兀

▲ 图片来源/Naimi Architecture
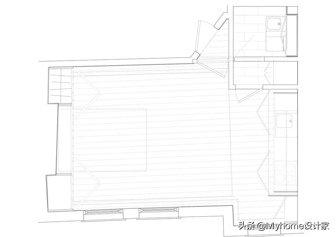
03 ) 餐桌与厨房严丝合缝
26㎡
地点:圣彼得堡
设计公司:studio-open ▼

▲ 图片来源/studio-open.com
当空间太小,家具的尺寸就得精密计算
特地考虑厨房不宜太大,精算过厨具尺寸后藏进柜里
空间看着不凌乱,也让出更多面积

▲ 图片来源/studio-open.com

▲ 图片来源/studio-open.com
就连餐桌的大小也算过了!
在电视墙与厨房之间留出合宜的空间,你能翻转90度使用
随即变身工作空间或餐厅,也能靠墙收好不占空间,视觉更开阔

▲ 图片来源/studio-open.com
同时客厅选搭沙发床,客厅也能一秒变卧室
只保留必备的多功能家具,面积变更大、空间更好用!

▲ 图片来源/studio-open.com

▲ 图片来源/studio-open.com

▲ 图片来源/studio-open.com
收纳倍增
当空间小到太逼仄,就怕收纳不够用,来看看这些惊人的创意收纳都怎么做
04 ) 别浪费门上、吊顶,都能打柜子
22㎡
设计师:Ophelia Doria、
Eduard Rule Maffeis
▼

▲ 图片来源/www.elledecoration.ru
这间22平的小户型简直小得没法住!
所有橱柜靠墙设置,才能有足够的空间摆放沙发、吧台

▲ 图片来源/www.elledecoration.ru
这户型小归小,幸好还有着三米五的吊顶高度
顺势将床铺挑高放置,利用OSB板作为隔断,围出睡寝区域
而通往床铺的阶梯,则是用衣柜堆叠,床铺下方也不放过设置壁柜
收纳量蹭蹭倍增,空间运用到极致

▲ 图片来源/www.elledecoration.ru
就连大门上方也不放过,从门上到吊顶设置满满的搁架
不仅能收进所有的书籍、生活用品,甚至怎么拿高处的收纳都帮你想好了!
特地将梯子挂墙不占空间,让收纳好拿又好收

▲ 图片来源/www.elledecoration.ru

▲ 图片来源/www.elledecoration.ru
05 ) 奇葩三角户型,也能扩增3倍收纳
25㎡
地点:阿根廷
设计公司:IR Arquitectura
▼

▲ 图片来源/IR Arquitectura
第一眼看到这户型简直太奇葩,是建筑经过分割后剩下的多馀空间
有著不规则的三角地带,小到很难用!
设计师特地纳入弧形露台,才让原本的18平米扩增至25平米

▲ 图片来源/IR Arquitectura

▲ 图片来源/IR Arquitectura
顺应三角空间配置厨柜与搁架,所有收纳都延伸至吊顶
达到最大收纳量,而卫生间则藏在厨房后侧,完善洗浴机能

▲ 图片来源/IR Arquitectura
为了不浪费空间,也将餐桌藏进柜子里,柜门一掀就能当桌板,简直太方便!

▲ 图片来源/IR Arquitectura
卧室则安排在搁架后方,利用柜体层层叠高
还能多出一张小巧的电脑桌板,工作、阅读毫不费力

▲ 图片来源/IR Arquitectura
06 ) 衣柜、厨房、电视墙,都收在一起
24㎡
地点:巴西
设计公司:Casa 100 Arquitetura
▼

▲ 图片来源/Casa 100 Arquitetura

▲ 平面图。图片来源/Casa 100 Arquitetura
为了不浪费空间,只安排最精简的家具:
厨房、餐桌、床铺
由于空间的纵深太小,设计师决定将所有柜子整合在一起!

▲ 图片来源/Casa 100 Arquitetura
将电视放在墙面正中央,左右两侧分别安排厨具与衣柜
电视下方分别留出吊挂区与抽屉区,让衣服、餐具都有足够的空间可收纳
同时利用冲孔铝板制成的移门巧妙遮掩,在需要下厨时、想看电视时,将移门拉开就能使用

▲ 图片来源/Casa 100 Arquitetura

▲ 图片来源/Casa 100 Arquitetura
阳台不做隔断,扩增室内空间,同时拆除卫生间的部分墙面
改为通透的玻璃砖,让光线得以进入空间各处,每一平米都明亮开阔

▲ 图片来源/Casa 100 Arquitetura

▲ 图片来源/Casa 100 Arquitetura

▲ 图片来源/Casa 100 Arquitetura
-------------------------------------------------------
微信搜寻﹝Myhome设计家﹞可以看更多装修资讯
#小户型# #室内设计# #设计案例# #梦想改造家# #装修案例参考#