地中海装修设计清爽舒适,将蓝天白云容纳在室内装修设计中,让居住在这里的人轻松自由。这样的装修总能给我们置身世外桃源的感觉,深都市青年喜欢。每天上班面对很多压力,家里能装修成地中海风格的装修则是极好的。各位业主跟随小编一起看看139O左右地中海装修效果图,看看地中海设计应该怎么做!

地中海风格装修案例一:
业主需求:喜欢地中海风格,大包给装修公司
设计理念:“地中海风格”的建筑特色是,拱门与半拱门、马蹄状的门窗。建筑中的圆形拱门及回廊通常采用数个连接或以垂直交接的方式,在走动观赏中,出现延伸般的透视感。
预算说明:大包模式,省时省力省心省钱

欢迎关注房天下装修,扫二维码
查看更多内容
地中海风格装修案例二:
设计说明:
项目名称:曦城国际
设计风格:地中海
家装类型:88理想装
工程面积:120平米
房屋类型:3居1厅2卫
整体报价:97284元
地中海风格的灵魂是"蔚蓝色的浪漫情怀,海天一色、艳阳高照的纯美自然",以海洋的蔚蓝色为基色调,白色和蓝色是典型的地中海颜色搭配,给人一种阳光而自然的感觉。

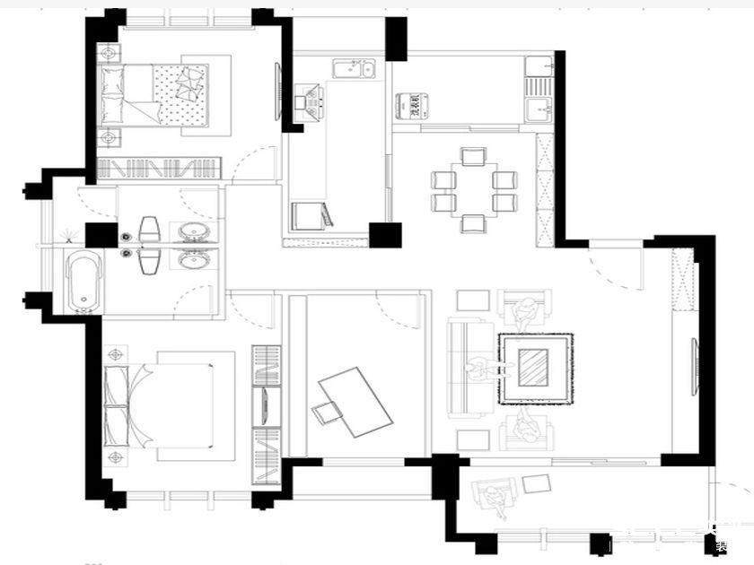
地中海风格装修案例三:
地中海风格无论是材料还是色彩都与自然达到了某种共契,设计灵感基于海边轻松、舒适的生活体验,少有浮华、刻板的装饰,处处使人感到悠闲自得;地中海家居设计元素有:白灰泥墙、连续的拱廊与拱门,陶砖、海蓝色的屋瓦和门窗;地中海风格的美包括“海”与“天”明亮的色彩、仿佛被水冲刷过后的白墙、薰衣草、玫瑰、茉莉的香气、路旁奔放的成片花田色彩、历史悠久的古建筑、土黄色与红褐色交织而成的强烈色彩;地中海风格保持简单的意念,捕捉光线、取材大自然,大胆而自由的运用色彩与样式;地中海风格的灵魂就是“蔚蓝色的浪漫情怀,海天一色、艳阳高照的纯美自然主义”

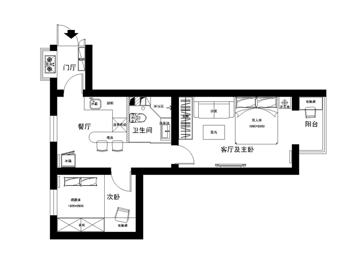
地中海装修案例四:
设计说明:
项目名称:团结湖小区
设计风格:地中海
施工单位:北京实创装饰公司
整体家装:装修一口价
家装类型:88理想装
工程面积:129平米
房屋类型:3居2厅1卫
整体报价:67780元
业主是一对北漂族夫妻,想在不大的空间里造出不一样的家的感觉。
