记得点击关注“装个好房子”哦~
每天为你带来装修干货、改造新灵感与美好生活故事
探寻美好居住方式,我们值得更好的生活!
----------------------------------------------
初见屋主@老闫时,可以用阳光来形容,长相甜美、爱笑,又自带优雅气质,平时喜欢喝红酒、撸猫,对生活、对审美都有着超高要求。

屋主@老闫
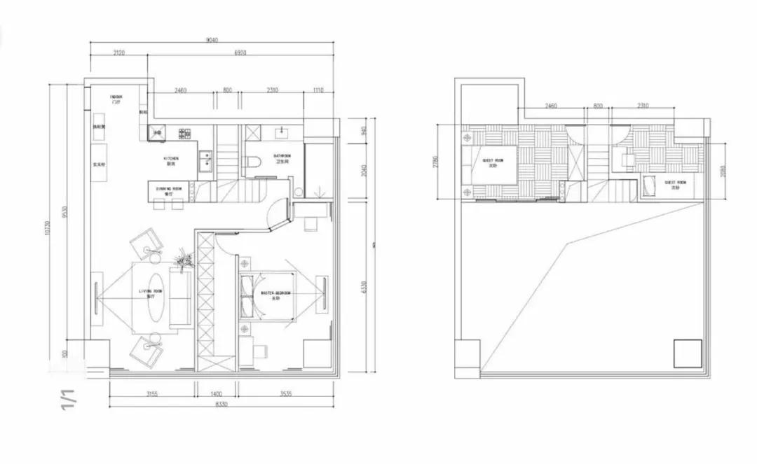
房屋改造前,是两个相邻又相互独立的同层小户型,一套是30+㎡一套是50+㎡,两套都很小,但好在层高有些优势,而且都位于边上,设计师将两套房子打通,不仅解决了户型逼仄的问题,而且改造后的房屋同时拥有两面无敌落地玻璃窗,开阔到不行。



改造重点:
1、打通两间小户型,原30+㎡户型设计了厨餐厅和客厅,原50+㎡户型设计成了主卧和卫生间。
2、利用3.5m层高优势,搭建钢架增设二楼空间,以loft的形式来增加使用面积。
3、在主卧隔出一个独立衣帽间,收纳老闫大量衣服、包包、鞋帽等。
4、增设楼梯、下面做满柜体,补充收纳。
5、将洗衣机、烘干机外移,解放卫生间空间。

搭建二层施工图

从客厅看向入门处,从这个角度可以看出二楼的结构了,做完平顶层高还有3.5m高,真的很奢侈。

由于层高不同,越过2.1m厨餐厅到3.5m的客厅,会有一种豁然开朗的感觉。

越过玄关就是厨餐厅的位置,这边看过去非常开阔,完全让人忽略这边只有2.1m高的事实,不会觉得压抑。

至于大家担心的开放式厨房油烟问题,用集成灶就解决了,而且还可以将上面的柜空间省下来,增加更多的储物空间。
橱柜是宜家的实木拼框,颜色很好看,自然不做作,橱柜对一个人来说完美足够啦~

厨房还做了吧台,下面正好放一个小冰箱,因为屋主不喜欢囤货,小冰箱也就足够了,不占地方~

地面利用六角砖和鱼骨拼木地板的拼接,巧妙地将区域做了划分,而且六角砖更有利于厨餐厅的清洁打扫,鱼骨拼木地板自带复古气息,与客厅的整体气质很搭。

这边可以看到厨房的高度,对于女生来说太友好了。



客厨餐厅连通,大面落地窗提供充足的光线和宽阔的空间感。开放、年轻、且带有些许复古年代感。


设计不同与一般的搭配设计,复古蓝半墙与棕色皮质沙发的搭配,立刻让这个家有了时尚感。

沙发一侧放了一些小植物,还有一盏淘来的中古落地灯和一组中古边柜,颜色和质感沉淀不是新东西能比的,当然家具也是可遇不可求,很多都只有一个。

沙发旁边还放了一个中古的旋转椅,这边平时就是朋友来坐在飘窗上或者椅子上聊天喝酒,格调十足。

沙发另一边,这个边几虽不是中古的,但韵味也还不错,完美地融合到整个环境中,色调也很暖。

这边看过去窗外风景很好,高层公寓果然不一般呢。

细脚胡桃木茶几组合让空间更显通透,地毯是宜家的牛皮地毯,每一块颜色都不一样~


老闫不看电视,所以客厅并没有设置电视,而是用了一些收藏的好玩的东西填满这里,墙面的颜色是一种类似中古绿,好看高级又优雅~

石膏线是拿剩下的油漆刷的,也很美~

这边看窗,采光很好,前面无遮挡,电动纱帘和红丝绒窗帘配一脸,右边的台子是为了这个壁炉砌的,尤记得设计壁炉的时候老闫一脸嫌弃,现在还想再买一个,真香~

壁炉里面装满了老闫喜欢的书籍,阳光透过大面积的白色纱窗,柔和不刺眼,疲倦的时候可以待在这里看书、撸猫,尽情享受宁静时光。

对面这个柜子是老闫在mue淘来的,一眼便沦陷了。


二 楼 卧 室
利用层高偷来的二楼空间,一间做了储物室,另外一间便做成了卧室,方便朋友或父母留宿。
超喜欢这个墙面颜色,摆上一个2.3m的床垫,直接放在地板上,一个超温馨的卧室就诞生了,超舒服,安全感也很强~

没用玻璃窗而是用了木百叶窗,比玻璃窗的隐私性要好,而且不用窗帘,省事实用又美观,看上去也很干净利落。

百叶窗投影在墙面的光感很好看,虽是二楼,但光线充足,窗户可以全部打开,现在老闫很喜欢睡在二楼,因为冬暖夏凉超舒服。

做了两个颜色的拼色,现场看真的很美很高级~墙角一把摇摇椅+置物架,轻松打造超舒适悠闲阅读角。
旁边的梯形置物架还是很推荐的,可以用来收纳睡衣和隔天衣物,美观又不占用空间,不使用时,本身就是一件装饰品。

床头柜、壁灯、装饰画等都采用了金色做点缀,满满的精致感。

主卧
主卧位于一楼,穿过这面复古墙面,便是改造后主卧和卫生间的位置。

挂画是屋主在泰国买回来的,床头依然是中古淘的,以及贝壳灯,整个家里都充斥着复古感,但又不是特别浓的那种。

主卧与客厅拥有同款大面落地窗。

等了很久才盼到的这么美的中古秘书柜,它只需要负责卧室的美貌就行了。


衣帽间是从主卧隔出来的,虽然面积只有8㎡左右。

衣帽间虽然不够大,但够高啊~所以配了滑梯,节省空间又方便拿取,里面放了120双鞋和各种包包衣服。


主卧对面就是卫生间的位置,由于洗衣机和烘干机被塞到了楼梯下面,卫生间显得特别宽敞。
洗漱区下面做成开放式还是很推荐的,这样分层的浴室柜能让物品更好的分类,不仅拿取方便,物品也可以分层收纳。

壁挂式马桶,既美观又节省空间。
旁边水泥猴服务员,趣味性十足,放置在马桶边,如厕时也方便放置随手的手机、书籍等。

黑色六角砖让人眼前一亮,家具细节特意采用黄铜材质,时尚又精致。



这面墙也价值不菲,并且还在继续加,小蝴蝶差点就被老闫送人,还好留了,很出色,喜欢中古的小玩意,大多数都得满满收藏,没有一次性买完的,最后那就是越来越多~

走廊的一头放了面镜子,既丰富了空间层次,又可以达到延伸空间的效果。

增设的楼梯下面做了储物,收纳能力很强,转角过来的楼梯下面放了洗衣机和烘干机,解放了卫生间的空间。


设计自己的家,就像是不断发酵的美酒,你坚持精心酿造,它给你回报就越丰富。
素材及图片来源于设计师:著名白羊座
-------[END]------