拥有一个自己的小房子多不容易啊,屋主@虞儿 从买房到装修、入住,操心的事情一件接一件。
都说69平套内装美式不可能,这个家还是做出了美式法式混搭风,用酒红、墨绿、烟灰蓝、点缀金高级配色,仿佛打翻了空间色彩盘。
以下文章内容来自一兜糖家居APP屋主:虞儿
屋主信息
职业 ui设计师
年龄 80后
地区 江苏南京
个人简介 强迫症加爱操心
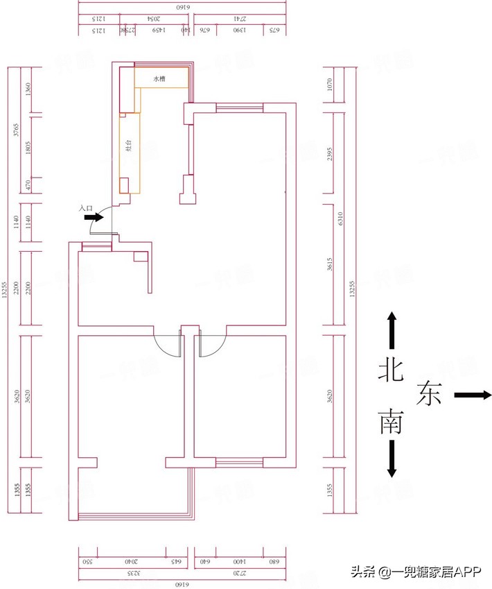
户型图

建筑面积79.85,套内69。双南一北,客厅中间,厨房朝北。

干湿分离做到了,小房间为了有大柜子,还是做了自己不太喜欢的榻榻米,因为听说容易生虫,有地暖的做榻榻米要慎重。

写在前面
原本打算用电脑好好编辑一下自己的全屋记,今天试了下才发现一dou糖只有手机端可以编辑,想偷懒的愿望落空了。
关于买房:
从2014年开始就有了买房的想法,当时就有感觉房地产市场应该是低谷期,本来是打算把现在住的老两房卖掉,换个学区稍微好点的让小朋友有个更好的学习环境。无奈家里那位怎么也不同意,拉着他去看房,他也看,就是不下决心买。那段时间真是难熬,其中的苦也只有我自己知道,前后看了好多地方,有老破小,也有新房,当我第一次去看新小区的时候当时的整个心情就是去它的学区,新房子多好啊。也交了一次保证金,还去了购房现场,当时折扣完感觉一百多平的房子也都是能买的,刚两百万出点头。可是只有我一个人在,有什么用呢?其实那段时间我真的很压抑,到后来看回现在买的这个小区,突然感觉没有第一次来看的时候那么破,因为比后来看的鼓楼区的那些老房子还是要新一些的。那次去看的同户型的房子,第二天就卖掉了。就在这个时候老公终于积极了起来,最后这套房子只看了一次他和婆婆去谈了一下就决定买下了。签约的时间我记得很清楚,2015年12月31日。
买完房也算是松了一口气,因为原房主说要住到七月,合同写的交房日期是7月1 日,谁知快到七月的时候,房主老婆说还要再住一两个月,当时他们户口也都没按合同迁走,于是吵了一架,还被人说不讲理。又是一番忍耐,顶着巨大的心理压力,从满心欢喜充满希望到实在难以忍受,幸好后来户口算是迁走了。
关于设计:
七月中左右终于收了房,喊了人来量房,出了简单的方案,又去找了自己心怡很久的设计师聊了一次,最后还是决定把设计交给他做,用他的话说就是专业的人做专业的事。因为自己也是设计师的原因,觉得更应该尊重他们的想法,虽然我是个爱操心的家伙,前后自己也想了好多方案,但我最后还是觉得他们的设计更合理,更专业。因为户型和结构的原因,没做太大的变动,更改后的洗手间光线也不太好,但我觉得还是实用至上吧,至少干湿分离和鞋柜,小卫浴柜真的是非常实用的设计。
玄关

有点后悔选了花色的瓷砖拼接,设计师说如果只用浅色拼花会更大气,就这样吧
还没入住,换鞋凳还没买,百叶门是一个小鞋柜,也是家里户型唯一改动的地方

改出来的鞋柜,有点小,但常鞋再买个换鞋灯应该够用了


入住后的玄关
客厅

沙发是永隆一眼看中的特价品,尺寸合适颜色合适,简直就是为我家量身定制的,毫不犹豫的拿下。

就差电视机了

性价比超高的餐桌椅,永隆有这个风格的家具,无奈不能订货,只能在现有的货里面选,谁知被我无意中发现了他家也有淘宝店,在这款特价和直线边的餐桌之间犹豫了好久,最后理智战胜了情感,事实证明没有选错,实物厚重质感不错。餐椅也是在这家买的,有两把有点毛刺,绿色真心好看,虽然这样也许没有全白的椅子好看,但是实在太喜欢绿色了,这颜色淘宝便宜的店里几乎是没有的,大爱。

本来在宜家买了个钟,可看到设计师发来的链接一下就被秒了,价格也不贵,实物不是太重,但还是挺好看的

餐厅


餐边柜
厨房


蒸箱明天安装,烤箱还没买


半入住后的厨房
卧室



这个壁灯是家里最满意的一个灯了,质感很好,比铁艺的好太多,以至于后来的镜前灯退了两次。


刚装好的空调,金色金色大爱
卫浴

为了省钱把折叠门改成了外开,稍微占了点地方,但还是挺美貌的。

真丝控专用洗衣液,不爱用洗手液的人表示这款泡沫的挺好用,透明的护墙角更好的保护墙纸不被刮坏。台盆一般,胜在便宜,因为进深只有47,只好用台上盆,toto那款薄边才是真爱,这个还是因为便宜,值了。

这个小不点卫浴柜还是挺能塞的,喜欢囤货的人表示满意,和垃圾桶一起买的垃圾袋也很好用。

移了马桶的位置,用了墙排,真的好打扫卫生。为了省钱没买杜拉维特,吉博力这个就是下面有个凹进去的设计,容易冲不干净,要换个软毛的马桶刷才好。喜欢用平板卫生纸的表示这个纸巾盒很好用,一大包纸妥妥的塞下。

卫生间只有两个平方,比较紧凑,万般纠结之后还是决定不装玻璃隔断,用浴帘代替。

刚开始心心念念的汉斯格雅,最终还是被价格打败,买了大名鼎鼎的老李家,质感还不错吧,只是切换出水的旋钮感觉有点不太科学,总是担心搞错,性价比还不错吧,也没有评价的那么夸张。还有很多说他回复慢的我也没体会到,有问必答,基本当天或次日就会回复,拍下留言改价就好,基本都有优惠。
阳台

窗户上的洞是新风的排风口,为了不在梁上打孔,只能牺牲窗户了,柜子里也浪费了一块,心痛。
儿童房



关于施工:
二手房装修从拆旧开始,因为原房主敲掉了厨房和餐厅之间的承重墙,我们又多了一道加固的程序,也因为如此,这次装修我对不破坏原有结构有了更多的坚持。坚持不在梁上打孔,也因为这个,我家多了好几个本不该有的方块块,只好想各种方法去遮丑。
整个装修过程是漫长的,16年8月31日开拆,因为加固,整个设计方案10月才正式结束,施工则拖到了10月底,再加上新风方案迟迟定不下来,中间各个环节之间的空档,再加上春节,正式完工已经是17年5月。幸好现在住的房子离这个房子也不远,下班后我可以经常跑跑工地,水电收工的时候请假监工,总算是完满收工。之后就是不停的往里面塞塞塞。。。
关于预算:
这次的预算做的还是比较好的,基本没超,能省的都省了,最超预算的就是门,实在是没想到门会贵那么多,老房子超高超厚,再加上折叠门一个顶两,实在是有点吃不消。
清单:
拆旧:4k+孙大锤
加固:6.5k建工设计院
设计:1w5树屋设计
施工:6w+熟悉的项目经理半包
窗户:1w2红叶门窗
地暖及热水循环:1w9八喜冷暖 (锅炉优尼卡)
新风:1w7柯泰冷暖(地出顶回)
水路改造及水电材料:9k+ 久通水电、江潮燕(材料)
开关面板:1.5K 淘宝扬州施耐德
灯带及主灯:3K+淘宝,T5雷士,射灯筒灯松下,主灯壁灯见链接
定制柜:3W 开来2.6W(主卧1.8米衣柜,次卧3.6米衣柜)红方4K(卫浴柜,开架,书架,阳台吊柜)
净水器:2K 佳尼特CR400-C-C-8
瓷砖:1.1W+ 新中源(客厅、卫生间)冠珠(厨房、阳台)
地板:4K莱茵阳光
踢脚线:800 万达金街四季红(10公分番龙眼)
防盗门:3K 家乐家盼盼
木门:1.5W 家乐家胖唐\金盛klc(锁还是建议淘宝,店里贵还会忽悠)
过门石、窗台石、挡水条:1.6K 装饰大世界李上雅
橱柜,烟机灶具:2.5W开来(淘宝悍高调味篮、宜家拉手法拉维金色)西门子LS65S956TI+ER76F232MP
电蒸箱:4869京东618 https://item.jd.com/1191072.html
厨房水槽+龙头:1K+ 老李五金
洗碗机:4K+西门子sn25M831Ti,某次逛金陵家居,在博世店里看洗碗机,营业员问我有西门子的这个型号的洗碗机要不要,我一看型号就是我想买的,立马拿下,这个价格京东也买不到
冰箱:7K惠而浦嵌入式
花洒:1.2K老李五金(在汉斯格雅和老李之间选了后者,还未正式开用,稍微有点后悔,看在省钱的份上忍了吧)
洗脸盆龙头镜柜:3.7K 柜:红方,台面李上雅,脸盆龙头淘宝美标大卖场
马桶+卫洗丽:5.6K 淘宝吉博力水箱马桶,松下卫洗丽(为了一个喷头除菌多花一千块,强迫症患者)
浴霸:1.1K松下FV-RB16UAW(普通吊顶)
地漏、烟道止回阀、五金件等:1.5k+ 潜水艇、老李五金、角阀买了四个品牌(事实证明一等价钱一等货,科勒最重,丰华算是对得起价格,和同等价格的科勒还是差一点,摩恩一般,美标最便宜也最差)
阳台洗衣机柜:1.7K+ 红方橱柜、台面李上雅,盆红方代购100,龙头宜家厨房龙头拉根99
晾衣架:手动淘宝好太太
空调:1W5+客厅松下风管机八喜冷暖(没有抽真空),主卧1.5P富士通ASQG12LUCB-N(金色)京东3868,次卧1P松下怡能壁挂式冷暖空调 SE9KJ1S (象牙白)(KFR-26GW/BpSJ1S)京东2928
大房间床加床垫:9.9K 树屋 金可儿甜梦之床
斗柜、床头柜:8.5K 家乐家 美洲生活
餐桌椅:3.7K 淘宝马斯特家居
沙发:3.5K 永隆家居 栖息地
全屋壁纸:5K+ 青风壁纸
窗帘:4K 毛仔
软装日用品厨房刀具锅具等:8K 淘宝
以上就是一兜糖家居APP屋主:虞儿 的全部内容了
最后,一兜糖家居交流微信群持续开放中,感兴趣的小伙伴备注*今条头日**,添加“yidoutang222”即可~
关注一兜糖家居公号“yidoutan123”,第一时间get到新出炉的家居干货哦~
本文由一兜糖家居APP头条号整理发布,未经授权禁止以任何形式转载。