面积:50平方
装修预算:6万
装修风格:混搭风格
装修公司:合肥天猫装饰
本案设计师:合肥鱼歌(微信号577823)


白色铁艺小夜灯~
包邮摩洛哥地中海田园风格镂空铁艺床头书房装饰小台灯 生日礼物
~~~~~~~~~~~~~~
2013年2月28日 更新
入住半年有余,新增配饰(配件)若干……几乎全部购于淘宝~感谢各位淘友支持,贴子一直没沉底……更新几张新报配饰图……晚间拍摄,效果欠佳,勿怪……

复古小壁灯,更换掉了原来那盏不很搭配的折叠灯……
二手货,独品,已无链接……喜欢这种风可以去“无尘车间”寻,很多美丽的小旧货……

酒杯吊架,为酒柜增容……价格低廉,安装方便……我是自己搞定的……
找了半天链接还是没找到,大家自己搜吧,淘宝一堆一堆的……

开瓶器装饰画,定制自己要的尺寸,回来自己配了画框……
实体酒窖设计 古典酒刀图鉴 开瓶器装饰画 酒窖历史古典设计风格

美丽的乡村风小花盆……
出口柳编花盆

剔透的小烛台……
我实在又没找到链接!喜欢自己搜吧……“美国代购 urban outfitters Hanging Glass Votive 迷你玻璃烛台”

柳编装饰挂件

柳编铁皮花盆0810

用十几年前的大学作业、随笔、漫画……装饰了一进门看到的墙面……
金零点 实木照片墙 13框创意时尚相片墙 相框组合 相框墙 彩色

实在受不了冬天里东北的鲜花店出售的鲜花的低劣品质……没办法,只好搞了个仿真滴……
玫瑰果荚 仿真植物浆果插花艺假花

几个小花器,用来养空气凤梨再合适不过了……
【1111购物狂欢节】mxmade可爱悬挂式蛋形玻璃花瓶水培创意花瓶家居饰品
【1111购物狂欢节】mxmade欧式透明玻璃长管花瓶 悬挂式水培花瓶 家居装饰
【1111购物狂欢节】mxmade创意橄榄形透明玻璃花瓶田园风悬挂花瓶家居饰品
【1111购物狂欢节】mxmade时尚节约透明玻璃花瓶可悬挂花瓶创意居家装饰品2款可选
OK~今日更新完毕……
~~~~~~~~~~~~~~~~~~~~~分割线~~~~~~~~~~~~~~~~~~~
因不急于入住~再加上资金与时间都有短缺~房子从下钥匙到目前住进去~历时一年多~工作关系,无暇逛材料市场,所以家用所用物件几乎全部购于淘宝:建材、家具、厨具、摆件……上来发贴就当是回馈我的购物平台吧~照片照的仓促~水平也有限~不很理想,大家将就看!
大学毕业的时候做过三年的室内设计,6年前改行做工业了……自己的房子如果再假手他人设计,未免说不过去~从拿到楼盘的户型图开始我就开始一步步准备我的小屋了……因为我当初对自己的家的畅想,最基本的就是水泥地、绿墙面、白门口……所以基调定在了美式乡村上,但一考虑自己喜欢的东西实在太过繁杂,最后索性放弃风格一说,随心所欲的收拾起来……也担心过最终效果太乱太花,不过想想,整个房子都是自己心爱之物的堆砌,乱也会乱得让自己心喜吧……
基本信息:房屋建筑面积不到60平,阳台是赠送的~实际使用面积近50平方;
顶楼(7楼),局部坡顶;
独居!
先展示一张成品图


原始平面图~按窗子讲的话,好像应该是东南—西北走向~早晨9点左右太阳照入卧室,中午12点后太阳就照到阳台了,阳台的光照可以持续到下午5点(在这个季节里)~这样充足的光照让我有条件把阳台搞成了种植园!

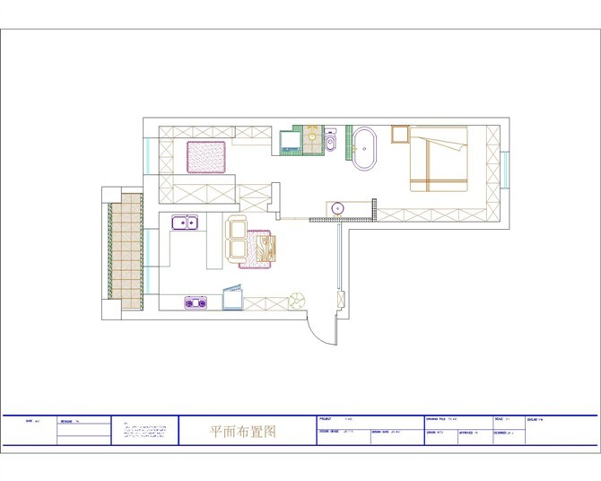
平面布置图 ~去掉洗手间的墙,做开放式;新砌墙面间隔开放区域跟生活区;次卧原门改柜,内侧新开门作步入式更衣间……

剖面图~ 为了给工人施工方便画的~床头方向:全景壁纸—马赛克墙及浴盆—马桶—淋浴区—洗衣机位—工作台—鞋子包包存放区; 床尾方向:全墙书架—裸砖墙面洗面区—腰门—衣裤存放区。

一入户看到滴~
展示柜处原本是次卧的门,打成柜子放我多年收集的手办了……
用樟木箱子当茶几,味道十足的同时,里面也是超宽敞的存储空间……

回头看入户门~投影是本地电脑城买的~环绕立体声音箱是美国波斯顿的,购于淘宝~牛×的衣挂购于出游的路上……

冰箱这一侧~柜子完全可以照着网上的图片自己找木工打~不过油工会比较麻烦~油画是大学同学给我画的,让我用来挡配电箱了~它的大尺寸让我的这面墙现也做不了其他用途……
说一下冰箱,博世的,在这里的欧亚买的~我对这处品牌比较偏好~它的开门方向可以随意更换这点很人性,我就把它改成了左手开门,因为厨房在右边,这样方便很多~

洗菜盆这一侧~

从阳台门望进去~

腰门走过来~开放式洗手间~很多朋友担心洗手间开放后的湿气问题,这个绝对是要看你所在城市的地理位置的。因为担心湿气,我特意买了*湿机除**,实际上在东北的这个季节,基本没有使用几次~每天开开门窗,空气湿度总是在60%以下~(50%~60%最佳),每天洗过澡以后,也就是近70%的样子,开*湿机除**或者开门通风一会儿就好了……南方城市的话,开放一定要谨慎了~

拉上浴帘的样子~ 因为一个人住,所计划浴帘到沐浴区后是弧形现墙面弯曲,不遮挡坐便的,后来考虑到偶尔来坐客的朋友的感受~(在他们的要求下),浴帘做成了可以挡住坐便的样子~

拉开浴帘那边的洗衣机位~还有更衣间的门~洗衣机上砌台不但有效避免洗衣机的水溅,上侧也是非常宽敞的储物空间~

洗面盆这一侧~柜子很有感,内部储物也非常实用~这个炕琴是原来在农村住的姑姑送我的(其实是人家淘汰了,我跟人家要的)~这个就是当年她结婚的时候,我姑父自己打的~

卧室~棚面就是普通的桑拿板上清漆~钉眼要用相近色的腻子打好再上漆!!

床头方向~

移动书桌~在原木床那家定制的条案,自己加了轮子~就可以当书桌了~不用的时候靠墙放置,跟书柜混然一体~

床对面的书柜~我的胖脚上了镜!!!桌子下那货不是什么机箱~是*湿机除**!!!

床的卖家赠送的床头柜~还有右侧的储物空间~在网上搜了好久才找到的大小刚合适的编制筐!这种筐的尺寸误差都不小,所以选购的时候要适当选小一些的~大小刚好的会放不下的~

整体看一下~洗面柜真是惊艳!是吧~






更衣间~木工打制的~配件是网上买的~拉篮、衣杆、帽子勾……
挂了帽子跟那些项链的板是可滑动的,上下加了滑道~滑开后,里面放其他季节的帽子跟各种围巾、手套什么的~
饰品柜的下层(桌面高度)是要放我的缝纫机的,机器让朋友借去了,所以暂时放着我的银饰品箱……
椅子是我的最爱~可以折叠反转过来变身梯子~这种储物空间有了它,真是再完美不过了~
发贴总是开始的时候激情无限,发到后来总是因懒惰草草收尾吧~哈~~
~~~~~~~~~~~~~~~~~~~~~~~~~~~~~~~~~~~~~~~~~~~~~~
9月11日 更新——收纳部分~
PS:1、应淘宝店小二之邀,收纳部分新开日记一篇在下页~
小户型里的大收纳!!!
查看请点上一篇!!!
收纳部分详细图及说明!!!
//riji.home.taobao.com/riji/riji_detail.htm?spm=861.1000422.9.1.2f9bf8&diaryId=49475
2、照片没什么美感,仅用来做收纳部分的说明~小户型,空间有限,而且我的“破烂”物件超多~
~~~~~~~~~~~~~~~~~~~~~~~~~~~~~~~~~~~~~~~~~~~~~~~
9月24日 更新——阳台

大木箱里是准备栽葡萄的,今年过季了,明天再来……所以放了网格架,给葡萄攀爬用滴~


因为疏于打理,小菜都略有杂乱~而且因为无肥的关系,都瘦的可怜啊……
再补几张~

厨房菜盆侧的整体照~

灶台侧~



厨房的细节补充~

阳光充足的中午,洗面柜的独照~





洗手间部分小物……
——————————我是分隔线————————————
11月22日更新
归纳一些在大家提出频率较高的问题,统一回答如下:
一、关于橱柜上侧白色置物架的制作
家中除了可活动的独立家具,其他木制作都是我设计好图样,木工师傅现场制作的。橱柜部分很简单,我只是手画了草图,跟师傅现场解说了一下,都是普通细木工板拼接,刷白油。比较让人喜欢的栏杆和装饰线是定制的,因为工作忙碌,无暇逛本地家装市场,我的是在淘宝上定的(上海 橡木王 实木橱柜专卖店),按米计价,因为当时拍下的链接并不是我所使用的产品,所以没有进清单,如果有逛本地家装市场的时间,建议本地购入,因为这个东西所有定制橱柜、衣柜的地方都可以做。如果细心的亲会发现(菜盆侧整体图),装饰线(灯线)原本是让马虎的木工师傅安装错了的,被安在了置物架板面的内侧(木工以为这个是为了挡灯的电源线,而不是挡灯),后来让我发现,这时已经很难拆除了,所以又在前侧加了一块,前面的这一块就是木工师傅去本地的橱柜商店买的。
二、关于水泥地面的施工问题
水泥地面施工我并不专业,所以仅仅做为给大家的参考啊,这个应该是有专业的施工队伍可以做的,我们这小城市,我只能自己搞了……地面找平后,用水泥沙浆抹平!我的施工就这么简单,只是要选择标号够的水泥,及干净细致的河沙……如果可以接受光亮感的(我因为不喜欢所以没有这一步),打磨后上地坪漆(或环氧树脂漆);也有直接用水泥油(纯水泥浆)刮平的……我也是第一次这样施工,所以也没什么经验哈~当时就是想追求那种小时候的质朴简单的水泥地的效果,可以被岁月的功力磨的光光亮亮的~
三、关于冰箱上那个身段柔软的钟
这个钟受到了好多朋友的喜爱,被问及的次数很多~我时常买一些美国代购的小物件,这个就是其中之一!这个钟取材于达利的名作,达利有不少关于钟的名作:《永恒的记忆》 、《时间的贵族气息》……等 ,他的钟也有很多名字 :The Persistence of time、Soft watches、Droopy watches、Melting clocks……我当时购入的链接中宝贝已下架,您搜索:融代的时钟 可以找到
四、关于开放式洗手间的问题
首先,东北的地理位置和我所在城市的气候特性,使得这里不存在湿气或者潮气的问题,我原本担心过这个问题,毕竟我的浴缸离我的床只有一米之遥,为此专门买了吸湿器,但实际上,除了偶尔的秋雨天,房间的湿度重来没有超过最佳值,我的除湿器也没了什么用武之地,还被广州回来的朋友嘲笑,说这东西是给那边生产的好吧……
其次,大家所提出的气味问题……这个不太好解释,不亲自试一下,你可能不会觉得没问题!关于气味是分子,及分子的扩展能力这一点我想大家都懂……但是我要提出的是,很多家庭的坐便使用上是存在很大问题的!!!坐便是一定要盖上盖子冲水的,因为水压的强度会使细菌瞬间扩散的!!平时不使用的时候也要盖着盖子,同样是细菌的问题!还有!!!男士也应该坐着使用坐便!!!不管是大号小号!!!!坐便发明的时候就是这样设计的!!!
总结一下,洗手间的开放与否除了要适应当地气候跟生活习惯外(人口多的人家保证不行啊),主要对应的是心理的接受能力!你心理接受不了,就不要拿一些客观理由当借口啦……
五、淋浴区的水溅问题
有人问起淋浴的时候会不会溅出来水,回答是肯定的!当然会!!!以人正在淋浴为坐标:背后是墙面,所以无所谓有没有水溅;右手边是为了避免洗衣机被水淋砌的马赛克置物台,洗衣机完全被挡住,不会有水淋到,因为高度问题,置物台会有部分溅水,好在它不怕水;前面是浴帘,我的浴帘杆定制的高度略短了一点,所以浴帘离地面有了一点高度,不过这点高度基本没什么问题,地面偶尔溅水;左手边是马桶,没什么遮挡,所以保证会被水淋!每天淋浴后我都擦一遍马桶,哈~好在它也不怕水~~其实除了洗衣机,我的淋浴周围哪里也不怕水淋~开放式洗也没什么关系!!!
六、我的移动式书桌
书桌就是买床的时候顺便定做的,很简单的一横两竖的设计。因为要有超过床宽的跨度,所以用料一定要实在。当初设计的时候就已经把轮子的安装宽度跟高度问题考虑进去了。高度要跟床高配合好,甚至要考虑好床垫跟床品的厚度,还有你自己的大腿围,书柜 、床、书桌、这三样要把位置跟尺寸精确好,轮子用的是工业脚轮,家具轮我觉得跟我的风不搭,也不够结实。这个得宜于我枯燥的工作吧,对一些工业用件都有相当的了解。脚轮去比较熟悉的店铺选了质量较好的,自己安装的,工具只要木螺丝和螺丝刀就OK啦。