
“刚需有刚需的纠结,改善有改善的烦恼。”
石家庄改善的烦恼,无非是买城市优势地段并牺牲掉一定的居住品质,还是为了居住品质在非核心地段置业。
桥西的维明有这样一个新房项目,项目名为安联天颂。
今天,我就来和各位聊一聊这个项目:安联天颂,你会是石家庄改善客的答案吗?
项目基本信息
- 项目名称:安联天颂
- 参考单价(元/㎡):24000
- 地址:槐安西路与中华南大街交口300米路南
点击卡片查看详情:

项目特点
- 优势
1.5公里生活圈内有购物中心配套,购物便利。
- 劣势
从现状来看,项目的中小学配套较为缺乏,有入学需求的家长需要谨慎考察该板块的学校引进规划。
产品单价并非刚需友好。
- 适合客群
适合家庭成员较多、资金水平相对充裕的改善客。宽敞的户型能够较好地满足大中型家庭的生活所需。
地段配套

安联天颂位于桥西,近一年来,维明的(二手房)楼市行情及其价格情况如下:
- 平均成交总价(参考价):130.0万
- 平均成交单价(参考价):15561.2元/㎡
- 成交套数(参考套数):227套
- 交通情况
距离地铁槐安桥站直线距离约705米,公共交通配套较好。
- 商业资源
1.5公里生活圈内有汇华广场、新世隆广场、万象天成购物中心、石家庄云摄影、汇特都泰广场、购购时代广场、国贸新世界、天元名品(中山西路店)、汇华广场(友谊店)、海悦天地、东方城市广场购物中心、万象城、天元、永辉城市生活广场(维明南大街)、乐汇城、品汇广场、天成商港,商圈繁荣,购物便利。
- 教育资源
从现状来看,楼盘周边较为缺乏已建成的中小学,还有待规划落地。楼盘周边比较缺乏现成的幼儿园配套,宝爸宝妈需要谨慎考察规划和落地情况。
- 医疗资源
项目5公里内有德弘中医院、祥爱缘医院、石家庄市中医院(三级甲等医院)、石家庄市第二医院、桥西医院、邯郸一建省三院、河北医科大学教学医院、慈济医院、天津中医药大学第一附属医院协作医院、河北水利医院、河北省医保定点医院、石家庄供水医院、秦明中医院、石家庄蓝天中医院-市医保定点医院、石家庄华山中西医结合医院、河北省医科大学第一医院教学医院、河北医科大学第三医院(三级甲等医院)、石药集团欧意药业职工医院、(+)河北省老年医院(三级甲等医院)、石家庄民康医院、棉七医院、乐心医院、石家庄胃肠医院、北京同仁堂石家庄中医医院、华擎医疗美容医院、慧福医院、石家庄市第一眼科医院、石家庄市新石医院,医疗资源丰富。
产品评测
安联天颂属于普通住宅。
由石家庄新联鸿泰房地产开发有限公司开发。

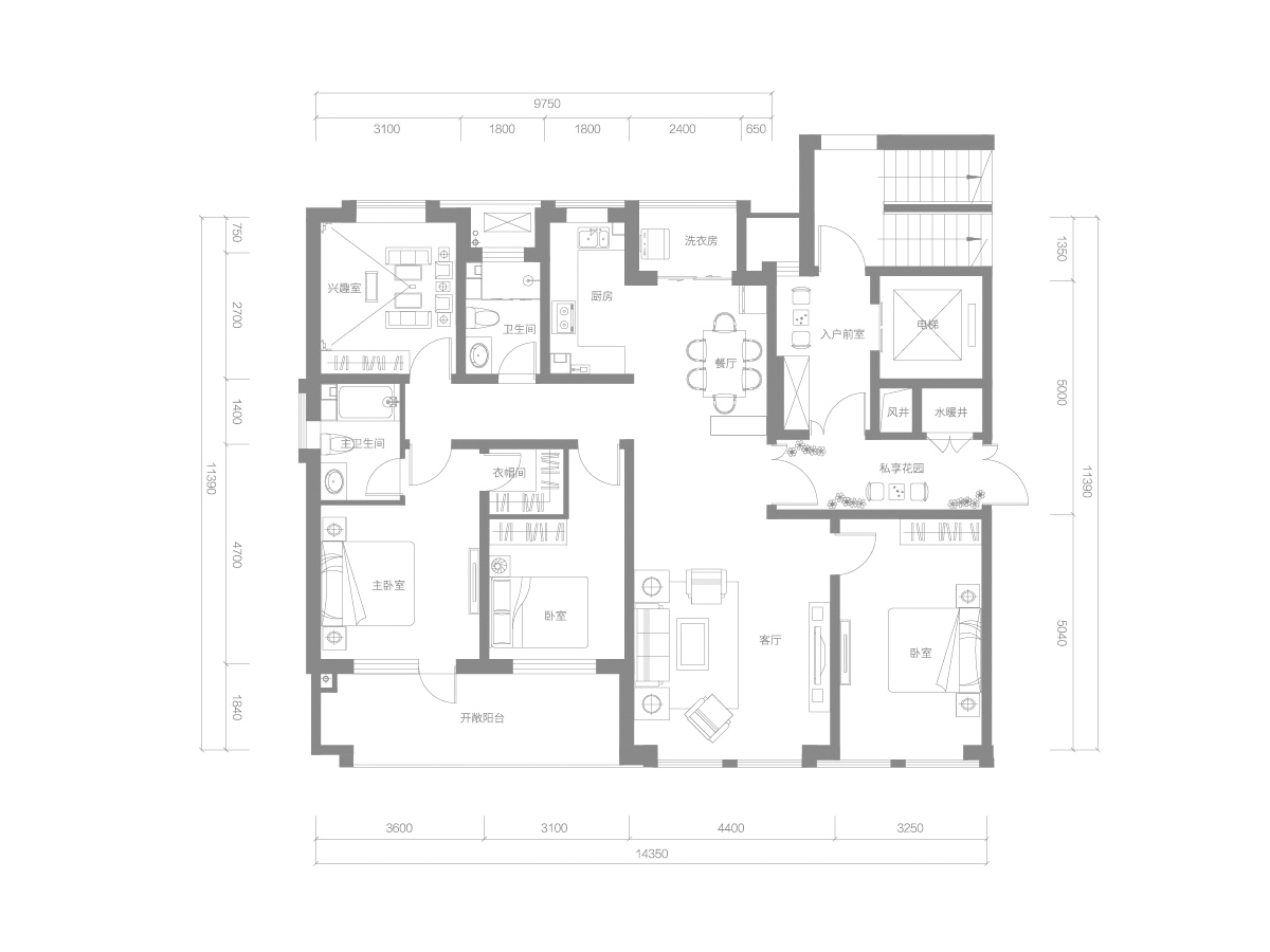
- 户型解读
安联天颂毛坯交付。该项目有多种户型可供选择:
户型1:南向宽敞大三居(2卫)
面积:161平
3室2厅2卫

户型2:南向宽敞大三居(2卫)
面积:145平
3室2厅2卫

户型3:南向豪华大三居(2卫)
面积:188平
3室2厅2卫

户型4:南向豪华大四居(2卫)
面积:188平
4室2厅2卫

户型5:南向豪华大四居(2卫)
面积:173平
4室2厅2卫

较大的户型能够一步到位,满足三代同堂的需求,比较适合改善购房者的需求。有终极改善需求的高级玩家可关注一下这个项目中的大户型。
价格分析
最后,让我们进入比价环节。
维明近一年来二手房成交均价(参考价)为15561.2元/㎡。可见,本项目单价还是明显高出同板块的二手房单价水平的。
以下为维明的几个主要的二手房小区的相关情况:
- 华府国际(建筑年代:2016;均价:16901.0元/㎡)
- 警苑新天地(建筑年代:2016;均价:24264.0元/㎡)
- 隆景华庭(建筑年代:2015;均价:21871.5元/㎡)
- 嘉实栖园(建筑年代:2014;均价:16555.8元/㎡)
- 警苑小区(建筑年代:2014;均价:16748.8元/㎡)
- 维明其他新房楼盘:
目前维明的在售新盘缺乏,所以安联天颂可以说是本板块少有的新盘选项。
- 同价格段本市其他新盘对比:
目前石家庄的在售新盘,还有若干个与本项目单价水平相似的项目,那么这几个项目哪个更适合你?点击以下楼盘卡片查看项目详情。





以上即为幸福里对安联天颂的测评内容。楼盘具体信息及折扣情况请以项目实际公布信息为准,或点击以下卡片联系置业助手获取。

延伸阅读:
【存活期2天,全国尺度最大楼市宽松政策撤回,楼市调控何去何从?| 幸福策评】一讯一评,解读你关心的楼市动态:01 报复性存钱潮来袭 人大副校长:杜绝纸上财富,让房价降下来。但这并不表示,政策没有放松空间,小插曲过后,各地对楼市还是会出政策促进发展,只要坚持房住不炒和保障好楼市平稳,*会两**后,各地还是可以根据实际情况进行调整,也有利于去库存,减少房企压力。张大伟也认为,疫情影响下,过去过严的房地产调控的确应该有所调整,特别是在符合房住不炒的原则下,针对刚需和改善应该出台一定的政策,这不违背楼市调控原则,也不会对市场带来太大影响,但包括首付明显降低等松绑政策,步子较大。来自幸福里APP,点击阅读原文