
此版本为缩减版
全版本可在华建环境设计研究所官方网站便可*载下**观看
奶茶饮品店尺寸标准化HJSJ-2020
1. 总则
1.1为规范银行、金融营业厅等室内精装修设计工程,贯彻国家技术经济政策,提高银行、金融营业厅在设计中的各功能区域划分,使银行、金融营业厅具有安全性、实用性、可维护性和更人性化的经营理念制定本标准。
1.2 本标准适用于所有新建、扩建和改建的银行、金融营业厅装修设计项目。
1.3 银行、金融营业厅设计应遵循科技领先、经济适用、环保、节能、效率高效的原则。
1.4 银行、金融营业厅等室内精装修设计工程应同时符合下列规范:
1、《建筑内部装修设计防火规范》GB 50222-2017
2、《建筑装饰装修工程质量验收规范》GB50210-2001
3、《民用建筑电气设计规范》JGJ16—2008
4、《民用建筑工程室内环境污染控制规范》GB50325-2010
5、《银行营业场所风险等级和防护级别的规定》GA38-2004
6、《银行营业场所安全防范工程设计规范》GB/T 16676-1996
7、《中华人民共和国金融行业标准银行金库》JR/T0003-2000
8、《防盗安全门通用技术条件》(GB17565- 1998)
9、《银行营业场所透明防护屏障安装规范》(GA 518-2004)
1.5 银行、金融营业厅等室内精装修设计工程的建设必须符合国家有关法律、法规的规定。
1.6 银行、金融营业厅等室内精装修设计工程的建设除应符合本标准外,尚应符合国家现行有关标准的规定。
1.7 该标准为银行、金融营业厅等室内精装修人体工程学尺寸设计标准,及使用功能区域划分参考,是室内设计参考的指导性文案。
2术语
2.1 客用 电脑
客用电脑是指银行在服务大厅放置给客人使用的电脑,由大堂经理或服务人员教导客人开通、登陆、使用网上银行办理业务使用。
2.2 二道门
营业厅外部进入银行内部必须设计独立通道,通道内设计A、B二道门,又称通勤门,防尾随即当双门中的一门处于开启状态下时,另一道门禁止开启,只有当另外的一道门关闭状态时,第二道门才能被打开。
2.3 清分室
清分是清算的数据准备阶段, 主要用于当日的全部网络交易数据按照各成员行之间本代他、他代本、贷记等进行汇总、整理、分类使用的办公用房。
2.4 凭证室
主要是支票、贷记凭证、电汇凭证、商业汇票、银行汇票等入帐单、电汇单之类的办公用房。
2.5非现金业务区
非现金区称为开放式业务柜台,主要办理公司业务、信贷、中间业务等不涉及现金交易的业务。
2.6 现金业务区
现金业务区是指通过物理隔离的方式将办公业务区与大厅间隔分开,可以通过玻璃窗口办理的柜台。
2.7 填单台
填单台一般客人用于需办理银行汇款、转账、储蓄提前填写单据、票据的工作台。
2.8 贵重金属展示柜
贵重金属展示柜是指用来摆放首饰、工艺品、纪念品、纪念钞等物品展示售卖的柜子。
3. 营业大厅区
银行的营业大厅一般包括大堂经理区、智能服务区、等候区、现金业务区、个人/公司非现金业务区、填单台、金融知识宣传区等区域。

△营业大厅平面图
3.1大堂经理区
大堂经理区的服务前台应分高低两层,内层为员工使用尺寸:台面宽度为500-700mm,柜台高度为700-850mm。
外层为客人使用,顶面需设置300mm宽的书写板,用于客人填写资料使用,尺寸:高度1100mm,台面宽度在300mm。
前台员工活动后方距离墙体或物体需预留不少于900mm通道。

△大堂经理前台

△大堂经理前台立面图
3.2 智能服务区
排号机:一般设置在入门位置,方便顾客取号。
尺寸:常见的排号机高度为1400mm。


△排号机立面图
客用电脑:客用电脑是指银行在服务大厅放置给客人使用的电脑、由大堂经理或服务人员教导客人开通登陆使用网上银行办理业务使用。
尺寸:客用电脑分为坐着和站着使用。坐着使用的台面尺寸为:长900-1200mm,宽500mm,高800mm;隔板的高度为1200mm。
站着使用的台面尺寸为:长900-1200mm,宽500mm,高1050mm。

△坐式客用电脑尺寸

△站式客用电脑尺寸
3.3等候区
等候区是客户在办理业务时提供的休闲场所,里面基本的布置为座椅与叫号机。
尺寸:电视机的安装高度为电视机中心离地1600mm,客户距离电视机的距离宜为1200mm。

△叫号机TV安装尺寸
3.4现金业务区
现金业务区是指通过物理隔离的方式将办公业务区与大厅间隔分开,可以通过玻璃窗口办理的柜台。
尺寸:外部柜台的长度为1000mm,宽度为450mm,高度为800mm;挡板的深度为600-650mm。
内部柜台的柜台为L型,对外的台面摆放电脑与对讲机,长度为1000mm,宽度为600mm,高度为800mm。
对内的台面摆放打印机和文件,深度为1000mm,宽度为400,高度为500mm 。

△柜台尺寸

△柜台立面图

△柜台剖面尺寸
无障碍柜台尺寸:柜台台面的深度应大于550mm,高为800mm,其底部应留出长750mm、高650mm、深450mm供乘轮椅者膝部和足尖部的移动空间。

△无障碍柜台尺寸
3.5个人/公司非现金业务区
非现金区称为开放式业务柜台,主要办理公司业务、信贷、中间业务等不涉及现金交易的业务。

△非现金区柜台平面图
尺寸:
台面尺寸为:长900-1200mm,宽500mm,高800mm;
隔板的离地高度为1200mm。

△非现金区柜台
3.6填单台
填单台一般客人用于需办理银行汇款、转账、储蓄提前填写单据、票据的工作台。填单台不宜做成活动式柜台,应与墙面或地面固定,避免儿童攀爬时发生倒塌事故。
尺寸:
台面的高度为1100mm。

△填单台

△填单台立面
3.7金融知识宣传区
普及金融知识,印制宣传页,内容包括:“*币假**”收缴知识、银行卡使用知识、个人金融信息保护知识等。
尺寸:
宣传台的高度为1100mm。

△填单台立面
4. VIP贵宾理财室
4.1 VIP贵宾室等候区
VIP贵宾室等候区的基本布置为沙发、茶几、电视机。
各席位的椅子尺寸为800-900mm之间,椅子之间距离不应小于800mm。茶几与沙发的距离宜为300-400mm。
中间的茶几摆放在公共区域,所以茶几与沙发之间的距离宜为900-1200mm。
沙发后方距离墙体或物体需预留不少于900mm通道。
座椅区与电视机墙面的距离宜为900-1500mm。

△VIP贵宾室等候区
4.2 贵宾 理财室
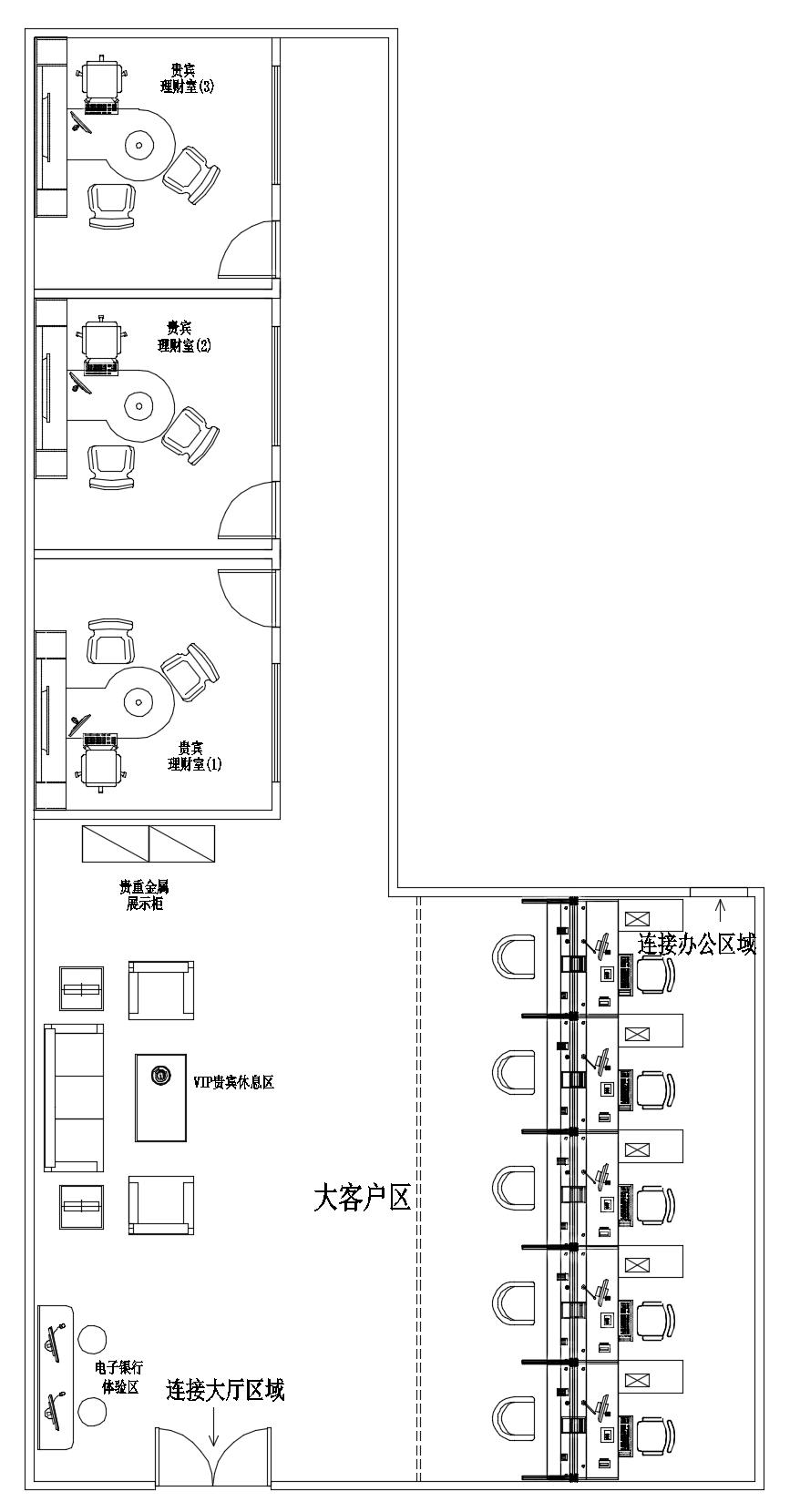
贵宾室理财室是银行为有个人理财等复杂业务需要的客户或VIP客户准备的业务空间。

△VIP贵宾理财室平面图
4.3贵重金属展示柜
贵重金属展示柜是指用来摆放首饰、工艺品、纪念品、纪念钞等物品展示售卖的柜子。
尺寸:贵重金属展示柜总的高度为900mm,上层玻璃柜的高度为300mm,深度为500mm。


△贵重金属展示柜尺寸
5. 营业内厅
5.1后台办公室

△后台办公室平面图
5.2 办公区域两边墙体的通道不应小于1.2m。如该通道为消防疏散通道,应按消防规范设计。

5.3 办公桌距离后方墙面或物体的距离不应小于1.4m。

5.4 背靠背设置办公桌时中间预留尺寸不应少于1.8m。

5.5 并排式办公桌布置中间过道不应少0.9m。

5.6 横式办公台与竖式办公台布置时中间过道不应少于1.2m。

5.7 办公桌当后方放置有文件柜时办公桌与文件柜中间过道距离不应小于1.8m。

6. 24小时自助银行
自助银行是指不需要银行职员帮助,顾客通过电子计算机设备实现自我服务的银行。
尺寸:每格ATM服务区的长度宜为900-1200mm,高度宜为2100mm,挡板深度宜为400mm。


△自助银行
7.入门
在银行门口入门处应设置无障碍通道。
尺寸:扶手的高度为900mm,扶手外侧应增加300mm,扶手底部高宜为100mm,通行的宽度不应小于900mm。

△无障碍坡道


△银行大门







本规范主编单位
华建施工工艺学会
本规范参编单位
华建环境设计(广州)有限公司
广州市祺丽装饰工程有限公司
广东万成建设有限公司
广州市第四装修有限公司
广州德富建筑安装工程有限公司
本规范主要起草人员
黄志钦 陈韬 黄绿青 梁薇 范丝燕
赵丹 黄炜俊 熊峰 邓楚颖 黄树明
本规范主要审核人员
张镜华 卢瑶林 廖炽伟 查仕良
发布于2020年7月
“银行设计标准化HJSJ—2020”
用于各大院校装饰设计专业教学使用
多干货→点击关注 华建环境设计研究所
更多设计看点→点击关注
