一、房屋施工图的用途与内容
1、用途
(1)指导施工
(2)编制施工图预算
(3)安排材料、设备
(4)非标准构件的制作
2.内容
(1)图纸目录(既首页图)
(2)设计总说明
(3)建筑施工图(简称建施)
(4)结构施工图(简称结施)
(5)设备施工图(简称设施)
二、房屋施工的特点
1、施工图中的各图样,主要是用正投影法绘制的。
2、绘图比例较小,多采用统一规定的图例或代号来表示。
3、施工图中的不同内容,使用不同的线型。
三、阅读房屋施工图的方法
1、先看图纸目录——了解图纸类别和张数。
2、按目录顺序通读一遍——对房屋有一概略了解。
3、按专业逐张进行阅读。阅读时:先整体后局部;先文字说明后图样;先图形后尺寸
四、施工图中常用的符号
(一)定位轴线:是用来确定房屋主要结构或构件的位置及其尺寸的基线。
用于平面时,称平面定位轴线(即定位轴线)。用于竖向时,称竖向定位轴线。定位轴线之间的距离,应符合模数数列的规定。
1、定位轴线:
平面定位轴线编号原则:水平方向采用阿拉伯数字,从左向右依次编写;垂直方向采用大写拉丁字母,从下至上依次编写,其中I、O、Z 不得使用,避免同1、0、2 混要淆。

2、附加定位轴线:用于次要承重构件处。

3、定位轴线的各种注法

(二)尺寸、标高
1、尺寸单位;
(1)米(m):用于标高及总平面图。
(2)毫米(mm):除标高及总平面图外。
2、标高定义:是标注建筑物某一部位高度的一种尺寸形式。
(1)绝对标高:我国把青岛市外的黄海海平面作为零点所测定的高度尺寸。(2)相对标高:凡标高的基准面是根据工程需要而自行选定的。
一般把房屋底层室内主要地面定为相对标高的零点。
3、标高符号:

4、标高数字: 总平面图标注到小数点后两位,其余标注到小数后三位。

(三)索引符号与详图符号
1、索引符号

2、详图符号

(四)建筑材料图例
常用建筑材料图例

五、建筑施工图
建筑施工图是表示房屋的总体布局、建筑外形、内部布置以及细部构造、内外装修、施工要求等内容的图样。
包括:总平面图、建筑平面图、建筑立面图、建筑剖面图、建筑详图。
(一)、总平面图 :
总平面图是表示建筑物场地总体平面布局的图纸。它以平面图的形式表明建筑区域的地形、地物、道路、拟建房屋的位置、朝向以及与周围建筑物的关系等情形。由于图的比例小,房屋和各种地物及建筑设施均不能按真实的水平投影画出,而是采用各种图例作示意性表达。

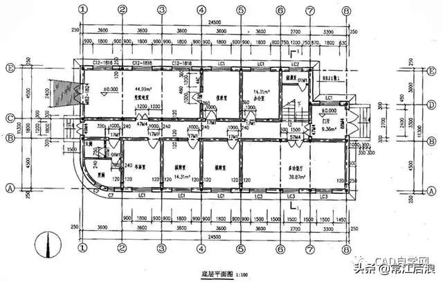
(二)建筑平面图
1、平面图的产生:
假想用一个水平剖切平面沿房屋的门窗洞口的位置把房屋切开,移去上部之后,对剖切平面以下部分所做出的水平投影图,称为建筑平面图,简称平面图。
2、平面图的名称:
底层平面图 标准层平面图 顶层平面图 屋顶平面图
3、平面图的图示内容与图示方法:
图示内容:表现房屋的平面状况和平面布置,包括房间的分割,楼梯和走道的布置,墙柱构件的布局及轴线编号,门窗位置,平面尺寸,卫生设施的布置等。

图示方法:1)比例 2)图线 3)轴线编号 4)图例 5)尺寸标注

常用图例
1、门 代号 M 如:M 1 M 2 M3


平面图尺寸:外部尺寸和内部尺寸。
1、外部尺寸:在外墙外侧 标注三道尺寸。
第一道(最外一道)尺寸:房 屋外轮廓的总尺寸,即从一端的外墙边到另一端外墙边的总长和总宽。可用于计算建筑面积和占地面积。
第二道(中间一道)尺寸:房屋定位轴线间尺寸,一般横向轴线间的 尺寸为开间尺寸,纵向轴线间的尺寸为进深尺寸。
第三道(最里一道)尺寸:分段尺寸,表示门窗洞口宽度和位置,墙
垛分段以及细部构造等。
2、内部尺寸:
外墙以内的全部尺寸,主要用于注明内墙门窗洞口的位置及其宽度、墙体厚度、卫生器具、灶台和洗涤盆等固定设备的位置及其大小。此外,还应表明楼、地面的相对标高,以及房间的名称,门窗编号。

【注意】底层平面图与其它层平面相比增加两项内容:1)指北针 2)剖切符号
屋顶平面图屋顶平面图主要表示三个方面的内容:
1、屋面的排水情况。如排水分区、天沟、屋面坡度、雨水口的位置等 。
2、突出屋面的物体。如电梯机房、水箱、检查孔、天窗、烟筒等。
3、细部做法。如高出屋面泛水、天沟、变形缝、雨水口等。

(三)建筑立面图:
1、立面图的产生
建筑立面图是在与房屋立面平行的投影面上所作的正投影图。
2、立面图的命名:
以朝向命名
以正、背、侧命名
以定位轴线命名
3、立面图的内容及图示方法:
立面图反映建筑外貌,室内的构造与设施均不画出。由于图的比例较小,不能将门窗和建筑细部详细表示出来,图上只是画出其基本轮廓,或用规定的图例加以表示。

图示方法:
1)比例 2)图线 3)轴线编号 4)图例 5)尺寸标注

(四)建筑剖面图
1、建筑剖面图的形成:
假想用一个正立投影面或侧立投影面的平行面将房屋剖切开,移去剖切平面与观察者之间的部分,将剩下部分按正投影的原理投射到与剖切平面平行的投影面上,得到的图称为剖面图。
分为横剖面图和纵剖面图 。
2、剖面图的图示内容与图示方法图示内容:
主要表示房屋的内部结构、分层情况、各层高度、楼面和地面的构造以及各配件在垂直方向的相互关系等内容。
剖面图的剖切位置应选在能反映内部构造的部位,并能通过门窗洞口和楼梯间。
剖面图的投影方向及视图名称应与平面图上的标注保持一致。

图示方法: 1)比例 2)图线 3)轴线编号 4)图例 5)尺寸标注

(五)建筑详图
什么是建筑详图 ?
建筑平、立、剖反映了房屋的全貌,但由于绘图的比例小,一些细部的构造、做法、所用材料不能直接表达清楚,为了适应施工的需要,需将这些部分用较大的比例单独画出,这样的图称为建筑详图,简称详图。
需要绘制详图包括:墙身详图、楼梯详图、门窗详图等。
1、墙身剖面详图:
墙身详图实际上是建筑剖面图的局部放大图。
图示内容:主要表达地面、楼面、屋面和檐口等处的构造,楼板与墙体的连接形式以及门窗洞口、窗台、勒脚、防潮层、散水等细部做法。


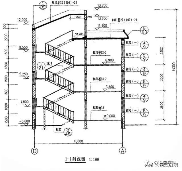
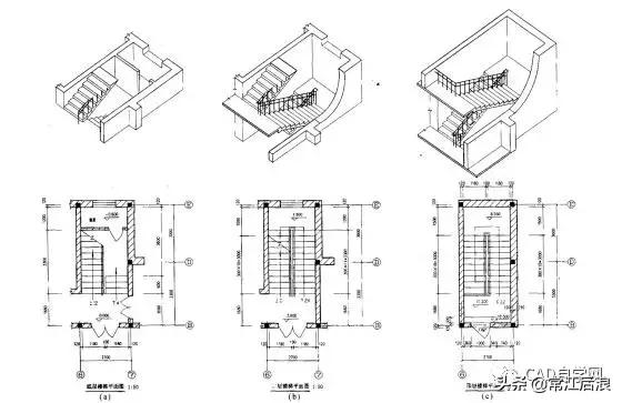
2、楼梯详图:
楼梯详图上应画出楼梯平面图、楼梯剖面图,某些细部仍未表达清楚的地方,还应针对这些局部进一步画出局部详图。
楼梯平面图:是楼梯间部分的局部放大图。

楼梯剖面图: 是楼梯间部分的局部剖面放大图。

楼梯详图上应画出楼梯平面图、楼梯剖面图,某些细部仍未表达清楚的地方,还应针对这些局部进一步画出局部详图。
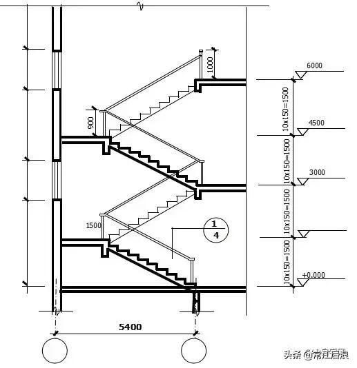
(1) 楼梯平面图:是楼梯间部分的局部放大图。通常要画底层平面图,一个中间层平面和顶层平面图。
各层平面图的剖切位置如图所示。

楼梯平面图的图示方法:
1)比例:通常采用1:50。
2)线型:剖切到的墙体线用粗实线,踏步的投影线用细实线,被切断的梯段的投影线用与墙面倾斜约60°的细折断线表示。
3)定位轴线:标注出与楼梯间相对应的位置处的定位轴线即可。
4)尺寸标注:在各层要标注楼梯间的开间和进深尺寸、梯段的长度和宽度、踏步面数和宽度、休息平台及其它细部尺寸等。梯段的长度要标注水平投影长度,通常用踏步面数乘以踏步宽度表示,见图示。另外还应标注出各层楼(地)面、休息平台的高度。
5)图例:在底层标注出剖切符号。

在楼梯平面图中,为了表示各个楼层的楼梯的上下方向,可在梯段上用指示线和箭头表示,并以各自楼层的楼(地)面为准,在指示线端部注写“上”和“下”。因顶部楼梯平面中没有向上的梯段,故只有“下”。
(2)楼梯剖面图:是楼梯间部分的局部剖面放大图。
它可以详细地表示楼梯的形式和构造,如各构件之间、构件与墙体之间的搭接方法,梯段形状,踏步、栏杆、扶手(或栏板)的形状和高度等。
楼梯剖面图的图示方法:
1、比例:通常采用1:50。
2、线型:剖切到的墙体线用粗实 线,踏步的投影线用细实线,
3、定位轴线:标注出与楼梯间相对 应的位置处的定位轴线即可。
4、尺寸标注:在剖面图中应注出各层楼(地)面、休息平台的标高,楼梯段的高度及其踏步的级数和高度。楼梯段的高度通常用踏步的级数乘以踏步的高度表示,见右图。

(3)楼梯细部节点构造
楼梯栏杆、扶手、踏步面层和楼梯节点的构造,在楼梯平面和剖面图中仍然不能表示清楚,还需要用更大比例画出节点放大图。如下图所示。


3、木门窗详图:
门窗详图一般由门窗立面图和节点详图组成。
立面图:主要表示门窗的外形、开启方式和方向以及门窗的主要尺寸和节点索引符号等内容。
节点详图:主要表示门框、门扇,窗框、窗扇各部位的断面形状、材料和构造关系。
· END ·
文章仅供学习交流,如若图文资源侵犯您权益,请及时与我们联系,我们将第一时间做出处理