常见众化的户型,两居,虽然不足百平很难做到大户型的豪华,但是经过设计师的设计和装修也能变得非常美丽。家就是简单温馨就好,住着有家的温暖。下面为大家推荐近的不同风格的装修效果图,希望为你的装修提供灵感。
风格:地中海风格
设计说明:本案为地中海为主导溶于现代简约元素,追求低调奢华的高品位生活。设计上采用了吊顶巧妙的实现了功能区的清晰划分,由与原房子是空间不明确,从房子结构上看,站在餐厅角度客厅显得很低,有点压抑,所以在设计电视墙的时候采用贴壁纸的方式,划分电视墙的空间,从视觉上解决了空间的压抑问题,而且章显了空间的奢华感。主卧房和娱乐室功能上更好用。

设计风格:中式风格
工程面积:86平米
设计说明:本案是现代中式风格.业主是一名教师,从衣食住行等生活方面都有着非常严格的要求,而且对咱们中国文化有着非常执着的热爱,所以对房子的装修要求是显示中式风格,还要简约大方.进入入户门,迎面餐厅的背景墙用木制与中式壁纸来装饰,装饰,
电视背景墙采用木制装饰面板来装饰,配以中式风格的壁纸,尽显中国的文化气息.客厅吊顶简洁大方,配以中式木格灯具,更突出一种书香门弟的文化氛围。

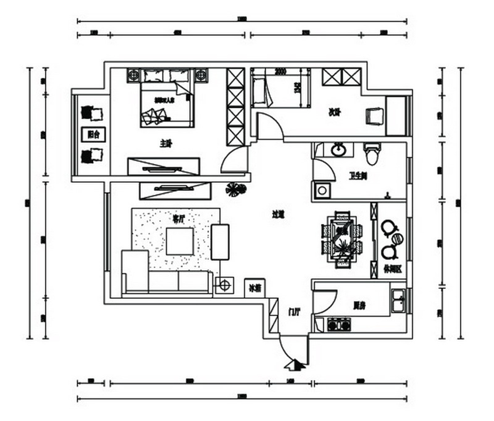
业主需求:田园风格设计理念:本案位于北京海淀北影小区,是一套两居室平层老房,房子上次装修为十年前,装修繁复、色彩凝重、房高只有2500,使原本光线欠缺的居室,更显压抑。鉴于此种情况,房主提出,要光线,要功能,要高度。设计师的对策是:以色彩增加空间的亮度;以嵌入式柜子保证空间的整体性;以简洁的定制石膏,划清墙面涂料与壁纸的界线从而增加房间的视觉高度。
预算说明:13万

业主需求:新中式风格
设计理念:本案对其原结构稍做了改动,因家中通常只有夫妻二人居住,空间足够用,扩大卫生间,将小客厅作为活动区,阳面作为孩子的卧室和活动区,阴面卧室作为夫妻休息区。
这样做起码有几大好处:
预算说明:6万

业主需求:业主家庭构成为一对小夫妻和一个两岁的小孩,老人偶尔过来住。业主正处于奋斗阶段,所以装修要求简单大方,去掉繁冗不必要的装饰,结构尽量不改动。
设计理念:满足业主的社会活动和生活需要,合理、完美地组织和塑造具有美感而又舒适、方便的室内环境。
预算说明:6万元(含主材)

业主需求:现代简约
设计理念:本案对其原结构稍做了改动,因家中通常只有夫妻二人居住,空间足够用,由于餐厅区与门厅一体,在吊顶上进行了区分;把次卧室门口与主卧门口移远了一点,显得空间更有层次,私密性更强
预算说明:14万

建筑面积:80平米
装修风格:现代简约
设计理念:本案是时尚简约风格,整体色调以浅色系为主,用墙面用壁纸和马赛克装饰等装饰材料,打造出一种朦胧的、梦幻的、年轻时尚新居。

业主需求:男主人是软件工程师,喜欢简洁明朗的生活空间,女主人是公司白领,特别热爱生活。客户喜欢以黑白灰现代装饰元素、在装饰材料上要求环保、设计风格上要求简约中又有变化,生活品质上要求高档生活氛围。业主在黑白灰的主体色彩上追求渐变效果,从视觉设计让房子变的更大气。
设计理念:以简洁的表现形式来满足业主对空间环境那种感性的、本能的和理性的需求,这是当今国际社会流行的设计风格——简洁明快的简约主义。而现代人快节奏、高频率、满负荷,已让人到了无可复加的接受地步。人们在这日趋繁忙的生活中,渴望得到一种能彻底放松、以简洁和纯净来调节转换精神的空间,这是人们在互补意识支配下,所产生的亟欲摆脱繁琐、复杂、追求简单和自然的心理。
预算说明:全包14万

业主需求:喜欢那种异域的北美风情的感觉。
设计理念:房屋的整体色调以米色系为主色调,搭配地砖的复古色调,壁纸的深浅对比,加之复古家具的红色,古色古香的异域风情凸显出来。两个卧室的地板颜色与家具的红色相搭配,不显得颜色跳跃,金色的窗帘、壁纸跟红色搭配,尽显低调的奢华。
预算说明:基础施工+主材=12.5万元

业主需求:先来谈下户型结构本身,房子的采光较好,两房之间隔着卫生间
设计理念:一个人住,想有一个衣帽间,如果可能有个储藏间更好,如果再有可能有个吧台也不错,还是要保留两房的格局
