
- HOUSE -
地址|Address :方正·凤凰国际
面积|Area :190㎡
设计|Design : 淄博八零原创设计
施工|Road Work : 八零匠心工程
软装|Soft Outfit : 花花HOME软装
摄影|Photography :繁溪视觉
前言
喜事将近,这是他们的婚房。这次筑家的主角是夫妻二人,自由欢脱的二人世界,故事由此开始。
屋主夫妻二人对整体品质和设计的要求很高,希望房子风格简约而突出品味,而不是千篇一律的样子。

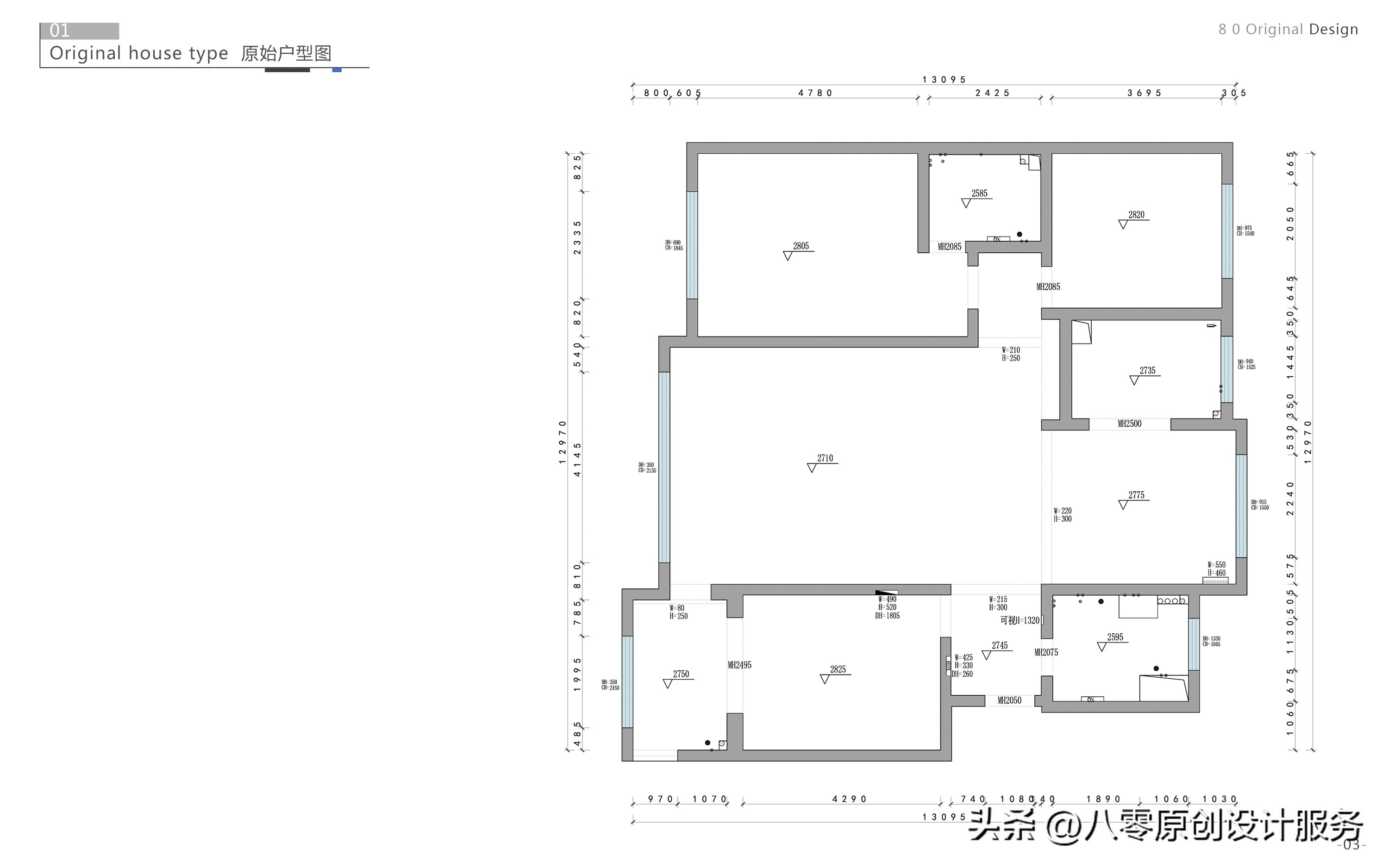
原始户型布局

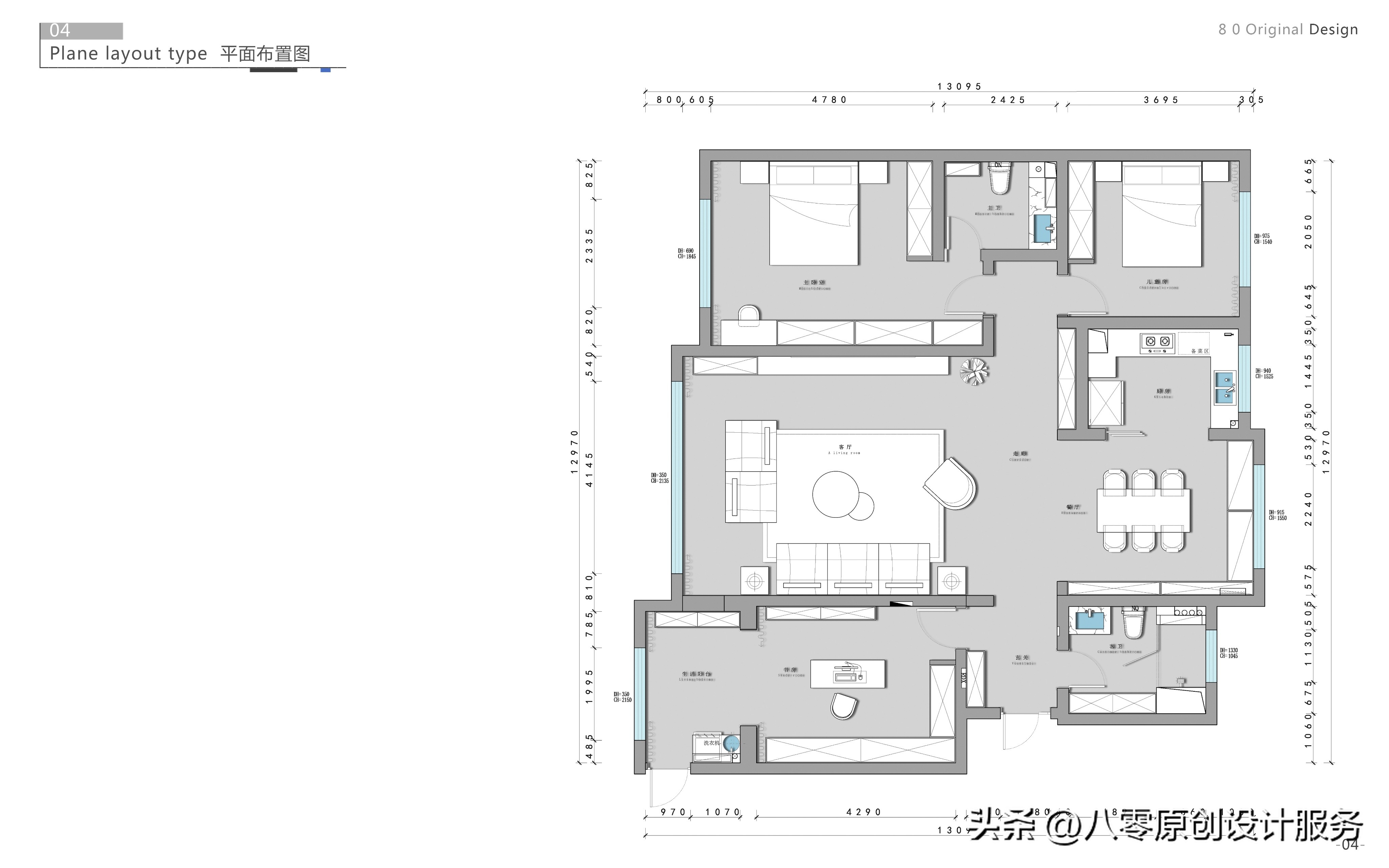
优化后户型布局
·状况概述:
本案来自方正·凤凰国际190㎡3室2厅2卫的极简新居。房屋面积对于常住的夫妻二人来说非常充裕,原户型接近理想状态,未做大规模拆改优化。设计师在储物规划和材质选择方面颇下心思,结合屋主的需求,我们提出了以下方案:
·改造亮点:
1、屋主只有两个卧室的使用需求,所以我们把门口的次卧规划为书房&衣帽间&家政间,一室多用。
2、走廊的异形吊顶在不影响层高的情况下,使空调新风达到最佳布局状态,外观也呈现优雅上扬姿态。
3、主卫规划为只有干区的化妆间,满足美妆需求。
L I V I N G R O O M
“ 自由 / 随性 /如风一般 ”
成年人最难得的人生状态就是拥有松弛感与孩子气
在这所房子里,我看到了这些。
······




白色与暖咖碰出新家的底色,入室就有微风拂面的惬意感,大面积的墙板与几何线条带来几分摩登港风的味道。



光源布局十分巧妙,壁灯、主灯、灯带、落地灯、内嵌壁炉灯光,不同高度的光源搭配亮起,带来完全不同的居家氛围感。
D I N N I N G R O O M “ 颜控的厨房 ”


为了让厨房和餐厅更好地连接,选择了 外置吊轨推拉门 ,视觉上放大厨房入口空间,垭口套和窗套采用 1mm极窄不锈钢, 增加细节的精致感。
D I N N I N G R O O M “ 爱人与晚餐 ”




餐厅的北侧窗下,做了整面储物柜,厨房的锅具、食材以及小电器在这里收纳,作为厨房的储物的延伸。
H A L L W A Y “ 人生无解,多喝拿铁。”


走廊异形吊顶,利用高度差的关系,在侧边增加了一个线性灯,略长的走廊亮起来了,吊顶的上扬姿态解决了新风管路问题,线性灯让空间呈现微妙的错层,空间感更丰富。

钢板材质 也用在了水吧区,女主人是咖啡爱好者,有很多咖啡杯藏品在这里展示, 3mm 的钢板支撑力完全没问题,从正面看,是精致的悬浮感。
B E D R O O M
“ 投影与幕布搬进主卧 ”




主卧布局非常简约,墙面艺术漆呈现肌理感,投影和幕布的加持,带来极致居家享受。
C L O A K R O O M
“ 衣帽间/书房 ”




与阳台相连的卧室改为衣帽间+书房,洗衣、晾晒等一系列动线可以直接在这里完成。东侧柜子做成开放式,回家后次净衣的收纳更方便且体面。