丫头和小乐是一对年轻小夫妻,13年,他们买了自己人生中的第一套房,满怀期待的开始布置属于他们的温馨小家。从开工到完工,前前后后经历了一年的时间,他们用图片跟文字记录下了装修的点点滴滴,并顺利从装修这个大学堂合作。
第一套房,他们选择了美式田园风格,悠闲、自然、浪漫,非常合适年轻夫妻,89㎡的房子,半包用了10万左右,后期又添置了一些软装饰品,越住越有味道,和小微一起来看看,他们的家到底有多美吧。
89㎡ ╳ 美式田园
面积:89㎡ 户型:2室 预算 :10.0万(半包)

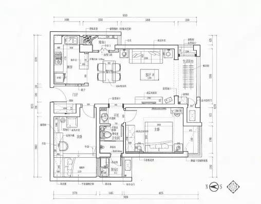
户型设计图

3D示意图
女主人:在开始装修之前,一定要做一张详细的预算表,装修是个无底洞,你是填不满的,如果你想用最少的钱装出最好的效果,心中一定要有杆秤,如何用100块的东西,装出200块的感觉,而不是20块,这不仅跟品味有关,还跟你的预算有关,因此,一张详细的预算表是非常必要的!
客厅

▲客厅是非常需要注重采光的地方,如果采光不好,不但影响人的心情运势,也会让整个房子看起来昏暗无光。

▲女主人(以下称丫头)一开始就将阳台的移门拆除,虽然不太常见,但不失为弥补采光的好方案,而且让空间看起来更为宽阔。但是建议不是高层的最好不要拆除,注意防盗。

▲只要是晴天,家中的采光就很好,从厨房到客厅到阳台,整个都很通透,心情也会变好呢。从牛仔门出去,是一个由小阳台改造的“空中花园”,牛仔门可以在网上定做的哦~

▲小阳台整面墙都打上了杉木板,然后涂了一层柚木漆,木板上挂上小灯串,夜晚看起来非常有酒吧的感觉呢~

▲客厅与厨房用一个吧台来隔断,本来这面墙是堵死的,但是一走进厨房,不开灯就四面无光,被逼无奈,丫头只能把墙打掉,做成了半开放式厨房,当然,事实证明效果不错!

▲电视背景墙同样也是杉木板,简单、朴素,跟整体风格非常符合,杉木板价格便宜,实用美观,有需要的小伙伴可以参考一下。
厨房

丫头:厨房是我最花心思的地方,我们家厨房很小,留给我切菜的地方都没有,这边给大家几点小建议吧:
1、如果厨房用的是仿古砖,可以大胆使用黑色的美缝剂,不但好看,也不怕油烟把缝熏黑了;
2、煤气灶尽量选用黑色玻璃的,清洁起来很方便;
3、厨柜可以用砖砌,真的很省钱,如果厨房小,建议不要做上柜,除非你东西多到一定需要!

▲厨房调味品是很占地方的,可以从淘宝上买一个调料架,挂在冰箱上,节省了不少地方,又整洁又方便。

▲水槽上方,挂了一个可以沥水的五金置物架,可以将餐具之类的放在上面。

▲重点来了,这是丫头最爱的地方——配菜台,很多人会忽视这一块地方,但是喜欢做菜的小伙伴一定要知道配菜台的重要性。

▲配菜台设置在吧台的下方,一来可以隐藏这些瓶瓶罐罐,保持美观,也可以设置一些插座,方便电器的使用,但是从客厅,是完全看不到的哦~来欣赏一下丫头的厨艺~





主卧

▲主卧是典型的美式风格,棕色与白色的基调,加上蓝白格的被单,悠闲的乡村的风格浓郁。

▲卧室还有个大飘窗,采光良好,平时也可以坐在飘窗上看看书,听听音乐~

▲丫头好像特别喜欢浪漫的灯哈哈~

▲衣柜是四开门的,男女主人的衣服都分开放置,不会互相占据空间。

▲下面的抽屉用来放置内衣袜子,可以用收纳盒划分格局,更整齐。卫生间

▲这个家里很多门洞都用文化砖来装饰,看起来十分别致,成为了亮点,一个家里该有亮点的地方得有亮点,简单的地方就该简单。

▲不知道大家发现没有,这个厕所没有镜子!!哈哈,其实只是被藏起来了而已。因为厕所的镜子正对着卧室,风水上来说不太好,于是丫头想了个妙招,去网上淘了个中空的假窗户,又订做了一面镜子放在里面,不用的时候合上,完全不影响!


▲金属质感的花洒与仿古砖非常搭配,简单的毛巾架实用却不占地方。

▲马桶的形状是不是与门洞非常相似呢~嘿嘿,丫头当初一眼相中了它,小微也觉得是个非常明智的选择。
书房

▲书房其实是由次卧改造的,房间没有放床,但是配备了榻榻米,既可以储物,又可以作为临时床铺。

▲安静的夜晚,乐先生喜欢坐在沙发上一边喝咖啡一边看书,是不是很有画面感。
阳台

▲被拆除了移门的阳台,用落地窗帘与客厅隔开,采光确实非常棒。



▲小小的阳台,摆一张小沙发,放一张茶几,养一盆绿植,最配悠闲的午后了~

▲阳台的一侧可以放置洗衣机。
小细节





小微提醒大家:家要用心布置,生活要用心经营哦!想要了解更多装修信息,继续关注我们哦~
-------成为一个会装修的人-------
想要学习更多装修的相关知识,掌握更丰富的家装经验?百度搜索“兔狗家装”(也可关注我们的公众号哦~微信公众号:vzhuangxiu☞长按微信号即可复制哦),装修管家竭诚为您服务!