来自杭州的朱先生和妻子即将迎来家里第二个宝宝了。为了给孩子们更好的生活,他们决定换一个更大的房子。
看房子也持续有半年多的时间了,直到有一天一好友告知他们买了一套房子带负一楼,可以来看看。基于对朋友眼光的信任,夫妻俩当天便去了。
房子位于一楼,南面是街心花园和一条小河,不用担心会有建筑物影响采光;85平方加上赠送面积,一楼就可以做成三室两厅两卫。负一楼由于天井设计的比较合理,依然光线透亮,视野开阔。彻底清除了夫妻俩对负一楼的负面想象。
天井用玻璃封顶,雨天雪天都可以在这里煮茶烫酒养花看书,岁月静好,这不就是自己向往的未来家吗?


地点:浙江杭州
使用面积:180㎡
费用:45万

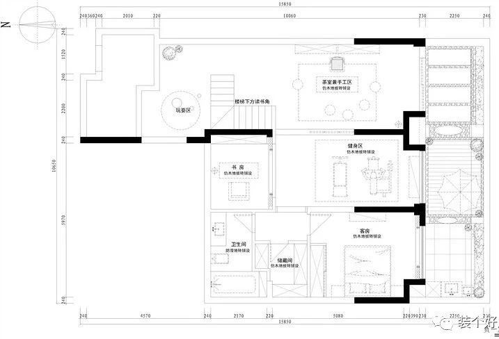
▲一层平面布局图
房子位于一层,户型方正,客厅和两个卧室朝南。

▲负一层平面布局图

房子买下后,夫妻俩就开始张罗房屋装修的大事了,装修风格一定要新中式,中式风格有浓厚的文化底蕴,一花一叶,一桌一椅都有体现着精湛细腻的中式美学。
一是“中式”,一是“新”,两种元素缺一不可。失去了“新”的中式过于厚重,而失去了“中式”则缺少底蕴。

家里的家具大部分都是定制的,线条简练而意境深远,浅木色的颜色也打破了以往人们印象中中式家具厚重沉闷的感觉,清爽自然,放眼望去眼睛都是非常舒缓的视觉享受。


传统的中式花鸟以及禅元素,搭配现代风格元素,让人心生向往。


配上中式的墙纸壁画,软包靠枕,透露出禅意的精致美感。



免漆的木饰面加上原木色餐椅,配色质朴大方,勾勒出空间的袅袅仙逸。


卡座背后的镜面提升了质感,也扩宽了视觉效果,让空间更加丰富有变化。


吊灯、挂画、餐边柜...简单的线条勾勒出精致又充满意境的空间。



主卧采用了古色古香的架子床,搭配肃然淡雅的墙纸和棉麻质感的床品。


看多了珠光宝气金碧辉煌的设计,这样的空间更像一杯清茶,让人心旷神怡。



次卧墙壁采用了淡淡的草绿色,绿色是大自然中最常见的颜色,代表着生机、希望和成长,用作小孩房的背景色,非常符合寓意。


搭配原木色或者米色,营造出温暖的居家气息。


负一层是书房、茶室、健身房等公共空间。

茶室和健身房之间用通透的屏风隔断。

茶室简单清新,大量的留白为生活带来更多可能性,未来可以慢慢将这个空间一点点丰满起来。


吊顶浅色木质线条将梁穿插进去,互相融合形成一体,与浅木色雕花板相映成趣。


旁边还设置了一处安静的小书房,可以满足需要安静独处的需要。


健身区的设置十分简单,充足的空间外加一整面墙的镜子,在这里做做瑜伽练练哑铃,都十分方便。

从健身房看大小书房


负一层的采光井封了一个玻璃顶,形成了一个室内小花园的空间。

“宁可食无肉,不可居无竹”,一直以来,中国人对居住环境都有相当高雅的品味。
绿色草坪加上青石板,旁边种着小青竹,温暖的阳光洒进来,竹影斑驳,倒映在粉白的墙面上,夏雨冬雪,都有着不一样的美好景致。


案例及图片来源:辉度空间
-------[END]------