
Mobil Arquitectos为智利岛屿遗址设计了Tierra Chiloe酒店
Mobil Arquitectos designs Tierra Chiloe hotel for exposed Chilean island site
由智利Mobil Arquitectos公司设计的这家精品酒店,坐落于一片长满草的小山上,有一个可以享受海景的玻璃餐厅,还有一个休息区和地下spa空间。
Tierra Chiloe位于智利Chiloe群岛的主岛上,其中大部分是丘陵和田园,享有广阔的水景。
This boutique hotel by Chilean firm Mobil Arquitectos perches atop a grassy hill, with a glazed dining and lounge area offering ocean views, and a subterranean spa.
Tierra Chiloe is located on the main island of the Chiloe archipelago in Chile, much of which is hilly and pastoral, with expansive views of the water.

客人可以欣赏附近海峡、太平洋和安第斯山脉的景色,还有岛屿周围的Pullao湿地。
酒店的外立面采用木质瓦片,灵感来源于岛上历史悠久的木制教堂,木制教堂由耶稣传教士于17世纪建造。
Guests can take in vistas of the nearby channel, the Pacific Ocean and the Andes mountains across the water, as well as the wetlands of Pullao that surround the peninsula.
The exterior of the hotel is clad in wooden shingles to reference to the island’s historic wooden churches, which were built by Jesuits missionaries in the 1600s.

Mobil Arquitectos设计的酒店共有三层,与自然风景相互呼应。一层采用落地窗,上层包裹着银色的瓦状材质,地下室是一个洞穴般的空间,可以看到外面的一些景色。
Mobil Arquitectos designed the hotel with three levels, all of which interact with the natural scenery. The ground floor is lined with floor-to-ceiling windows, the upper level is wrapped in the silvering shingles, and the basement is a cave-like space with hints of views outside.

“酒店的设计和建造都是为了体现这个地方的性质,”Mobil Arquitectos表示。“它的建筑是古老的奇洛传统与当代设计工具的结合。”
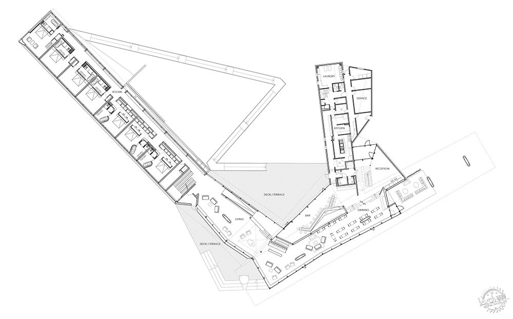
在平面图中,建筑物一部分呈钝角排列。部分空间架空抬起,尽可能少地干扰地面空间。
"The hotel was designed and built as an element of the nature of the place," said the firm. "Its architecture is a combination of the old Chiloe tradition with contemporary design tools."
In plan, the building’s wings are arranged at an obtuse angle. Portions are raised on stilts to disturb the ground as little as possible.

位于圣地亚哥的Mobil Arquitectos说:“酒店的设计以一座连接远处景色的桥梁作为起点,并试图不改变景观的地形。”
客房在楼上的丘陵地带上方悬挑而出,而下面的公共区域有采光井和向上倾斜的天花板,让光线充满整个室内空间。
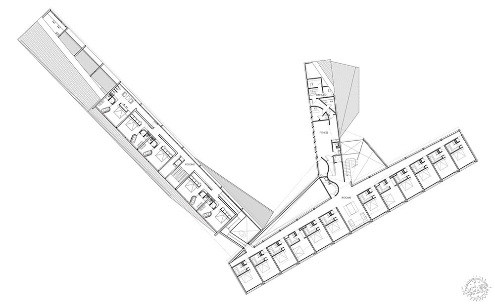
建筑一边有十二间卧室,公共浴室位于走廊附近。另一部分的顶层有五间客房,三层还有七间客房。
因为场地在极端天气条件下,所以该设计基于一系列遮蔽的内部设施。在天气温和的时候,可以享受户外活动。
"The design of the hotel has, as its starting point, a bridge that connects the distant views and that tries not to alter the topography of the landscape," said Mobil Arquitectos, which is based in Santiago.
Guest rooms are suspended above the hilly site on the upper floor, while common areas underneath have lightwells and ceilings that angle upwards, all to amplify the natural light that enters.
One wing has twelve bedrooms with ensuite bathrooms located near the hallway. The opposite section includes five guest rooms on the top floor, with seven additional rooms below.
The design is based on a series of sheltered interiors, as the site is exposed to extreme weather conditions. Nevertheless, there are spaces for enjoying the outdoors on mild days.

在主楼层,建筑物的连接处,两侧是两个室外露台。这些公共户外区域设有室内休息室、酒吧、用餐区和各种休闲区。
公共空间采用木质天花板,使光线更加地柔和。楼上的所有墙壁、地板和天花板都采用蜂蜜色木材,为项目带来凝聚力。
On the main level, at the joint of the building, are two outdoor decks on either side. These public outdoor areas join an indoor lounge, bar, dining area, and various seating areas.
The communal spaces feature wooden boards on the ceilings to amplify the warm light. Upstairs, all of the walls, floors, and ceilings are similarly wrapped in honey-toned wood, to bring a cohesiveness to the project.

“酒店的设计是保护和利用场地环境之间的结果,这些特征共同构成了Chiloe独特的记忆和体验,” Mobil Arquitectos说道,事务所的办公场所也是一个嵌入式建筑的住宅区,位于智利海滨小镇的山坡上。
"The design of the hotel is the result of this dialogue between protecting and taking advantage of the unique characteristics of the site, which together build the memory and experience of visiting Chiloe," said the studio, which is also behind a housing complex embedded into a hillside of a Chilean seaside town.

整个酒店的家具也是木制的,进一步烘托了乡村和轻松的氛围。黑色结构细节由黑色、灰色、紫红色和奶油色的纺织品补充,这些都与岩石、多风的场地相关。
地下室设有一个水疗中心,包括游泳池、健身中心、更衣室和技术中心。地下室的门通向室外更大的游泳池和一个石造露台,两者都采用木制天花板覆盖,朝向海岸。
Furniture pieces throughout the hotel are also predominately wooden, and further contribute to the rustic and relaxed atmosphere. Black structural details are complemented by textiles in colours of black, grey, mauve, and cream – all chosen to relate to the rocky, windy site.
In the basement are a spa that includes a swimming pool, a wellness centre, a locker room and a technical centre. Doors lead outside to a second, larger pool and a stone patio that are both covered by a wooden ceiling that lifts up towards the coast.

建筑的另一面呈一定的倾斜角度悬挑出山坡。 酒店内的厨房、洗衣房和服务室位于底层。接待处附近的楼梯通往办公室和上层的健身室。
智利丰富的自然景观吸引了来自世界各地的游客。智利其他著名的酒店还有在Elqui山谷观星的酒店, Puerto Natales的海滨度假胜地以及位于偏远的Patagonia的小屋。
摄影:Cristóbal Palma
Another portion of the building juts out from one of the main volumes at an oblique angle. Inside are the hotel’s kitchen, laundry and service room on the ground floor. Stairs near a reception desk lead up to offices and a fitness room on the upper level.
Chile’s dramatic landscape is a draw for travellers from around the world. Other accommodation options across the country include a hotel for stargazing in the Elqui Valley, a coastal retreat in Puerto Natales, and a series of cabins in remote Patagonia.
Photography is by Cristóbal Palma.








----------------------------------------------------------------------------------------------内容转自:专筑网
由专筑网缕夕,杨帆编译