-
建筑类型:别墅样板间
-
建筑位置:河南省
-
建筑面积:430㎡
-
设计风格:新中式+欧式元素
-
咨询方式:13673379784(河南业主,加微信预约设计师)
-
合作模式:大包(设计+施工+材料代购)
-
装修投入:300万
-
竣工时间:2012/01/05
-
设计说明:客户非常注重生活品质,在满足豪华大气又不失内涵的基础上,设计师适当的采用了中式元素的混搭,使得原本繁琐的欧式变得简单明快,又不失时尚感。布局除了传统的客厅中空,还增加了楼梯井、休闲区的中空效果,大理石弧形楼梯的镂空效果,使得整体空间豪华气派。
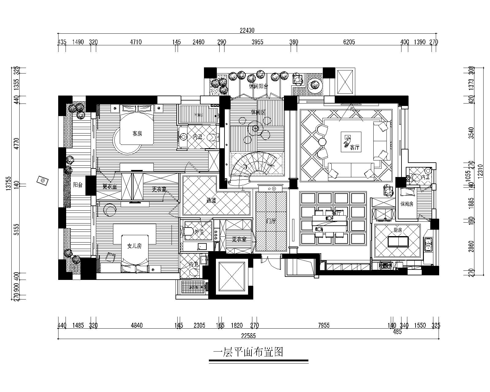
▼ 平面结构


▼ 效果图

















