消息来源:搜建筑
鄂尔多斯·那和雅幼儿园


人类生活在建筑里。建筑不仅是容纳人们的庇护所,也在潜移默化地影响着人的精神状态和思维方式。尤其是对孩子而言,他们是天生的艺术家,能敏锐地感受到环境的变化,同时也容易受到环境的影响。
Humans live inside buildings. Architecture does not only shelter human bodies, architecture is affecting human’s mental status and way of thinking in a subtle way consistently. This theory specifically applies to children, the born artists. Children can keenly feel the environmental changes and also can be easily affected by the environment.

幼儿园是孩童生活中除了家以外最重要的建筑。在幼儿园,孩子们开始通过社交行为来形成自己对世界的认知。因此,幼儿园的设计应肩负巨大的责任,建筑参与人格的养成和塑造。
Kindergarten is the most important building in children's early life besides their homes. In the kindergarten, children start to form their own understanding of the world through social behaviors. Therefore, the kindergarten design shall take a great responsibility since the architecture participate the formation and shaping of their personalities.

那和雅幼儿园,原名“鄂尔多斯东胜第一幼儿园”,是地方政府于2011年委托的。目的是建立一所高档幼儿园,提供给当地的蒙古族和汉族孩童,其设计理念是让建筑参与教学。
Naheya Kindergarten, original called as “Ordos Dongsheng No. One Kindergarten”, was a commission to WEI architects in year 2011 from the local government. The objective is to build an upscale kindergarten to benefit the local children of both Mongolian nationality and Han nationality. The design concept is to design this upscale kindergarten with a new typology integrating pedagogies.


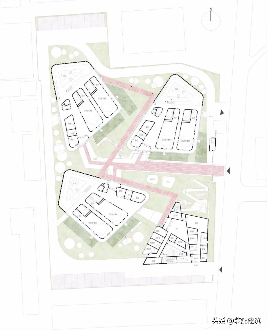
首先对空间结构进行了调整。传统的幼儿园空间结构通常以简单的方式分为各班的教室空间和全园的统一活动空间。这种二元的空间划分和布局体现了体现着传统填塞式教学过程中,单一的阶层关系和使用场景。
WEI建筑师通过将这15个班的幼儿园解构为“院落”(称为“庭院社区”),打破了传统幼儿园的简单的空间等级。他们作为一个有机的群体被连接和协调。
The spatial structure was reconfigured firstly. The traditional kindergarten space structure is usually divided into individual classroom spaces and the unified activity space of the whole school in a very straight forward way. This binary spatial division and layout reflect the single hierarchical relationship between teachers and children, and usage scenarios during the traditional teaching process for the nationwide dominating cramming education. WEI architects broke the conventional unified spatial hierarchy by deconstructing this 15-class kindergarten into “tribes”, which are named as “Courtyard Communities”. They are connected and coordinated as one organic group.


该设计不仅将单个大型结构体分解为一系列组合体的整合。更重要的是创建了多层次的空间和不同环境的相互渗透。这种交织的空间组织基于鼓励多向的交流,并提供灵活的环境以刺激自发活动的想法。
This design is not just breaking down a single big structure into the integration of a series of assemblies. What is more important is to create multiple levels of spaces and interpenetration of versatile environments. This interwoven spatial configuration is based on the idea of encouraging multi-directional communications and providing flexible environments to stimulate spontaneous activities.



鄂尔多斯市位于内蒙古,是蒙古族和汉族混居的城市。该幼儿园是一家旨在帮助当地儿童传承当地文化的幼儿园。
鄂尔多斯气候终年晴朗,风力强劲。昼夜温差大,四季分明,这种强烈的气候特征在塑造当地文化中一直发挥着非常重要的作用。
蒙古族原本是游牧民族,基于广阔大草原生活的内蒙古人,内蒙古人性格豪放,对自然有着强烈的依恋和归属。文化与环境之间的这种紧密联系极大地激发了该建筑设计的灵感。
Ordos is located in Inner Mongolia, where Mongolians and Han people live together. Naheya Kindergarten is a kindergarten aiming to help local children inherit the local culture. The climate in Ordos is sunny all year long accompanied by strong wind. The temperature variance between day and night is magnificent, and the four seasons is very clearly divided throughout the year. This intense and crystal characteristic of climate has been playing a very important role in shaping the local culture. The Mongolians were originally nomads based on the vast prairie. Inner Mongolian people have vigorous and bold personalities and cherish the strong attachments belongingness to the nature.This close relationship between culture and environment has greatly inspired this architectural design.



WEI认为建筑是环境的一部分,是人文与自然之间的自然联系。在该幼儿园的设计中,WEI引入了一种新的空间,称为“半室内公共空间”。在每个院落社区内,各个班级的室内外空间都围绕半室内公共空间布置,以进行公共活动。
居中的开放空间设有巨大的天窗和通风的幕墙,在室外和完全封闭的室内之间营造了一个环境,在这里孩子们仰望蓝天白云,感受阳光照射的角度的变化,并体验风与温度的变化。
WEI architects believe architecture is a part of the environment, the natural connection between humanity and the nature. Between the Black and the White is the richest Grey. In the design for Naheya Kindergarten, WEI introduced a new space “semi-indoor public space”. Within each Courtyard Community, indoor and outdoor spaces for each class are arranged around the semi-indoor public space for public activities. The centered open space featured with huge skylights and ventilated curtain walls, constructs an environment between outdoor and completely sealed indoor, where children can look up at the white clouds flying thru the blue sky, tell the rotation of sunlight angle, and experience the wind and temperature changes.



如同传统的蒙古包组成的居住组团,幼儿园作为一个有机整体,由三个班级单元和一个公共空间单元组成,它们通过不同高度的连廊相互连接。
公共建筑单元由开放空间和山坡组成,位于幼儿园的入口处,与城市公园相邻,成为公园的延伸。
山坡上有跑道和看台,可以举办各种活动,同时还连接了整个建筑群体在各个层的环形连廊。
Like the traditional tribes formed by group of the Mongolian Gers, the kindergarten as one organic group consists of three class units and a public space unit, which are connected to each other through corridors at different heights. The public building unit is composed of open spaces and a hillside, which is located next to the entrance of the kindergarten, adjacent to the city park, and becomes an extension of the park. There are runways and grandstands on the hillside for different events and activities. The hillside also becomes the connection to the circular corridors on all levels.


孩子们通过在不同事物之间建立联系来认知世界。他们会去寻找不同事物和体验之间的异同,以确定它们之间的关系。这不仅是孩童思考的最自然方式,也是在建筑设计中策划孩童早期学习活动的重要依据。
给孩子的体验越丰富,孩子的观察就更敏锐。生活中进行的对话越多,孩子的语言表达就更加丰富。
Children understand the world by establishing connections between different things. They discover the similarities and differences between various objects along with experiences to determine the relationship among them. This is not only the most natural way of children’s mentality, but also an important basis for architects to plan children's early learning activities in architectural design. The richer the experience given to children, the more sensitive the children's observation will be. The more conversations that occur in life, the more abundant the children's language expression will be.


该幼儿园相对独立但紧密相连的有机建筑群体,为儿童提供了一个充满探索性的空间环境。这种建筑设计不仅挑战了传统的教育方式,而且也挑战了基于传统教育方式的建筑规范。
但是,新理念在2011年底被接受。不幸的是,当地经济突然下滑,此项目在随后的几年中被搁置。经过多年的经济衰退,该项目在2018年恢复。
鄂尔多斯东胜第一幼儿园改名为那和雅幼儿园。“那和雅”是蒙语“苗苗”的音译。尽管做出了一些妥协,但建筑理念仍然保持不变。
With the relatively independent but closely connected organic groups of buildings, Naheya kindergarten provides children with a rich exploratory space environment. This architectural design not only challenged traditional education methods, but also challenged building codes based on traditional education methods. Eventually the new concept was accepted at the end of year 2011. Unfortunately, the local economy suddenly collapsed. The project was on hold for the following years. After years of economic recession, the project managed to be resumed in 2018. Ordos Dongsheng No. One Kindergarten was then renamed as Naheya Kindergarten. Naheya means “New Leaves” in Mongolian. Despite certain compromises, the configuration of the design remains untouched.



该幼儿园最终于2019年建成。幼儿园也迎来了第一届幼儿班。迎接他们的不仅仅是崭新的幼儿园建筑。
这个新创建的环境继承了当地文化并珍惜自然。幼儿园打破了传统的教育体系,为当地儿童培养了新一代的教育理念。
This kindergarten is finally completed in 2019. Naheya Kindergarten ushered in the first toddler class. It’s not just the newly constructed kindergarten building that greets them. This newly created environment inherits the local culture and cherishes the nature. Naheya Kindergarten breaks the traditional education hierarchy and incubates a new generation of education concepts for local children.
总平面图

底层平面图

二层平面图

三层平面图

剖面图




草图


建筑师:WEI建筑设计
地点:中国 鄂尔多斯
主创建筑师:魏娜
设计团队:Christopher Mahoney、檀松、杨添堡、吕婧超、杨伟明
面积:6800平方米
年份:2019
摄影:夏至
