收拾家光靠勤劳是不够的,
还要靠智商!

同样是小厨房,为什么你家的空间永远不够用?采访过那么多的生活咖后,宅Sir得出一条道理——咱不能只怪房子小,出错的其实是家的收纳方法!于是,宅Sir今天邀请了几位内外兼修的“ 在家高能屋主 ”来分享他们的厨房收纳*法大**!
①在家屋主:逆神针
绝招: 我是处女座!

对我来说,厨房是家里的核心,是充满烟火气的地方。把厨房收纳的井井有条,不做饭的时候看看也舒服。

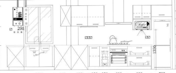
厨房户型图,面积:不足5㎡
我家勉强算是个U型厨房,厨房分三个区域:北边水槽区域,西边灶台区域,南边冰箱区域 。

逯薇老师的《小家,越住越大》给了我很多的启发,结合我家厨房,我也做了一个收纳分布示意图:

灶台收纳分布图↑↑↑ 收纳要遵循自己在厨房的使用习惯,使用率高和不常使用的厨房用品合理划分,除了收纳以外,日常使用后放回原处也很重要。
吊柜收纳,我主要用带把手的透明收纳盒,既看得见又拿得着。

水槽区域的收纳分布图 ↑↑↑
水槽区:充分利用了窗台和墙面,安装了三层的沥水置物架,用来收日常刚刚清洗的盘子和碗。最上层还可以放植物。铁艺收纳筐用来放清洗剂之类的用品,解放了台面的空间。

水槽区域收纳细节 ↑↑↑
墙面置物架:淘宝 甜曦家居收纳 78元左右
收纳筐:淘宝 聚可爱 25.8元

地柜区域的收纳的收纳分布图 ↑↑↑
地柜区域: 我用了很多储物盒来收纳清洁用品,厨房用具,地柜还藏了抽拉式的垃圾桶。

带轮收纳箱:淘宝 懒角落创意家居生活馆 20元左右
带轮收纳箱适合水槽柜,没有搁板的下柜使用。可以放置调味品,小型锅具,中间有凹槽,方便放置带柄锅具,底部后端有滚轮,方便拖出取物。我用它放了各种清洁剂。

抽屉收纳示意图 ↑↑↑
地柜的抽屉是后来定制的,建议大家在做橱柜的时候尽量做抽屉,会使你的收纳空间更合理。

inomata抽屉分隔盒 10元左右
横放组合刚好适合抽屉尺寸,第一排放常用的垃圾袋,水槽滤网,封口夹,第二排小工具;第三排厨具,第四排密封袋。

inomata抽屉式米桶 90元左右
第二层放米箱,第三层放面粉,干货,锅具。6公斤透明翻盖式储米桶,日本制造,附送残米盒,新米旧米分开储存,米桶扁体设计,可放入抽屉中。

冰箱区域的收纳分布图 ↑↑↑
置物架:宜家 149元
壁柜:宜家 220元
夹缝收纳车:网购 70元
这里交付时没有柜子,用了四层置物架和宜家吊柜做组合,打造一个开放储物空间,取放都很方便。

在置物架的收纳上,推荐宜家密封罐,透明的质地,无论放哪都会轻松找到它。冰箱侧面使用的是山崎实业的磁性收纳架,颜值高,我主要用来收纳密封袋、保鲜膜、厨房用纸。
在收纳分布中,我遵循以下三点:
☆轻-材质轻的物品,对应—吊柜;关键词:干货、杂粮、零食、挂面、茶叶、调味品;
☆常-最常用的物品 ,对应—墙面;关键词:锅铲、刀具、调料、厨具、锅盖、沥水架;
☆重-比较重的物品,对应—地柜;关键词:锅具、碗盘、备用调料、米面油、小电器。

宜家:格兰代挂杆 49元
利用吊柜底部,安一个挂杆,省去了墙壁打洞的烦恼;灶台左侧,挂厨具,筷子筒。

灶台右侧,用网篮挂调料和绿植。

未默集舍 洞洞板 150元左右
只需在墙面固定两个孔位,就可以利用整个洞洞板做收纳,配件丰富,可以根据需要随时变换布局。洞洞板的挂钩可以根据小工具的尺寸随时调整,收纳调料,小工具等等。

倍哥棒 迷你免钉杆 10元
油烟机和管道之间的吊柜,空间很窄,利用两根伸缩杆又隔出一层,放了收纳篮,下面放调料存货,上面放瓶装调料,空间翻倍。
❤ 在家屋主:思小丝
绝招:花式巧用收纳盒!

厨房对我来说是家里的另一个家,喜欢在厨房给家人和朋友做美食。一个收纳有序的厨房让我在做饭的时候更有心气儿,更愿意下厨房。

标红处为厨房户型图,面积: 8㎡左右
我家的厨房格局是常见的I字形,由于管道比较多,可用的柜子并不多,考验我收纳技能的时候到了!!

厨房全景↑↑↑

厨房的墙壁收纳主要是韩国的Dehub吸盘系列,淘宝有旗舰店,厨房纸巾、勺子、铲子挂钩等都是这个品牌,厨房操作台面不大,所以都是吸盘工具上墙,比较轻便的常用的工具,能挂的就挂起来。

水槽上方,用来放置洗洁精和洗碗棉的也是吸盘工具,这个是宜家的伊美恩卫浴系列,我觉得用来放在厨房也刚刚好,每次用完水槽,用抹布随手擦完水可以直接搭在小铁筐上。

抽屉收纳一定要用到抽屉分隔,我家的是日本进口餐具收纳盒 ,淘宝可以搜到,10元左右一个,中间还带分隔板可以把一个竖着的盒子分成两到三个小格子,用来收纳刀叉,筷子,各种厨房小工具,拉开抽屉一目了然,同类产品宜家厨房区域也可以找到,购买之前测量一下自家抽屉的长宽和深度。

文件盒:MUJI 69元
文件盒用来做盘子的收纳,可以纵向摆放,既节省空间,又方便拿取,还可以收纳烤盘烤架等烘焙用具。前提是需要测量自己抽屉的深度和长宽尺寸。

厨房吊柜的纵向空间利用,宜家的瓦瑞拉系列,整理盒39.9元,置物架29.9元,整理盒两边有把手,可以很方便从厨房顶柜拿下来;置物架可以将吊柜的层高切割为两层,增加适用空间。

日本进口带手柄杂物收纳篮:网购 单价9.9-23.9元
放在厨房吊柜的上层,有把手拿取方便,透明的材质也可以看到里面的物品是什么。

塑料置物架锅架:淘宝,懒角落创意家居生活馆,单价23.8元
置物架下方带轮子,可以将橱柜空间纵向利用,把平底锅,锅盖,不常用的工具放在这里面,解决了锅具叠落摆放的难题。 收纳神器“小推车”

小推车:宜家拉斯科克推车 249元
万能网红小推车=一个迷你橱柜!第一层用来放调料盒,因为操作台面不够大,小推车放在操作台对面靠墙,做饭时回身就能拿到调料;二层放一些保鲜袋,保鲜膜,烤箱料理纸;三层可以放零食,由于它的材质是铁的,可以吸小挂钩,挂隔热垫,烘焙手套等等,还可以把带磁铁的调料罐吸在上面。是不是利用的很极致!
❤在家屋主:抓住我的胃
绝招:能上墙的全上墙!

我是厨房新手所以每次下厨都全情投入,物我两忘,这种感觉很神奇,可以说很治愈。一个干净的厨房会让人有做饭给家人的动力,做菜的时候会注意,手上拿一块抹布或厨房湿纸巾,随手擦是一个好习惯。

厨房户型图 面积:10㎡左右
我家的厨房是开放式的,与客厅、餐厅连在一起,作为展示和使用的空间,所以保持厨房的整洁很重要。

墙上收纳

墙面除了柜子,还有两层搁板,锅都放在搁板和柜子顶部。你问我锅子放这么高拿起来也太不方便了,其实平时用的锅也就三个吧。

收纳杆可以配挂勾也可以把锅盖插在上面。宜家芬托挂钩配宜家格兰代挂钩,可以挂一切尾部有洞的物件:勺子、铲子、打蛋器、刷子、砧板、锅子,再配MUJI钢丝夹,可夹抹布或者擦手巾。


不想墙上打洞可以用dehub吸盘式免钉挂钩,墙面要光滑。如果是乳胶漆或者原木表面可以购买辅助贴。

宜家磁性刀架买了两条,一条吸刀,另一条吸杂物:开罐器、削皮器等一些小工具 。

我家抽屉是非常规尺寸,找合适的收纳用具很难。暂时都只是放着。唯一使用的是宜家瓦瑞拉餐具盘。放一些诸如电池、垃圾袋之类的杂物,可以叠加使用。

宜家的瓦瑞拉储物盒,可以放锅盖也可以放砧板。

拒绝了厨房整体橱柜公司建议的1500块钱的调料架,可以在抽屉里加上骑马抽隔离板来收纳调料瓶。

宜家拉斯克手推车,五色可选,可收纳、也可当火锅菜品餐车亦可当床头柜。

宜家瓦瑞拉垃圾桶,可以当临时垃圾桶扔扔厨余,也可以当塑料袋存储及其他物品。


有了这些神器,水槽柜瞬间变实用了。还可以用可伸缩搁板分成你喜欢的高度和层数。
❤在家屋主:小天
绝招:活用宜家!

曾看过一本美食家的书,她说每时每刻保持厨房的整洁会给做饭带来好心情。而我也保持着边做饭边清洁的习惯,让我的厨房一直干净如新。

厨房平面图 面积:5㎡左右

厨房空间图↑↑↑ 整个厨房用了灰色的墙砖和地砖,夜晚的灯光会让厨房都变得温柔起来,让我更享受做饭这件事。

浴篮框:宜家伊美恩浴篮 59元
水池左侧放置洗碗布、洗洁精、家务手套。浴篮框镂空的设计,让洗碗布和手套很快风干。承重力度也完全够,官方给的数据是3kg。但宜家的吸盘只受用于光滑的瓷砖或者玻璃表面,如果厨房是哑光砖就不推荐啦。

收纳杆:宜家格兰代 100左右
料理区挂着砧板,铲子,饭勺,料理手套等等常用的料理工具。格兰代很好的利用了墙面收纳,非常顺手,也不会霸占厨房台面啦,毕竟小厨房空间有限。

收纳工具:日本抽屉收纳盒 10元
一层放置筷子,定时钟,保鲜膜,削皮刀,压蒜器。收纳盒利于分隔工具,长短都可以调节,拿东西一目了然,非常整齐。

餐具盘:宜家斯马克餐具盘 3.9元
二层放置料理工具。用餐具盘划分了间隔和长短,我用来放料理工具,尺寸都刚好。

三层是常用的锅和不锈钢料理盆。装修时特地设计了一层高抽屉,专门用来放一些高的锅具。

油烟机两侧收纳。

油烟机两侧也做了很窄的收纳柜,放置烘培工具。利用吊柜的搁板分割收纳区,耐热的工具都可以放在两侧。
❤在家屋主:小鹿
绝招:断舍离

一个干净整洁的厨房会提升烹饪的乐趣哦,如果吃的开心了,还有什么会不开心呢?

标红区域为厨房户型图 面积:5㎡左右
我家厨房是一个5㎡左右的长方形U型厨房,左右分别是灶台和冰箱,窗户下面是水槽,布局十分紧凑,并且整个厨房只有半个吊柜,这必然要求我控制厨房用品的数量。

我本来一个吊柜都不想做,但为了遮住燃气表,就只做了一个柜子,用下来感觉还不错,放了很多干货,关上柜门,厨房清清爽爽。(因为空间的问题,并不能拍出吊柜的照片。)

吊柜打开的样子,上层因为比较高,所以放置的是比较轻便的特百惠储物盒,用来存放一些诸如香菇、木耳这种干货。下层伸手就可以拿到,所以储物罐重一些也无妨,用的是宜家玻璃罐,放一些豆子类。

隔板:淘宝木墨家 红橡木隔板 135元
搁板是我最爱的厨房单品之一,既能释放空间,又能美化空间。两年用下来,置于烤箱上面,没有开裂和变形,和新的差不多,非常推荐。

挂架:宜家芬托 59元 S钩 19元
挂架我用来收纳水果砧板、小锅具以及绿植。平时电饭煲拔下来的线无处收纳也可以挂在这根挂杆上,非常方便。

收纳格:宜家 左边的小格子10元;右边的大格子3.9元
抽屉相对于柜子来讲,更有效的分隔了空间,所以还是那句老话,能尽量做抽屉,就尽量做抽屉。
收纳格主要用来收纳厨房小用具,比如开瓶器、刮板、小刀子、小储物盒等等,现在还没有放满,可见我东西有多少。这一套分格盒真的是非常推荐,物美价廉,但是要记得量好自家抽屉尺寸再去宜家哦。
让我们从整理厨房开始吧!
日常生活中一点小小的改变,
就能给你带来意想不到的满足感。
让我们在整洁有序的厨房里,
给家人做一顿热气腾腾的饭菜吧!
宅Sir觉得,这才是家的味道