戳蓝字“设计小亿”关注我们哦!
回复“1”,获《名师图库规范》回复“2”,获《2020室内设计图库》
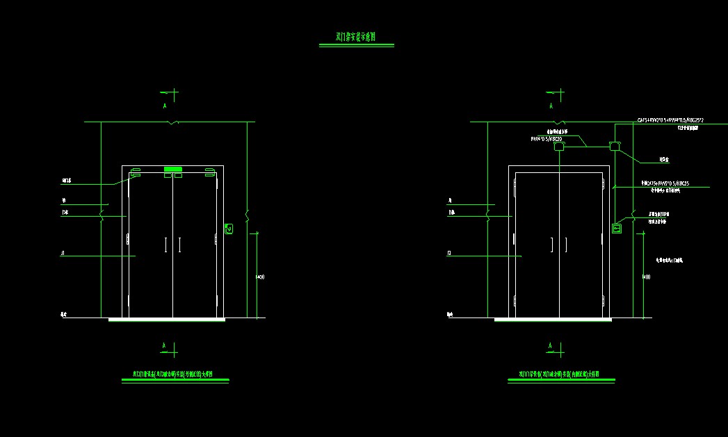
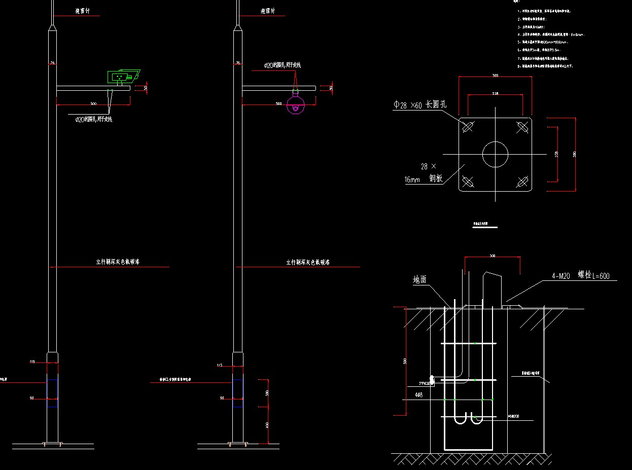
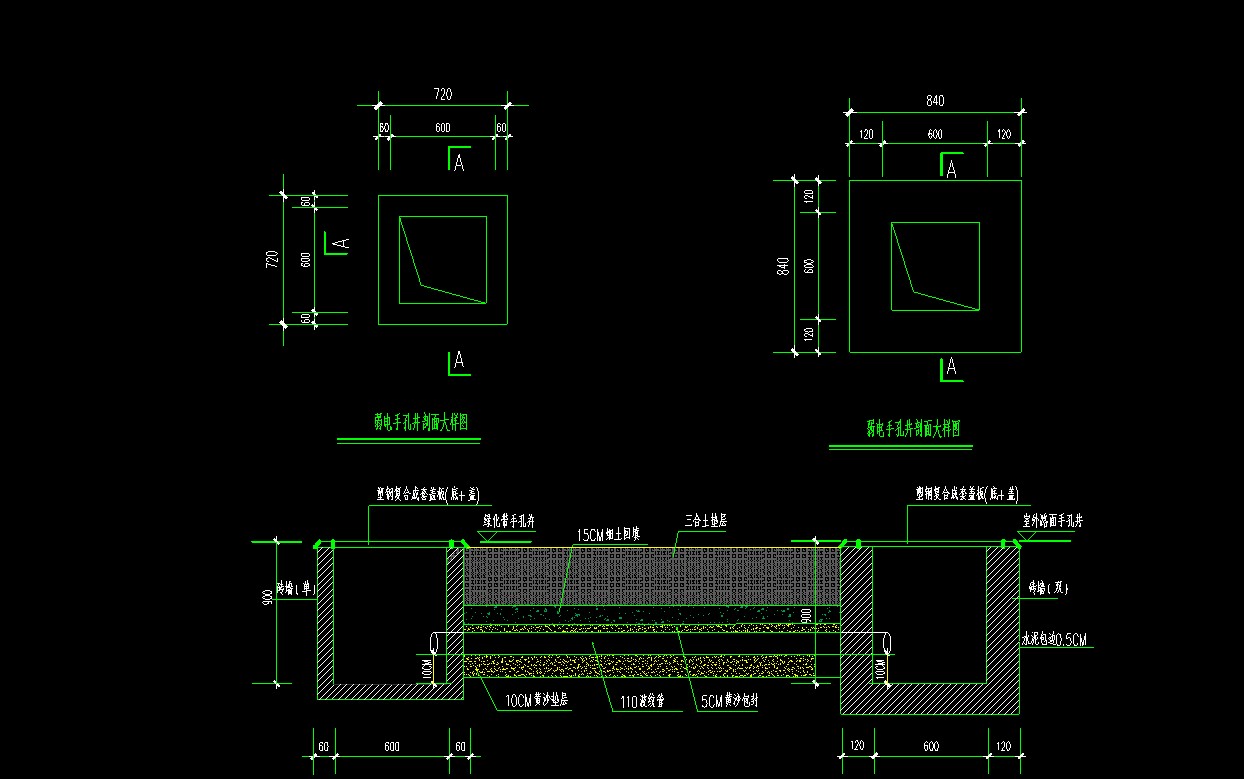
监控立杆cad图纸 监控摄像机立杆大样cad设备安装弱电井可视对讲
索取方式:转发 +关注 后私信 “ 999”联系小编获取资料!
废话不多说,请接图!

















(文件太多了,就不一一截图了)
能坚持看到这里的设计朋友,
必定是热爱设计,
对设计有追求之人,
让我们通过学习变成高富帅,迎娶白富美。
监控立杆cad图纸 监控摄像机立杆大样cad设备安装弱电井可视对讲
索取方式:转发 +关注 后私信 “ 999”联系小编获取资料!