现在回农村建房,新申请的宅基地面积都不会太大,小面宽、小户型将成为主流,这样的户型如何设计,也成为了一个难题。后台就经常收到粉丝私信,询问小面宽的户型应该如何设计?今天就给大家推荐10套小面宽的别墅图纸,造价最低只要20万,你们看看哪套更适合农村?
第1套:时尚落地窗+舒适阳台+简约平屋顶,9×11米现代风雅宅,主体预算25万

房屋基本信息
图纸编号:ZJ-1188
占地尺寸:9.1m*11m
占地面积:100.66㎡
建筑面积:208.77㎡
建筑高度:8.22m
建筑情况:共设4卧室 1客厅 1家庭活动室 1厨房 1餐厅 2卫生间 1储物间 1玄关 2阳台


第2套:南北双阳台+东西不开窗+顶层大露台,二层半小面宽临街住宅,主体预算28万

房屋基本信息
图纸编号:ZJ-1063+
占地尺寸(不含庭院):8m*13m
占地面积(不含庭院):109㎡
建筑面积(不含庭院):217㎡
总 高 度:6.5m
建筑情况:共设5室 2厅 4卫 1厨 1玄关 2阳台 2露台 1中庭 1庭院


第3套:双入户门+开放式厨房+北面晾晒阳台,7.5米小面宽现代户型,主体预算20万

房屋基本信息
图纸编号:ZJ-1172
占地尺寸:7.5m*10m
占地面积:76.46㎡
建筑面积:152.96㎡
建筑高度:8.45m
建筑情况:共设3卧 2厅 2卫 1开放式厨房 1茶室 1书房 1阳台


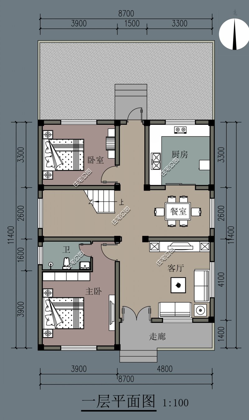
第4套:大露台+庭院+马头墙,8×11米新中式户型,主体预算38万

房屋基本信息
图纸编号:ZJ-1027
占地尺寸(不含庭院):8.7m*11.4m
占地面积(不含庭院):100㎡
建筑面积(不含庭院):283.1㎡
总 高 度:12.8m
建筑情况:共设5室 3厅 4卫 1厨 1棋牌室 2储藏室 1书房 1阳台 1露台 1庭院



第5套:围合式小院+顶层大露台+南向双客厅,7×10米小面宽新中式小院,主体预算30万

房屋基本信息
图纸编号:ZJ-1160
占地尺寸(不含庭院):7.3m*10.2m
占地面积(不含庭院):76.4㎡
建筑面积(不含庭院):217.3㎡
建筑高度:13.1m
建筑情况:共设4室 3厅 3卫 1厨 1玄关 1阳台 1露台



第6套:神龛+大露台+首层不设卧,8×10米小面宽欧式雅宅,主体预算30万

房屋基本信息
图纸编号:ZJ-1286
占地尺寸:8.6×10.8m
占地面积:92.31㎡
建筑面积:244.58㎡
建筑高度:12.8m
建筑情况:4卧 2厅 3卫 1厨 1阳台 1露台 1神龛



第7套:豪华套间+健身房+大露台,9米小面宽高品质住宅,主体预算36万

房屋基本信息
图纸编号:ZJ-1213
占地尺寸:9m*11.7m
占地面积:102㎡
建筑面积:288㎡
建筑高度:12.1m
建筑情况:共设4卧 1客厅 1餐厅 1厨房 5卫生间 1起居室 1棋牌室 1健身房 1休闲室 1书房 1玄关 1露台



第8套:双入户门+大露台+宽敞大厅,9×13米素雅欧式别墅,主体预算40万

房屋基本信息
图纸编号:ZJ-838
占地尺寸:9m*13.2m
占地面积:117.54㎡
建筑面积:316.78㎡
总 高 度:12.4m
建筑情况:共设7室 1厅 3卫 1厨 1中堂 1起居室 1阳台 1露台



第9套:舒适双客厅+顶层大露台+多卧室,7×9米小面宽简欧户型,主体预算32万

房屋基本信息
图纸编号:ZJ-1062
占地尺寸:7m*9.5m
占地面积:77.7㎡
建筑面积:254㎡
建筑高度:13.4m
建筑情况:共设5室 3厅 3卫 1厨 1神堂 2阳台 1休息平台




第10套:小面宽+多套间+大露台,8×9米经典欧式别墅,主体预算30万

房屋基本信息
图纸编号:ZJ-1028
占地尺寸:8.4m*9.2m
占地面积:80.7㎡
建筑面积:230㎡
总 高 度:12m
建筑情况:共设4室 2厅 3卫 1厨 1堂屋 2衣帽间 1书房 2阳台



这10套图纸设计都很好,而且占地面积不大,建房预算也不高,非常适合农村修建。如果是你,你会选择哪套图纸回农村建房呢?
想看更多农村别墅设计,可以关注头条号:住宅公园。