本文转自公众号小印帆的笔记本,作者小印帆工作室
作者 | 康善之(重庆大学)
设计指导老师 | 崔彤,张兴国
栏目主编 | 赵雨轩(合肥工业大学)
织木.宁德水岸工艺馆
————————
浙闽木拱桥工艺的当代转译初探

小印帆工作室 | 第11份高分课设
全文4250字 | 阅读约需6min
Hello大家好吖,欢迎来到本期的高分课设!
收到本期投稿的时候小编惊奇地发现,这份作品是小编自己每次出图时都会拿出来参考学习的一份图纸,能有机会和作者深入了解这个作品,内心也是很激动呢,同时在撰稿过程中,我们反复讨论修改了近10次,就在发文前,投稿者的再三仔细修改实在让我们感慨万分—做好事情,无非认真二字,康同学无愧是年级第一呀,真的很让人钦佩~~~下面我们就一起来揭开这个作品的神秘面纱吧!(文末附征稿说明)
先来认识一下本期的作者吧!

康善之
重庆大学本科在读
综合排名及绩点均为专业第1名
本方案获2019基准杯大学生建筑设计竞赛二等奖
这个方案是我在大四上学期完成的(课赛结合),思路来源是在京实习时接触到的木拱桥工艺。随后的两个月中,我围绕这种巧妙的编织结构,在校内外老师们的指点下进行了一些初步的尝试和探索,并获得了基准杯大学生建筑设计竞赛的二等奖。由于设计时间及个人能力的有限,方案中尚存不足之处,还请大家不吝赐教。
实体模型+大图登场!




实体模型照片及方案图纸 @康善之
A .思路来源及设计选址
方案的思路来源还要从我的实习经历说起~大三暑假期间,我曾跟随崔彤老师学习,参与了一个位于杭州的文化类建筑的设计,在梳理思路的阶段,团队进行了一系列关于中国传统建筑空间的探讨,我们研究了《千里江山图》等宋画,而《清明上河图》中的汴水虹桥也引起了大家的注意。随后我在老师的指点下进行了梳理学习,在这个时候我第一次接触到了 木拱桥。
实习结束后的第一个课程设计是与建筑历史相关联的,有不同方向的课题组供同学们选报,而我所在的课题组允许同学们根据兴趣选择场地。我表达了 在课程中对木拱桥形式、结构进行转译的想法,崔彤老师鼓励我去做一些探索,而带课的张兴国老师也允许我沿着这个稍显“非主流”的思路去尝试,于是我便开始了这段持续两个月的探索旅程。

《清明上河图》中的汴水虹桥 图源网络
木拱桥是中国古代十分独特的一个桥梁品类,兼具实用性和艺术性。古代工匠们采取了一种很巧妙的编织手法,用木杆件实现了较大跨度拱结构的搭建。
早在北宋时期便出现了这种编木工艺,但宋亡之后北方没有存留下遗址。上个世纪70年代,专家们在南方福建和浙江一带发现了一批结构逻辑类似的桥梁。这些桥梁在虹桥的基础上,根据浙闽一带的地貌特点和通航需求演化出了不太一样的结构形式,其工艺也在南方的桥匠世家中祖辈流传下来。

浙闽地区的工艺传人及现存木拱桥 图源网络

时间线梳理
福建宁德是现存木拱桥集中的地区(多达50余座),我在课程中选取了宁德三都澳景区的场地,拟通过建筑的介入将系列滨水活动空间联为一体,并为当地手艺人提供一个传承展示其技艺的场所。我尝试对木拱桥的编织结构进行建筑化并运用在滨水艺术空间的营造之中,进而结合“大黄鱼之乡”的渔猎和旅游产业打造一个复合工艺馆。

场地周边环境
B .木拱桥工艺转译初探
设计初期,我尝试通过一系列的文献学习(文末附参考文献)以及实体草模搭建,对这种桥梁的原理形成初步的认知。
由于个人知识储备有限,我在这个过程中遇到了不少难点。刚好大四上学期我们学院设有《建筑构造(2)》这一课程,我便列出了问题去请教带课的覃琳老师,老师专门腾出了时间,结合草图非常耐心地做了解答,并提供了一些很有启发性的建议。(实习+课程设计+构造课+竞赛,回顾整个过程还是有蛮多巧合的~)
古代工匠们将木构件编织、组装成拱状桥身,其主要受力结构可分为三节苗系统和五节苗系统,附加廊的平板苗置于二者之上,强化桥身稳定性。

木拱桥结构拆解
八组梁木被密排在一起,并通过一种叫做牛头的横向杆件进行“编织”。单独的三节苗和五节苗是脆弱的,但荷载通过横向构件在多组木杆之间的相互传递,数组杆件相互穿插推压而形成了一个较为稳定的整体。

现存木拱桥的细部 底图源自网络
类似桥身的编织方式,工艺馆的屋顶也由多组木杆组成,通过横向构件形成互压的状态,荷载通过横向构件交叠传递的规律与桥身类似,最终经由斜撑落在桥身上的横向构件(俗称“牛头”)处,再通过桥身被传入石墩,这个相互紧密嵌套的系统会形成较为稳固而富有特色的空间。

工艺馆结构拆解示意图

工艺馆西南立面图

拆解说明
除了上部的构造,另一个较为特殊的考虑点是桥拱下方设置的悬吊层:在传统的木拱桥中,桥上一般会增设一个抬梁式的廊屋,这个构筑物除了可以遮风避雨,还能通过施加压力维持桥身稳定。而工艺馆则进行了一次“倒置”,通过一个由钢构件悬吊的空间来对桥身进行加固,它不仅能起到类似廊屋的加固作用,还可以进一步降低整个桥体的重心。

传统木拱桥中的廊屋 照片底图源自网络

图中工艺馆下半层即为悬吊层

工艺馆1-1剖面图
同时,这个“桥下”空间可以提供一种异于日常的体验,让人们得以近距离接触桥身的编织结构,它也成为了工艺馆中十分重要的展示空间。

“桥下”空间剖切展示
C .建筑空间及活动概览
木拱桥工艺馆主体面朝水景打开,与城区遥想对望,并联系了景区的滨水道路和水面活动空间。在主体建筑周围,方案设置了数组方格状的橡胶渔排,在其上以本土渔猎产业为主题,置入了临时船埠、户外展陈、水产市场、采风点、海鲜餐饮等功能,让游客能够全方位地体验当地的特色文化。

总平面图
相比于一次性建成的工艺馆主体,渔排的部分更加灵活。这种以网箱为基础在水面进行搭建的做法不污染环境,便于装配和回收,蕴含了当地渔猎文化特色,并能增强建筑对滨水空间较为多变的环境的适应性。

建筑空间及功能剖切示意
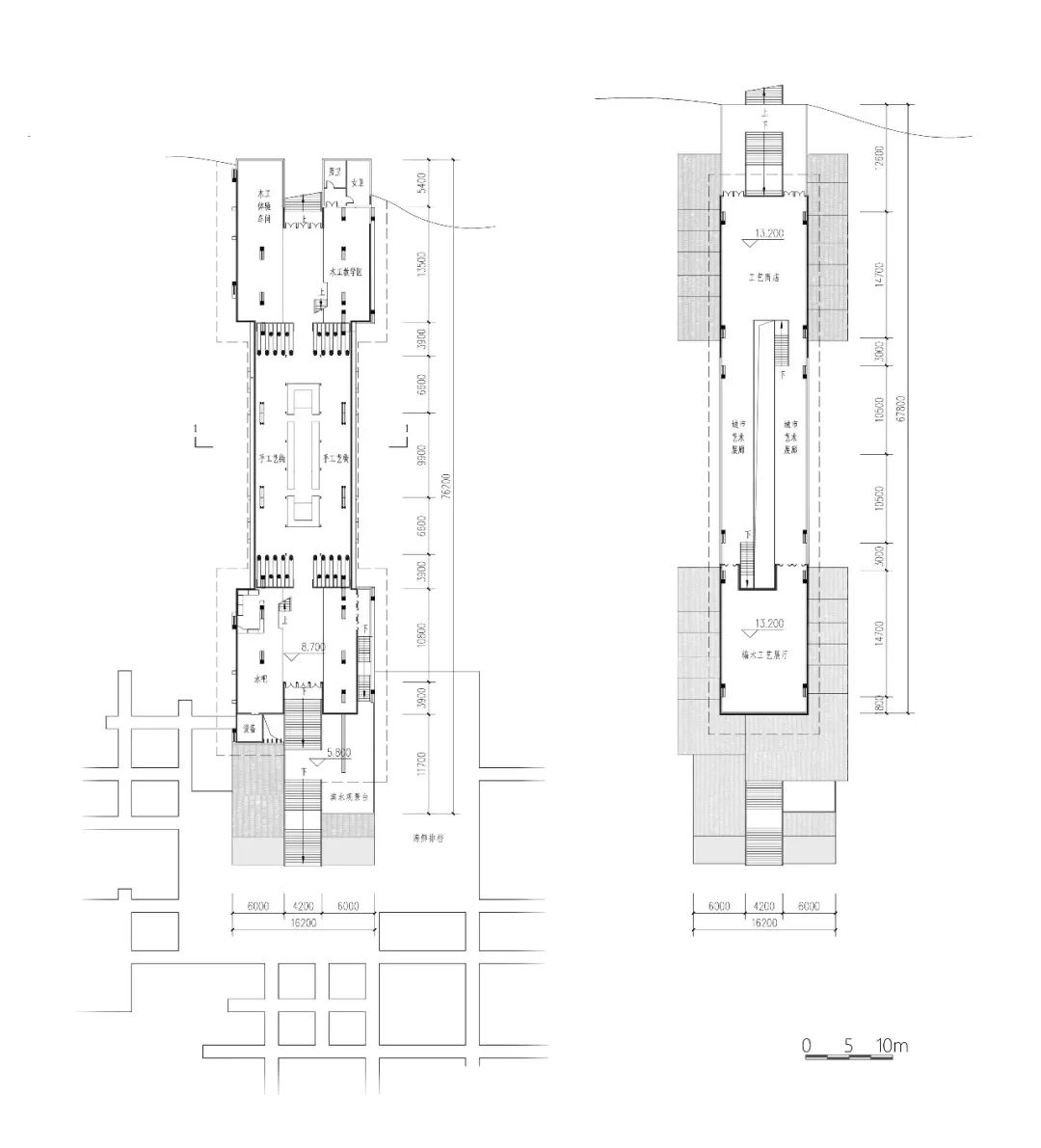
工艺馆内部主要分上下两层:上层含城市艺术展廊、编木工艺展厅和工艺商店等,通过东侧的楼梯可以上行至滨水道路;下层由桥墩上架设的空间和悬吊层的空间共同组成,含手工艺街、木工体验车间、木工教学区、水吧、观景台和卫生间等,通过西侧的楼梯可以下行至水面渔排区。

左为8.7m标高平面图,右为13.2m标高平面图
总的来说,方案尝试以木拱桥工艺为主题,结合本土渔猎产业,集工艺展陈、文化集市、娱乐观景、特色餐饮为一体,尽力为人们提供一次难忘的文化之旅。

各类活动空间
D .反思与总结
文献学习、草模推敲、图纸表达、展示模型制作……每一个阶段都辛苦而充满乐趣。回顾整个设计过程,也存在许多待提升的地方,例如在结构转译这一个步骤,按照最初的想法,应该在设计时借助专业软件同步进行定量的受力分析,最后由于设计时间不足而没能达成,只得购置了一批材料,转而用小草模的方式不断进行搭建试错,算是一个不足和遗憾了。

方案答辩
虽然这是一个单人课题,但我在设计过程中得到了许多帮助,很感谢崔彤老师和张兴国老师在设计过程中提供的启发和指点,以及覃琳老师提供的结构问题解惑。竞赛阶段,徐卫国、张昕楠老师提出了屋顶和桥身结构优化的策略,而唐芃老师则指出了这个方案在城市关系方面的待提升之处,周颿、于辉、庄子玉老师也都给予了鼓励或建设性的意见,我从老师们那里学习到了许多。

方案答辩
两个月的时间里,我接触到了一个十分有趣的话题,并沿着它做了一些简单的探索,整个过程是十分难忘的。这个设计让我感受到了中国工匠的智慧和这些传统工艺的魅力,拓展了我的眼界,而它最后能获得奖项则是意外的收获,其中尚存的不足处还请前辈和同学们不吝赐教!
E .Q&A环节
小编:请问康学长是如何关注到这个公众号的呢?在小印帆平台上分享作品的初衷又是什么呢?
康善之:我是通过小伙伴的介绍关注到这个公众号的~我觉得同学们能一起来搭建一个交流想法的平台是件很有意义的事情,而在这里分享拙作也是想借此机会和大家相互交流学习。
小编:康学长在两个月内单人完成了工作量如此巨大的课程设计,可以分享一下学习心得以及缓解压力的方法吗?
康善之:我觉得平衡好生活和学习很重要,随着高年级的各种DDL越来越多,我才意识到熬夜爆肝并不能解决所有问题,且透支身体的方式不可持续,于是开始摸索各种路子提高效率、稳住发量,并为各种爱好挤出时间。下面是一些不成熟的学习心得:
1.利用app写下计划(我的习惯是精确到天,但事情多的时候会制订得更详细),可以减少各种杂事对大脑内存的占用;
2.为每个设计阶段规划明确的节点和目标,省去一些必要性不大的改动操作和表达内容,可以避免进度出问题;
3.和老师们保持高频高效的沟通,可以让设计进展更加顺利;
4.在每个设计课中主动接触、学习一些新的事物,可以保持新鲜感。
关于如何缓解压力,可能每个人都会有自己的方法。我在大四上学期常去重庆一些好玩的地方闲逛(当时也在尝试学习摄影)。而在遇到瓶颈的时候,我会去浴室冲凉、操场跑步、图书馆翻书,或者去外面搞点儿好吃的~同时,我很幸运地拥有一个氛围十分欢乐的寝室,这也让出图过程轻松愉悦了许多。
F .参考文献
[1]Yan Yang,Shozo Nakamura,Baochun Chen,Takafumi Nishikawa. Mechanical behavior of Chinese woven timber arch bridges[J]. Engineering Structures,2019,195.
[2]闵天怡.从汴水虹桥到浙闽廊桥——图解编木拱桥的构建方式[J].建筑与文化,2017(12):113-115.
[3]张鹰.闽浙木拱廊桥的建构技术解析[J].福州大学学报(自然科学版),2011,39(06):917-922.
[4]李小午,宋国晓,王建省,肖东.屏南地区木拱廊桥局部构件的二级系统研究[J].北方工业大学学报,2011,23(01):89-94.
[5]蒋烨. 中国廊桥建筑与文化研究[D].中南大学,2010.
[6]姚洪峰,龚迪发.福建贯木拱桥的建造技术[J].古建园林技术,2007(04):11-14+66-67.
[7]唐留雄,胡记芳.浙南古廊桥“世界遗产”价值分析与保护开发[J].浙江学刊,2005(05):218-221.
[8]毕胜,赵辰.浙闽木拱廊桥的人居文化特殊意义[J].东南文化,2003(07):52-56.
[9]方拥.虹桥考[J].建筑学报,1995(11):55-60.
最后,我们再来欣赏一遍完整的模型和图纸吧!





