
(图源网络)
疫情过后我表姐憋出一股劲想要一掷百万金买套房,一直让我帮忙参考。
表姐有2-3百万的预算,希望在配套成熟的核心区买个大点的跃层,一大家子可以住在一起,父母可以帮自己照顾一下孩子,家庭氛围也更浓郁。跃层的户型功能分区好,动静分离,可以更好的满足各自生活的私密性。
由于表姐一家人一直都在九龙坡中心地带生活、工作,如果买远了既不方便也不习惯。
“这恐怕只有继续住在九龙坡了”她说。
“九龙坡刚需小户型居多,别说在九龙坡找跃层产品了,就是整个重庆市面上户型好、面积大的跃层现在都比较少,位置在繁华区域的就更稀缺了”我给表姐泼了一桶冷水。
表姐居然不泄气,还提出个要求说:“最好是现房或者有实景区可参考。现在群诉事件太多了,想想某些期房的交付质量,没得实景心里没得底。”
好吧,这要求刁钻程度还是超出了我的想象,果然有钱人的要求就是这么“平平无奇”。
01 一场抖音直播拯救了我
昨天我在表姐家继续绞尽脑汁搜寻合适的楼盘,突然爱刷抖音的表姐打了一下我肩膀:
诶!你看这个房子合适不?
我凑近一看,一位知名的房产大咖在做杨家坪商圈旁某热销新盘实景区的抖音直播,刚开始还只有100多人围观。结果才过10分钟,围观人数蹭地一下涨到了近700人!
好多人看了实景呈现水准不停问项目名字叫什么。然后有人帮忙评论回答:中建龙玺台。

直播里大咖和售哥说,项目正最后加推10套“空中跃墅”。杨家坪商圈旁居然有空中跃墅?而且价格、面积居然正符合表姐的要求?
我跟表姐立马挺直了腰杆,看完大咖和售哥介绍完实景区的入口、中庭、样板间、车库后,我跟表姐像是被李佳琦安利了最抢手的口红,不亲自去试试色号就心痒。
所以,直播还没完我就拉着表姐飞奔到现场一窥究竟。
02 成熟地段居然还有稀缺的“空中跃墅”
这个中建龙玺台项目位于九龙坡区核心地带——北侧是正加速扩容的杨家坪商圈、东侧是正更新面貌的九龙半岛,地段还是很有优势的。

九龙坡作为GDP长期稳居主城第二的大区,发展潜力依然十足。不管是花300亿*迁拆**改造16个棚户区,积极打造“广大新天地”项目加速杨家坪商圈扩容,还是投资15个亿修黄桷坪长江大桥,都足以支持九龙坡区快速迎来第二轮经济腾飞。
而处在九龙坡核心地段的中建龙玺台项目也会更好地享受到区域发展红利,升值潜力更大。
我跟表姐看了下地图,项目距离轨道2号线动物园站步行约10分钟,是个临轨盘。离九龙坡区政府不远,附近有九龙坡实验一小、九龙坡第一人民医院。
我们从杨家坪步行街开车约10分钟达到售楼部,下车就看到旁边有个体量不小的成熟商业街——中交西西荟。
看来项目自身的交通、商业、教育、生态资源配套也十分成熟。

(图源网络)

(实景图)
在主城中心成熟地段的跃层项目很少,而“空中跃墅”更是稀缺,现在被我们找到一个,是不是证明九龙坡也开始进入改善时代了?表姐说我应该收回之前说九龙坡刚需小户型居多的话。
03 表姐要的实景,妥了
龙玺台有三个组团,这次实景区只开放了龙门庭组团,这个组团有2栋洋房和1栋大平层,洋房已卖完,大平层端户的平层户型基本也被抢完了,目前正加推跃层户型。
据说开发商提前8个月打造出了实景园区,前段时间实景区刚开放半天就卖了一栋楼,可惜这个盛况我们当时不知道。
半天卖一栋楼,这优秀的业绩到底是因为大家看中这是中建这家修轨交、修隧道毫无压力的大咖在渝的首个标杆豪宅项目?还是因为实景区呈现的真材实料的品质让他们在期房群诉盛行的今天感到安心呢?
我也不知道。我只知道逛完整个实景区,对这空中跃墅的居住品质更有把握了。

(实景图)
小区入口尊贵精致的设计赢得了我跟表姐两个颜控的一直好评。“戏莲镜池”的水景,石阶上的水流声,石材打造的入户墙面,鱼跃龙门的寓意,我们都很喜欢。

(实景图)
组团整个外立面很整洁,且有现代感。


(实景图)
300多平米的架空层会所目前展示了品茗茶室和儿童专属活动区,虽然在室外,但35°的天气架空层里居然还特凉快,怕不是偷偷安了空调吧?


(实景图)
另外要重点表扬一下车库设计——这是我们见过的“性格”最“阳光”的车库。
项目设计的地上车库在一众地下车库中简直鹤立鸡群,采光简直不要太好,还完全不用担心通风的问题;直播时说地面用的环氧地坪漆,既能很好的降低噪音,还能减少灰尘。难怪我们感觉地面锃亮锃亮的,像是刚被擦过的高档新皮鞋。

(实景图)
穿过精装双入户大堂,进电梯上28楼就是空中跃墅的样板间。

(实景图)
在电梯间里感觉运行得非常平稳,完全没有晃动感,售哥骄傲地说:电梯采用的品牌是全球三大知名电梯品牌,所以整个电梯安全性能和平稳度都很好。

(实景图)
怎么一个电梯都这么考究?
龙玺台实景区各方面打造得这么良心真的好吗?让那些因为园林、车库、电梯各种问题被群诉过的百万级新房情何以堪?
04 这个空中跃墅性价比惊人
不过项目的空中跃墅是否良心,还是得看完户型才能做总体评价。
因为这个标杆豪宅项目的跃层是以“空中跃墅”为打造亮点,所以必须做得比普通的跃层更加完美,更富有别墅一样的居住体验。
但看完一圈,我跟表姐觉得对中建龙玺台来说,达到完美仿佛没有什么难度,它仿佛在对全世界说:
市面上那些套内面积不到80㎡的小跃层产品不是把自己称为跃墅吗?我就做出个套内面积近130㎡的出来,让它们知道什么叫小巫见大巫。
大家不都说空中跃墅产品少吗?那我2梯3户有30层高的楼,除了端户都是空中跃墅,这样的产品别说在九龙坡,在整个重庆楼市都几乎没什么竞品了吧?
大家不都说市面上跃层平均约5.6米高做2层出来有点压抑吗?那我就搞个客厅挑高约6米、空间感十足的出来。

(实景图)
总之,你要的多送一层的惊喜,你要的动静分区,你要的三代同堂还互不干扰,你要的楼上私密生活、楼下宴请宾客,我全都能给你。
不仅如此,我们的空中跃墅还得精益求精,用超高的使用率惊艳你。
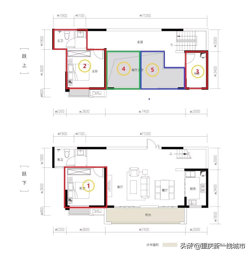
比如,原本是套内面积约128.56㎡、三室二厅二卫的户型,最后居然可以打造成多功能五室,只需要找个装修公司在客厅上面搭块板,就可以多出来很多使用面积。

(跃层户型图)
比如,设计出市面上非常少见的7.4米长的大横厅阳台,而且采光面朝南,你要是不觉得宽敞,不觉得通风采光好,都算我输。

(平层户型阳台 实景图)
我跟表姐站在样板间,“听完”项目这些“呐喊的声音”,差点跪下来唱征服。
不过理智尚存的我还是帮表姐捋了捋价格。
九龙坡面积在100-150㎡之间的在售新房本就不多,核心地段的新房基本在套内单价1.9w-2.4w的样子。
所以从单价来看这个项目套内单价1.8w并不贵,比起套内单价预计至少彪上套内2.5w的滩子口地王项目,这个项目单价更是不值一提。
同时因为该项目跃层产品的特点,节约了公共过道立体空间的面积,跃层比平层产品实得单价算下来大约少2千块,而且还可以改造出5房,还是很划算了。
总的来说,龙玺台的这款跃墅产品不论是稀缺性、私密性、空间感、还是可改性,都足以傲视同类型楼盘了。
不仅跃层户型不错,平层户型也挺好,样板间里没有那么多花里胡哨的软装,感觉很实在,采光同样非常好,展示出的梵高画室和整体艺术风格都很令人喜欢。
05 给表姐复盘
一天下来,我给表姐复盘了一下这个项目的情况:
地段好,在九龙半岛腹地和杨家坪商圈交汇处;
品质硬,由中建大开发商打造,实景区的选材及设计细节已经能说明一切;
户型难得,本来市面上跃层产品就不多,在大平层的空间结构中享受别墅一样的居住体验,这种产品放眼整个重庆楼市都是稀缺的。
当我问她感觉如何,倾国倾城的表姐对我神秘一笑:
走,晚上请你吃九龙坡最好吃的火锅!