哈喽,「模范设计师」栏目又闪亮登场啦!「模范设计师」是一兜糖家居App中最硬核的家装内容设计者,每周带大家看看他们的作品!一起体会他们的硬核脑洞、居家智慧,感受家的设计如何改变家人的相处方式!
全屋最大光源是阳台,暗房如何将“光”引入室内呢?两个自由职业者的家,如何设计SOHO区?小户型如何最大限度满足收纳?
今天给大家介绍的设计师,是来自武汉的@武汉小小空间事务所,设计师利用“开窗”,借景入室,将客厅、工作区、餐厅三合一,使得原来幽暗独立的空间,变得敞亮又灵动;还有“伪装的”的开放式厨房和超隐蔽的玄关收纳......
一扇窗,居然使一个家活了起来,设计师到底施了什么魔法呢?快随糖主往下看。


第一次见到屋主——“兔绵CP”(兔=男主人,绵=女主人)时发生的一切,至今令人记忆犹新。
男主人抱着电脑出现在我们面前时,打开了十几个密密麻麻写满了各种诸如“100个工长不会告诉你的装修秘籍”、“这样装修不后悔”之类的宝藏文档,这是我们的初次见面,猝不及防被准业主以几乎国标考试一般地“咨询”了两个小时。
殊不知当时的我们尽管要努力保持微笑,却在心里打了一百遍退堂鼓了。然而没想到,当兔合上电脑的那一瞬间,不经意间却流露出了恭喜我们通关的胜利表情。
屋主说,想要一个MUJI风的家,在不多的预算下。风格之外,我们试图在兔绵家探索更本质的一些室内建筑学。

房屋信息
户型:两居室
使用面积:77m²
装修花费:25.0万元
房屋位置:湖北武汉

原始户型里,房间与房间相互独立,餐厅与玄关幽暗,有一种典型的陈旧气息。

▲房屋改造前

▲房屋改造前

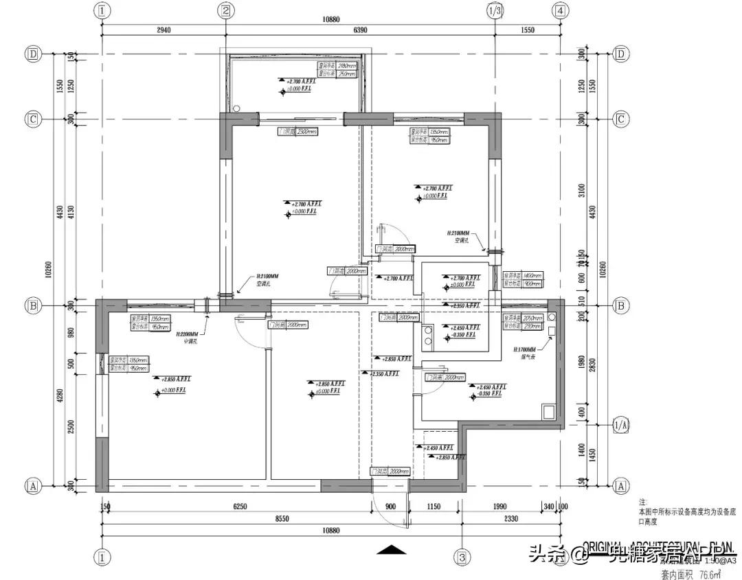
▲改造后平面图
我们期待通过设计去满足两人居住的日常是:两个人在家SOHO、撸猫、看电影。两人工作繁忙,超宽超长的实木写字台能容纳两人同时办公,让工作也变成陪伴。台面跨过墙面,从客厅延伸到卧室内部,强化了空间的连续性,模糊了不同房间的界限,空间因此而更加流动通透。

▲模型示意动图


这次改造的*局破**是从”开窗“开始的。
房屋最大的光源阳台在卧室里,为了兼顾客厅的采光通风及卧室的私密,我们决定:制造一扇随时可开关的玻璃翻窗。
借景入室,无论是回家进门的第一步,还是坐在餐厅里吃饭,亦或是倚靠在工作台上SOHO,都可以同时享受阳台之外的城市如倾。视野上的开阔带来此时此地的满足,也连结着彼时彼岸的浪漫。

而这扇看似普通的木翻窗,想要实现上翻、折叠、可固定的功能,却并不容易。头疼数日,我们交出了下面这张图纸:


把餐厅、SOHO区放在中心位置,同时把围绕在家工作和吃饭的生活动线作为整体生活动线的核心来考虑。客厅(影音区)、餐厅、SOHO区这三个空间是相互串联的整体,在餐厅和SOHO区几乎可以看到家里的每一个角落,家人们因此自然而然地聚集在了一起。
都市生活里,每个人的节奏都不一样,我们希望通过设计去成全的日常生活是:即使同时使用一个空间,也可以各自安稳地做着自己的事情。


拍摄的当天,兔绵在家放了一整个下午的cheer演唱会,绵有时在卧室内拾掇自己的事,时不时透过翻窗和稳坐在客厅一侧的兔三言两语的交流,气氛放松又欢快。空间的魅力只有在人们开始使用之后才得以真正呈现,家也开始像一个彻底属于自己的地方了。




餐厅位于玄关一侧,利用玄关的面宽做了可以向两个方向分别打开的柜子,面向餐厅的方向是餐边柜,可以存放茶具和小家电。从玄关的方向看,则是入户的鞋柜。

冰箱藏在了厨房出来之后和玄关相接的地方,可以同时兼顾到厨房和餐厅的需求。



虽说百叶遮光的效果不如布艺窗帘,但是天气好的时候,光影随着时间推移而产生角度的变化,像变魔术一般地撒下时间的密语。是迷人的、永恒的、怎么也看不腻的景象。尤其是木质百叶呈现的时光感,是无论过多久也会常看常新的风格。


简洁的客厅,以电视柜和影音系统作为绝对的中心。吊顶嵌入了简洁的灯具和吸顶音箱,线性灯带烘托顶部线条的同时,也让空间在垂直方向上显得略高一些,是视觉上有让顶部漂浮在空中的感觉。



沙发靠背背后预留了一段距离正好利用实木做成隔板的形式,可以放置两个后置音箱,同时还能收纳一些随手小物。


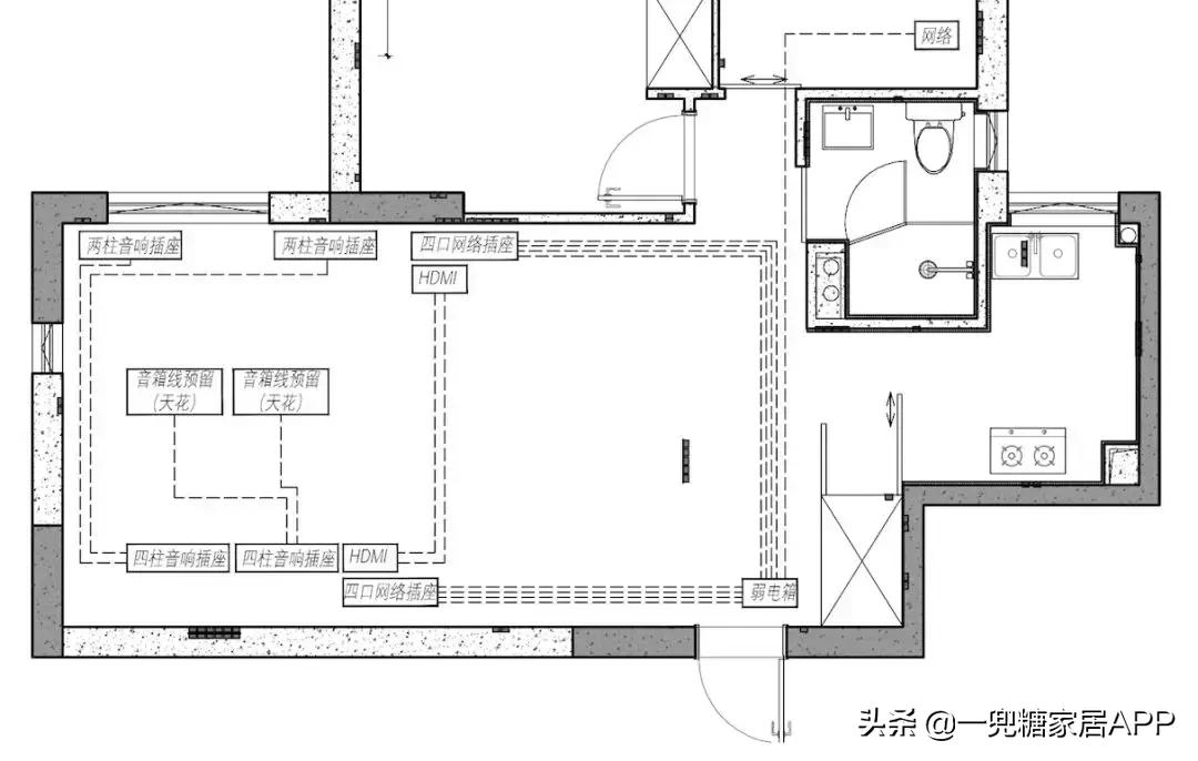
这是我见过的最无敌的电视柜插座:包含四组音响线接线柱,两根入户光线,四个超六网线接口,两根预埋HDMI,配置堪称奢华。同时为了最大限度地避免电流干扰,所有影音设备的电源都接在走单独回路地三个五孔插座。


弱电布置的拓扑结构也是特别复杂,需要满足两个路由器分别连接电器设备,以及5.1.2音响。方案讨论结束后,女主人和小小的女设计师纷纷表示没有听懂讨论的是什么,并露出和奥利酱一样冷漠的表情。而入住一月有余的男主人则对他的超豪华家庭影音系统赞不绝口,大呼梦想成真。

▲兔绵家的奥利酱


主卧内部和客厅相连的墙壁一侧,写字台和客厅相连延伸,可以零星放几本适合卧室阅读的书,也可以摆放装饰品或者挂画。床头选择了简约的可以调整角度适合阅读的木质壁灯,床尾是整墙的大衣柜。


不算大的主卧,因为木翻窗的存在,而显得层次分明又有纵深,床头和木翻窗之间的走道充裕,为未来增加婴儿床留下了足够的空间。




次卧紧凑,以榻榻米加连体大衣柜的方式将空间利用最大化。保证最佳取景效果的同时,考虑到人站立到榻榻米上临窗安全的问题,将可以开启的窗扇设计在了较高的地方。



厨房门打开之后正好可以藏在冰箱一侧,顺利伪装成一个开放式厨房的模样。


厨房原本的采光极弱,我们利用满贴小白砖来增加墙光线反射。同时配合顶灯和橱柜下方的灯具让厨房更加明亮。

值得一提的是从日本海淘回来的带小烤箱的炉灶,是大家最爱的日剧厨房即视感。




卫生间的日式功能主义体现在配色极尽所能的克制,所有的五金挂件也是非黑即白。就连纸巾筒的大小和定位也是刚刚好卡住瓷砖一格,简直是强迫症患者的福音。

因为原始结构限制,淋浴房无法做成常规的矩形,顺应平面形态本身做成了折线,让淋浴房开门空间更充分,使用起来也更为方便。

浴室柜面向马桶一侧做了开放格的设计,储存一些女生的特殊用品,再也不用担心临时状况时的尴尬。





最后需要揭秘的是玄关柜的一处小心机,把原户型中的凹龛做成了封闭的家政柜,藏有洗衣机、烘干机以及清洁用品。正是这样的考虑,使得全屋唯一的南向阳台得以释放,成为主卧的延伸,为全家提供最好的美景视野。


▲剖 立 面 图 (起居室、SOHO区、厨房)

▲剖 立 面 图(厨房、玄关、餐厅、起居室)

▲剖 立 面 图(起居空间、主卧、阳台)

▲剖 立 面 图(主卧、次卧入口、卫生间)

▲剖 立 面 图(起居空间、玄关、厨房)
『 Q & A 』
Q:本案最大的亮点,大概就在于“玻璃翻窗”的设计了吧,有效地将阳台光源引入室内,又使空间多了几分灵动。对于「室内窗」在空间内的应用,您有些什么建议可以分享呢?
室内窗应用的重点其实不在于装饰本身,而在于把房子想象成一个更抽象的建筑体量,那么不同的空间之间需要相互连结和交流,从这个角度去思考的话,自然可以在适当的找出需要室内窗的位置。可以说对于开窗位置的选取是关键,找对了位置,便如同画龙点睛。如果开窗位置不当,那么很有可能画蛇添足。
Q:本案对于光的运用,也别具用心,可以分享一下具体做了哪些设计吗?
除了在室内开窗之外,所有面向南向的室外窗,我们都尽量运用了百叶元素,在光线充足的情况下,百叶可以帮助显现富有魅力的光线效果。
Q:在整个案例中,您最满意的设计是哪里?为什么?
仍然是翻窗的设计。这个设计非常成功,完全给这个家注入了灵魂,而且业主也在实际使用中赋予了更多可能性。比如一起从卧室的这一侧观赏在客厅*放播**的电视节目。
觉得还挺神奇的。
Q:您觉得,日式风格设计的“神”是什么?或者说,要通过哪些设计,营造出日式的感觉?
说真的,我们并没有在营造风格本身。这不是我们在设计里真正关心的问题,如果一定要回答这个问题的话,我们觉得如何不留痕迹地让使用这个空间的人在这个空间里感受到舒适可能是我们理解的日式风格的核心精神吧。
最后,一兜糖家居交流微信群持续开放中,感兴趣的小伙伴备注*今条头日**,添加“yidoutang222”即可~
关注一兜糖家居公号“yidoutang123”,第一时间get到新出炉的家居干货哦~
本文由一兜糖家居APP头条号整理发布,未经授权禁止以任何形式转载。