户型越小收纳越难,但屋主@Ruby.S 就是不服输,把自己家做成一个小户型省心收纳典范:定制柜不够,壁龛来凑,门后夹缝也能装物品;一个柜子A面做鞋柜,B面当橱柜,2合1想法太妙了~
以下文章内容来自一兜糖家居APP屋主:Ruby.S
小屋档案
建筑面积:74平米(两房)
小屋大任务:成为收纳能力强,活动空间大,清洁要求低的适合小家庭的舒心之家。
风格:其实没有特定风格,有说是muji风,有说是Ikea风;其实吹的是自然风,适合主人,简单自在,就好了。-----嗯,这是为不伦不类做的狡辩。
小小肯定:很荣幸地被登在了《第一家居》7月刊哦----错过杂志不要紧,因为LZ觉得其实小屋很朴素啦,不过有杂志社拍的照片,以下就放送一张杂志照哦。

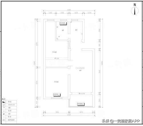
先来张原始房型图。

再来张设计师最终给出的房型设计图。

然后咱们依序参观一下?----懒人声明:一些照片是入住前拍的,所以看上去东西少地不像话;现在杂物渐渐多了,女主人经常微调一些东西的摆放,一个月一个样。如果感兴趣的话,下次不怎么懒的时候也拍点现在的照片和大家一起分享一下。
进门,对着的是次卧的大门。纠结的女主人觉得风水上门对门不怎么好,思前想后,最终想起云南旅游时候的收获----日式短帘。

进门右侧是鞋柜,鞋柜上方的门是假门哦----为什么是假的?请在厨房照片部分找答案,不要再试图打开啦。

客厅一瞥。----看到有同学惊叹说:哇,没有电视,没有茶几!
其实,电视现在是有的-----不然不用放个电视柜,其实电视没有也没关系,那那边可以放个书柜、斗柜啥的,也挺新式,真的成了个living room。
其实,茶几也是有的,只不过在这张照片里它变成了边几靠着沙发待着。不想让茶几成为将来孩子学步时的累赘,也不喜欢端端正正放一张重重的茶几的感觉,所以买了icology的百变桌当茶几,非常好用,竖起来可以在沙发上吃饭用电脑,放下来可以招待朋友一起喝茶。以后再单独介绍吧,哈哈。

再探出一点看看客厅吧。

月季花的地方这个月添了个宜家小柜子,上面拼了个宜家小镜子。田园风格的布头暂时用用,因为是不上漆的实木柜子。小柜子199,镜子貌似19.9,还要加上灵魂之物----绿色植物,这个组合可以当选最省钱玄关设计了不?

餐桌小露了一角,其实她是主人的最爱。定制来的橡木餐桌,冬天披着桌布,夏天就开始裸着待着啦。不论什么风格,家必须实用,所以冬天的时候伊姆斯椅和和式椅套组合了一下,不然实在太凉了哈,云南带回来的陶土花瓶也很和谐。不论贵贱,重在和谐。

餐桌其实是长这样的。我是找微博上的“木纳家具”定制的,他在北京,我在上海,没看过任何材料样品,全凭照片的信任,所以下单是个风险活,您自己掂量哦。实物么,真的很满意!

客餐厅全貌来一个。

客厅的挂钟很喜欢,木质清新,静音,几乎符合我的一切需求,价格之白菜更是意外惊喜。有muji的风骨,却只有muji价格之零头,真是lust&must系列之must啊。

三个小壁龛,其实不是刻意为之,原本那里是次卧的门洞,于是用砖竖砌,留出了三个壁龛,装上必不可少的射灯,效果就出来了。另外,必须要说的是,底面这木板。一开始装修工人没给我装这木底板,某天看完工地回家准备睡了,忽然跳起想起个大问题----底面是墙漆的话,以后落了灰脏了可怎么擦?...... 于是,赶紧就电话给设计师给装修工人,描述了一下要求,赶在刷墙之前把这木底板给加了出来。
那什么,装修别光顾着好看,也要好收拾,这是句大实话。更何况,这里加了木底板以后我觉得更好看了,质朴清爽。

我先把照片发完,再把网购来的东西加上地址吧?----一边装修一边淘啊淘翻屏翻到瞎的经历,只有同道中人才有啊。
客厅完毕,再来张厨房吧。大灰砖觊觎很久,这次终于实现了,配上米色的门板、白色的台面,朴素的吊顶,配色我很满意。增色的事,在杂物众多的厨房里永远不是问题。
入住总结:
1.灰砖挺好打理,耐脏,坚固,当然地砖当墙砖,装那些挂件是莫大的痛苦。
2.白色台面慎选,好看是好看,但是真的挺容易脏的,虽然我有办法擦干净它。
3.大单槽比双槽实用,锅子什么的轻松放入。
4.这款西门子的侧吸机不适合油烟大的厨房,吸力最好还是中式。
5. 水槽这里装个灯吧,这款是宜家的,晚上开着灯洗个碗非常温馨。
如果你还在装修,希望你看到这些觉得有用。

换个角度看看,这是入住以前的照片。我说的没错吧,水槽上方安盏小灯真的很嗲吧。

前面说鞋柜上方的门是假门板,玄机在此:因为厨房小,所以我把鞋柜上方的空间留给了厨房,这样平时移门收起来,也成了这个柜子的门。目前这个柜子是放我的酷彩锅、砂锅、奶锅、杯子的,很好用。


移步厨房隔壁的卫生间?麻雀虽小,五脏俱全的卫生间。

原本房型里坑爹地把马桶放在了门口,洗手池放在了里面,现在等于对调了一下,所以抬高+墙排双保险防止马桶移位有后患。好不容易,找到了大小正合适的可以壁挂的一体台盆。

卫生间的门后也有乾坤哦。宜家的浴室架尺寸正好,放杂物,放洗澡时的衣物,太合适了。下面还放了脏衣篓,边上现在甚至还收纳了长柄雨伞。平时门一靠在门吸上,背后的杂物全不碍眼,真是太爱自己争取出来的这点小面积了。

冬天泡澡有益血液循环,可是淋浴也必不可少,所以硬挤出了空间满足了两者。泡澡处也排了水路,买到了一款最像浴缸龙头的面盆龙头,放水方便。朴易的香柏木木桶,一分价钱一分货。

浴室里区分干湿区用的不是平常常用的门槛石,而是湿区直接挖低了,买了木垫,正好填平这个高差,冬天洗澡踩着木垫也不冷。要清理,拿起木垫便是了。没有木桶和木垫的浴室湿区长这样!

接下来看看主卧吧。杂志的这一张照片是我的大爱。

主卧床另一侧是老公的最爱,懒人沙发。其实大部分时候是我在坐,确实超舒服。开着阅读灯,蜷在大沙发里看书,太享受了。这张是手机照的,颜色失真。

床的对面是一个柜子加一张书桌。柜子上本意是可以放电视机的,不过现在不打算放,柜子上放放书堆堆小物。其实,说到这里,估计大家也瞧明白了,我们都不是很喜欢往墙上钉东西,尤其挂画、挂电视之类,总觉得这样不够灵活。所以直到现在,沙发背后还是空的,卧室床头更不愿意挂什么照片。等有了很好的想法再说吧。适当留白,是给装修尾声的一点忠告,因为人会因为生活着而改变自己的一些小偏好。

来张没入住前的照片充充数吧,方便大家看清楚空间关系。

主卧还有一个大衣柜,我只喜欢简单的假百叶门,尤其不喜欢革或者软包或者玻璃的移门。次卧的衣柜移门和这款是同样的材料,款式略有不同。买了一面可移动的全身镜,比衣柜里内嵌的那种镜子照起来可舒服多了。

一鼓作气,发次卧。次卧从房型图上看就看出来了,不规则。一个衣柜(移门里还藏着一台电视),一张床,一个书柜,一个地台,一张书桌,小空间里要啥有啥。人见人爱的地台。

这样的空间是没办法拍得全貌的,除非俯瞰。看另一边。

阳台来一张吧。一边成了一个工作区,一体洗衣柜,边上是定制的柜子,可以收纳一系列杂物。非常实用。这也是入住前拍的。

暂时先占个坑发这么多吧。一些滥竽充数的照片等回头有了别的照片再替代上去吧。如果大家有特别想关注的细节,我可以再单独拍一下。
朋友从德国出差带回来的礼物--万年历,特别适合我们家淡绿色的墙面,图案还有点小复古。

天气转凉了,又可以开始折腾了,玄关也小做调整。晚上只开餐灯用手机拍的,很渣,见谅哦。

抓住夏天的尾巴,玄关花是下班路上买的荷花和莲蓬,插在云南买的陶罐里,找到了去年夏天在大理的一点记忆。

竖起来就是小边桌。

这周的玄关花是向日葵。30元买了3支,花店老板给配了龟背竹,搭着不错吧?

改天楼主有空来和大家一起分享一下收纳那点事吧。:)统一回答一下:餐桌是“木纳家具”定做的,没有网店,他们家有新浪微博。餐椅就是仿的伊姆斯椅,我前面发帖的地方有链接,这家不错,东西很多,值得推荐。好零乱呀,原来用QQ和用豆瓣登陆会变成两个账号......
再顺路推荐两款靠垫,价格小贵,但是质感很提气质。



最近忙,只有周末还能花点时间宅在家。上周给卫生间买了一株绣球,花鸟市场买的,25块一株,还不错吧,保持了一周,然后撤下来现在被我倒吊着晒干花呢。

最近天气凉了,给主卧添了一床偏暖色的床品,水洗棉的,好亲肤啊。

我喜欢周末在家自己动手做点吃的,所以对厨具还小有要求,嘿嘿。当然,还是那句话,败家不伤身,不要买太多不实用的东西,但是实用的款式最好一步到位。说说我有的锅吧:
1)2只酷彩的22寸汤锅。(可以用来煲汤、炖肉,效果堪比高压锅,又比高压锅安全好用......啊,重点是,漂亮啊,可以直接作为盛具上餐桌啊----我有一口红的,一口孔雀蓝的,嘿嘿。推荐大家可以借助海淘啊打折啊什么时候买,不然价格还是蛮辣手的。对了,还可以看看魅力惠,我的蓝色的是在魅力惠上买的,他们是不定期搞促销的,碰上正好有就可以下手,价格和我海淘的差不多。貌似注册要会员邀请的,
2)2只木头柄搪瓷小奶锅/汤锅。这个便宜好用,搪瓷的锅子感觉比不锈钢有feel啊,所以我用来煮面条、水饺、热糖水、烧一个简单的汤......好多用途,而且木头柄拿着就可以直接端出去,少用隔热手套,还不需要再换个碗,省了多少事啊。来吃饭的朋友回家都去搞了一个,哈哈,懒人必备。我买地很早,同款不好找了,不过有类似的款。我买了一口有花样的,一口素的但是锅盖透明的,嘿嘿,区别一下。


3)一只不沾的平底锅,这是朋友送的乔迁礼物,好像不便宜,意大利的牌子,6、7百的样子。不过,真是好用极了!
4)一只砂锅。有时候我还是固执地喜欢用砂锅煲广式靓汤,觉得比普通锅有feel。哈哈。
5)中式炒锅,超市买的铁锅,100块都不到吧,这样可以补补铁。----不按套路出牌,哼哼。
6)电饭锅。我用的是虎牌,真心的,和国产牌子差距太明显了。当然我没买日本原装的,那个价格辣手地很。但只是国内组装,日本技术,已经让我觉得米饭可以烧的这么恰到好处。我们家用的是这款,淘宝代购的,比专柜便宜不少。

周末去朋友家吃饭,喜欢上他们新买的餐桌啦,他们家的玻璃餐桌铺上这桌布,一下子就圣诞气氛浓浓啦,好温馨啊。把链接要来了,准备自己也入一个。

时间过得好快啊,这段时间特别忙,也没怎么来帖子里回复大家。见谅见谅。送上周末刚布置的新年玄关花:富贵子+腊梅,香喷喷地迎接快要来的新年。

谢谢各位同学对我们家的厚爱哦,转眼也快入住1年了呢。还是那句话:不要太着急把家这块画布填满,宁愿随着过日子的节奏慢慢添置调整,适当留白;你的家,适合你的生活才好,不需要奔着成为样板房而去哦。大部分来看帖子的肯定是在装修进程中的吧,希望对你们有用哦。
最近LZ在强化学习日本的收纳理论,断舍离,收纳技巧什么的,越来越觉得:只买/留动心的才是最好的,哪怕略贵点。

这两周的花是红色康乃馨。

天气渐渐适合花草生活了,卧室里放了一束马蹄莲,已经持续2周了,太棒了。

再补一个~~ 春节的花:小苍兰+郁金香+龙柳。龙柳现在还长着绿芽呢。

春节回来,年前的水仙开地正艳,补贴一张。

以上就是一兜糖家居APP屋主:Ruby.S 的全部内容了
最后,一兜糖家居交流微信群持续开放中,感兴趣的小伙伴备注*今条头日**,添加“yidoutang222”即可~
关注一兜糖家居公号“yidoutan123”,第一时间get到新出炉的家居干货哦~
本文由一兜糖家居APP头条号整理发布,未经授权禁止以任何形式转载。