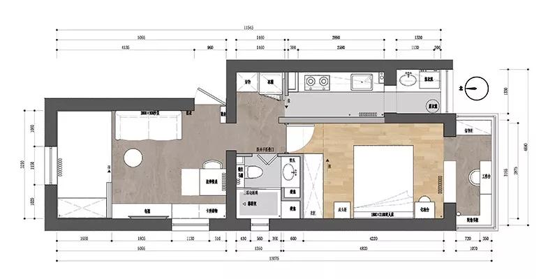
今天齐家小编要分享一套62㎡混搭风小户型单身公寓装修案例,户型有点长条形的感觉,但是采光还算不错。全屋整体设计比较简单,采用红砖墙搭配木质家具,来营造出复古而又温馨的感觉。

入户没有玄关走廊,在进门左侧靠墙处摆放了一个半高的鞋柜,收纳常穿的鞋子。

客厅沙发背景墙做了文化红砖墙设计,有些复古的感觉。浅灰色布艺沙发搭配木质茶几、电视柜,为小家增添温馨感。
客厅的阳台改造成榻榻米地台,采用日式格栅门隔开两个空间,很有禅意。也让家里多了一个备用卧室,方便亲朋好友留宿。

餐厅位于客厅的角落处,卡座和电视柜连通起来,上面铺上软垫,下面收纳东西,简洁又实用。把餐厅放在窗户的边上,光线好,营造一个舒适的就餐区。

狭长的厨房空间,橱柜根据户型做成一字型,白色的吊柜搭配木色的地柜,整个厨房空间给人一种简洁又舒适的感觉。

厨房外还有小生活阳台,打通纳入厨房,让空间显得更为宽敞。洗衣机和缝隙柜结合,充分利用好空间,满足洗衣服的需求。

卧室的墙面也被刷成了灰色,搭配这款灰蓝色的皮质床,显得更有格调。靠墙置顶的推拉门大衣柜,床头灯具还是不对称的设计,简约有格调,还非常温馨。

床头一侧舍弃床头柜,选择摆放一个梳妆台,梳妆台自带收纳设计,也可以作为床头柜使用。

卧室外的阳台一侧满足晾晒的需求,另一侧的底部做了书桌柜,让阳台成为一个书房工作区,采光好还有台灯,平时可以在这办公学习。

卫生间的面积不大,但是用浴帘和挡水条做了简单的干湿分离,洗手台的侧方还做了壁龛的设计,让小巧的卫生间多出不少储物空间。

(本文由齐家小编编辑,侵权删!)
(此处已添加小程序,请到*今条头日**客户端查看)