今天是大年初五,过了今天,年就算过完了。再过一段时间,春暖花开,有宅基地,计划自建房的朋友们就可以破土动工建造自己心仪的好房子了。昨天,小编为大家推出了《6套20万元左右的农村自建房户型,经济实用!》受到了朋友们的广泛欢迎。今天,小编再为大家分享10套非常漂亮的实用型新农村自建房户型,供大家参考,希望大家喜欢。
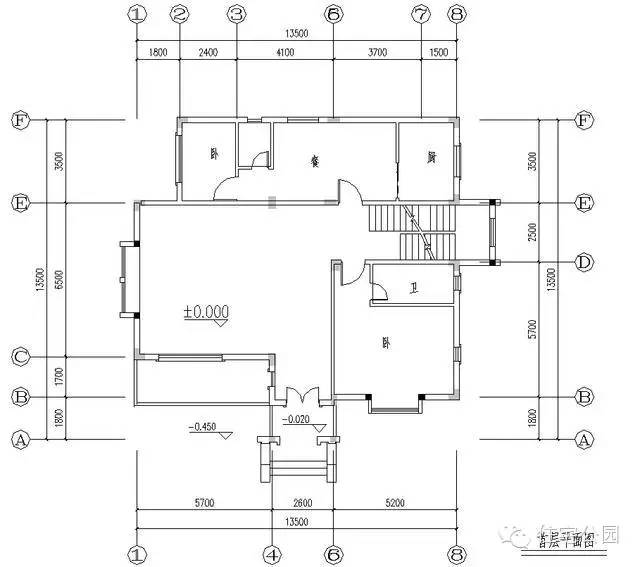
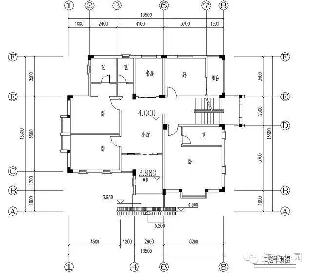
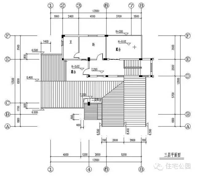
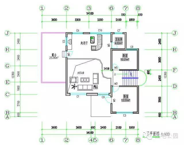
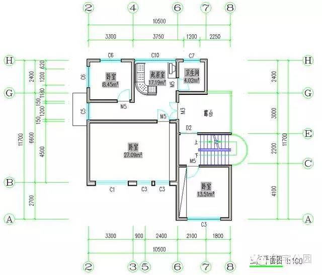
户型一
长宽:13.5米×13.5米
建筑面积:260平方米




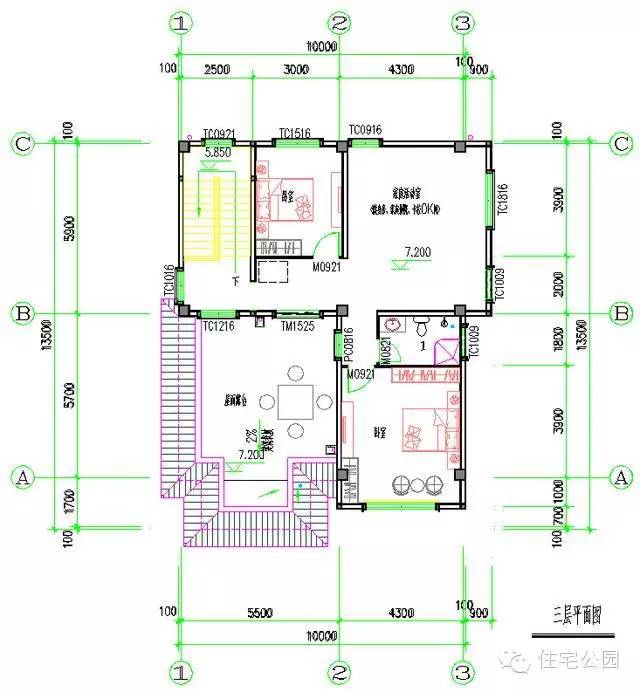
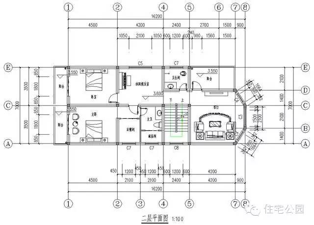
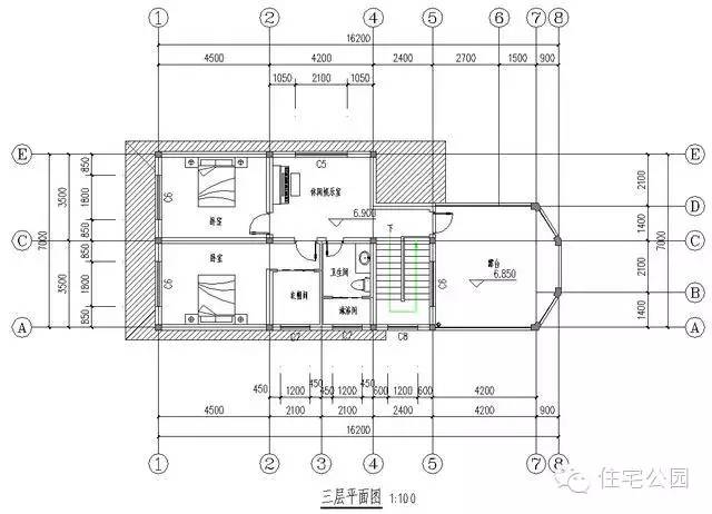
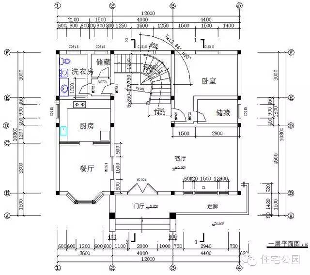
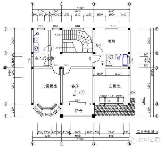
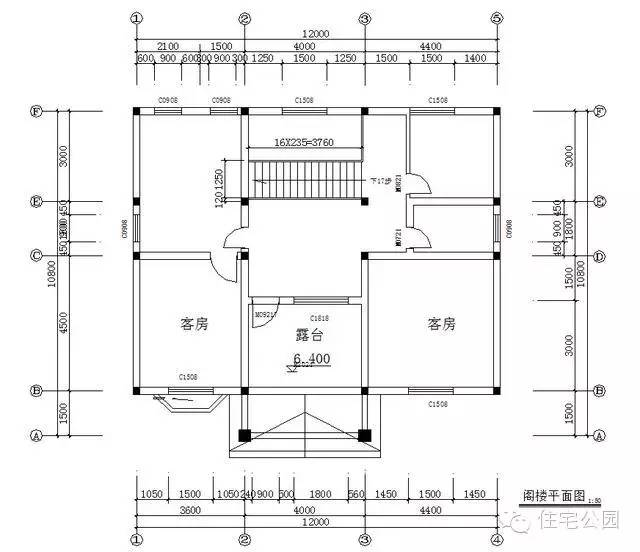
户型二
长宽:10米×13.5米
建筑面积:360平方米




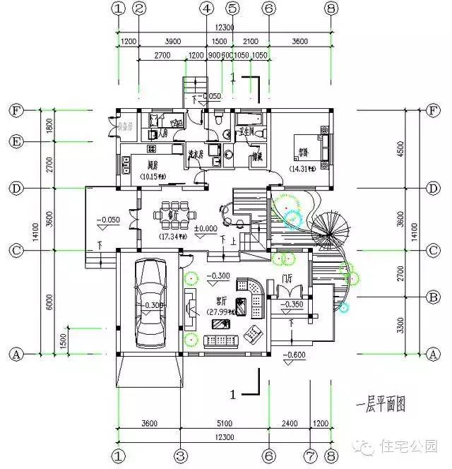
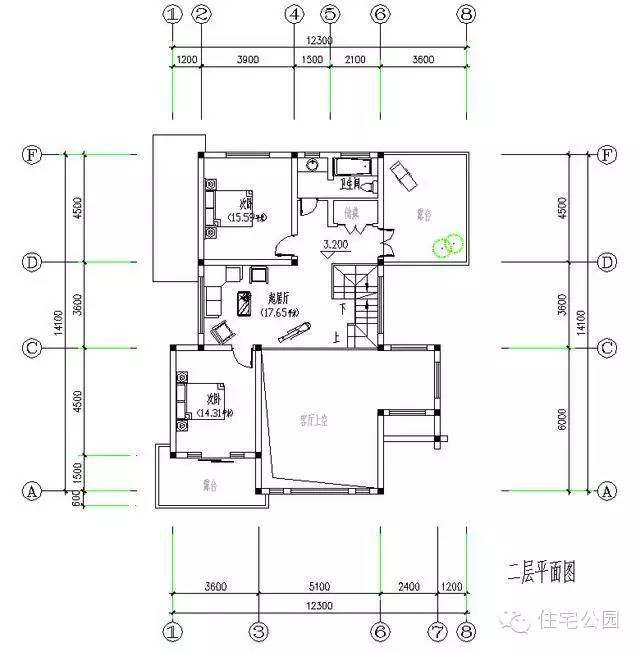
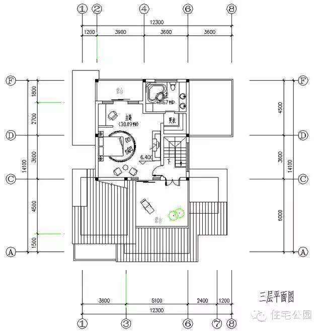
户型三
长宽:14米×11米
建筑面积:311平方米




户型四
长宽:11米×12米
建筑面积:245平方米




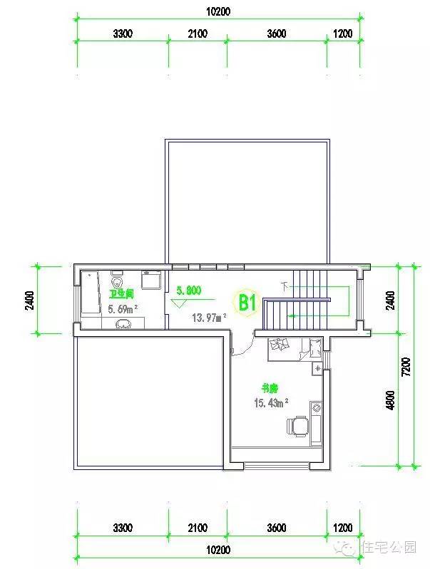
户型五
长宽:16米×7米
建筑面积:262平方米




户型六
长宽:10米×15米
建筑面积:265平方米




户型七
长宽:12米×14米
建筑面积:288平方米




户型八
长宽:12米×11米
建筑面积:313平方米




查看更多户型图纸,请前往微信公众号:住宅公园,自建房图纸免费*载下**,装配式建筑,保温抗震新型房屋,世界最新住宅科技。