

阳光在天边踱步,酒里剩下影子,光线舒张,在被风撩起的窗帘上洒下零零落落的晶亮。Masu的家,总是有这样细腻的小风景。
她自己也常常念叨,最大的幸福,莫过于让喜欢的事物包围周遭的一切,于是她的家啊,全部都是她喜欢的东西,甚至有些,异于常人。

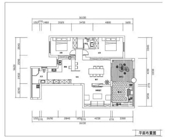
户型:三室
使用面积:120平米
房屋位置:浙江 宁波
装修花费:35万元

▲户型图。
在装修之前,Masu就已经想家庭核心区是厨房+餐厅,所以移动了次卫做了开放式厨房+吧台,把客厅改成了餐厅,改了一个朝南的房间做客厅+工作室。
Masu家的户型其实没有真正意义上的玄关,就做了一面黑板墙作为吧台的隔断,目前看来,她对户型的改动基本满意。
在改造户型时,想想你家的家庭核心区是什么,然后把家中阳光最好的位置留给它。


▲放在黑板墙前的穿鞋凳和衣帽架,是用来在进门时放包挂外套的。黑板墙的左边就是开放式厨房,厨房的墙面是砌了一半的15*15cm爆款小白砖加灰色防水乳胶漆,灰色墙面并不存在油污大不好擦的问题。

▲移动了原本次卫的位置坐了一个吧台,是家中利用率最高的空间之一。

▲厨房水槽区域,水槽和龙头都是赠送的,剩下了一小笔费用。

▲在厨房的一侧做了一整面墙的高柜,安装了内置式烤箱和蒸箱。为了跟橱柜颜色相呼应,Masu特意挑选了白色款冰箱。

▲厨房三大件:烤箱、蒸箱、洗碗机,每一样都提升着生活的幸福感。

▲厨房没有吊柜,就靠隔板和挂杆承担繁重的收纳工作,目前表现良好。小白砖是15*15cm,填缝剂深灰色。

▲厨房如果有高柜强烈建议装一个大怪物,收纳力Max。Masu家的大怪物一共5层,前三层分门别类放置东西,下面两层暂时机动。再安利一下二层放豆子等干货的locklock罐子,罐子容量大,罐子和罐子之间还可以扣起来,两个罐子正好一层,合理利用空间。


▲整个家中最大的面积留给了餐厅和厨房。

▲家里都是白色的墙壁略感无聊,所以餐厅的墙面砌完红砖后直接刷了乳胶漆做了文化墙。

▲餐厅选择的是2米长的榆木餐桌,为了平衡餐桌的厚重感,餐椅选择了不同腿型的轻盈的白色坐椅,白色+原木色的搭配非常耐看。

▲餐厅的另一面有半堵承重墙作为餐厅和客厅的隔断。

▲从吧台看向餐厅,平时餐桌旁只放6张餐椅,吃饭人数大于6时就拿出小圆凳做餐椅,平时把小圆凳叠起来放在餐厅角落。

▲坐在吧台看着餐厅吃早餐,是Masu每天最珍视的时刻,总有一种岁月静好的感觉。

▲这就是想要拥有大餐厅的理由。

▲餐桌上的装饰随着四季变更,冬天是编织桌旗,春天则是木质托盘,放上粉嫩的鲜花和水壶,春天的气息呼之欲出。

▲一场主题为green的轰趴。


▲在客厅看投影特别舒服,投影效果即使白天不拉窗帘也不错。

▲一个不以电视为中心的客厅,置物柜摆放的都是喜欢的画、心仪的烛台和植物。

▲花束的主题是白色,小凳子当边几用刚刚好~

▲设计师也无法理解Masu为什么把书桌放在客厅(因为实在没其他地方可以放了)。


▲只有10点出门才能看到阳光洒进房间的温柔一刻。


▲夜晚的书桌。

▲卫生间是水泥砖+原木。主卫的洗手台用的是做了防水处理的水曲柳,洗手盆是哑光材质的,确实比较容易有污渍,不过只要勤快的用克林擦擦,还是能打理的很干净的。买了一些藤编蓝用作卫生间的收纳,虽然没有柜子但主卫的收纳能力一点也不差。

▲墙壁的收纳空间。柜子里贴的花砖是黑白灰色系的,跟水泥砖比较搭。


▲床头柜是在特卖会时代购的,现在已经绝版了,嘻嘻。

▲主卧的床选择了床架,用靠枕来代替床头板。

▲露台初体验。绣球一起盛开的时候,花团锦簇的样子真是好看。

▲晚上的露台。Masu家的露台其实挺大的,目前只开放了这个区域,其他的区域在陆续开发中。
作为一个装修过来人,Masu总结了一点心得分享:
1.装修前一定要想清楚自己家的核心区是哪里。
2.做水电前也要考虑清楚想要装哪些家电或未来要装哪些家电,提前预留好插座和进出水口。
3.不要着急软装,慢慢买,入住前和入住后的口味会有变化,所以不要先着急囤东西。
买来很多绣球,布置一个花团锦簇的露台,费心思去买一个小物件然后享受绝版后带来的幸运感,对着阳光吃饭,一整天都会元气满满。
像Masu一样,拥有一些小习惯,是很幸福的事情,平淡得像白开水的日子里,就要给自己找点糖吃,这样啊,你会发现,其实每天的阳光都是跳跃闪耀的。

案例来源:屋主Masu
微博:只爱陌生人stranger
文字由装个好房子整理