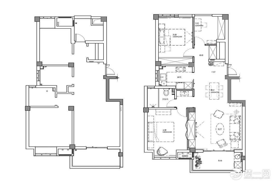
小三居的北欧风格怎么装修?90平米左右的房子选择什么风格合适?来看看一个90后姑娘的北欧生活
项目地址:西安电子科技大学家属院老房翻新
装修风格:北欧风格设计
装修模式:定制半包加主材代购
施工周期:65天
设计说明:90后的美女老师,从上学开始就有一个北欧风格的梦,来西安任教两年,终于买到了属于自己一个三居室,之前是一对老夫妻住,风格老旧,房子到手以后开始规划设计,和设计师沟通过以后选择现代北欧风格,清爽的色调,搭配喜欢的家具,终于圆当初的北欧风情怀







小三居的北欧风格怎么装修?90平米左右的房子选择什么风格合适?来看看一个90后姑娘的北欧生活
项目地址:西安电子科技大学家属院老房翻新
装修风格:北欧风格设计
装修模式:定制半包加主材代购
施工周期:65天
设计说明:90后的美女老师,从上学开始就有一个北欧风格的梦,来西安任教两年,终于买到了属于自己一个三居室,之前是一对老夫妻住,风格老旧,房子到手以后开始规划设计,和设计师沟通过以后选择现代北欧风格,清爽的色调,搭配喜欢的家具,终于圆当初的北欧风情怀






