
老旧两室小复式,因为是二手房购买,所以过去的装修比较陈旧,颜值和功能没有一样能满足,所以必须全部拆除重新装修。

▲原始样貌,陈旧凌乱,功能区也不合理,显得整体狭小而且光线昏暗。

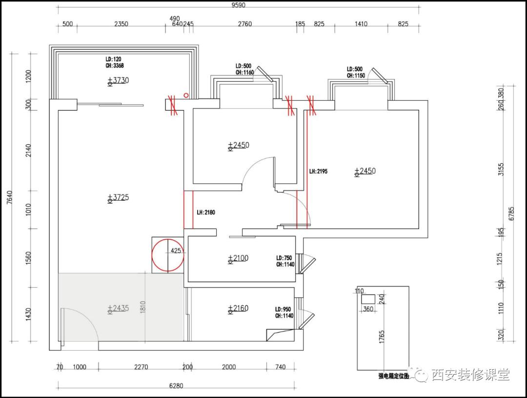
▲原始结构图,门口填色部分为原有的阁楼空间,非常小,空间比较鸡肋
需要改造的地方:
1.原有公共区域被阳台分割,光线昏暗
2.原有空间进门分割门厅,导致门厅餐厅整体拥挤;阁楼楼梯居中布局破坏了整体格局的通畅
3.卧室收纳不足,儿童房甚至无法满足基本功能
4.原有卫生间长条形布局,还做了浴缸,空间比较浪费;而厨房因为挤进冰箱导致收纳严重不足

▲设计最终布局图纸,改变了光线和整体格局的排列,让光线动线以及功能最大化满足三口人的生活。
具体改造如下:
1.重新扩大门口的阁楼搭建,让二楼区域作为机动空间兼顾多功能房和收纳;移动原有楼梯借用楼梯下方满足收纳储物
2.拆除阳台分割推拉门,让空间整体通透,改变原有昏暗的光线
3.舍弃原有卫生间浴缸,缩小卫生间,满足了冰箱和收纳的布局
4.移动楼梯位置以后,借用厨房门口打造西厨收纳,同时让餐厅变得更合理;冰箱外移,满足厨房空间更多的收纳
5.缩小主卧,扩大儿童房,满足了儿童房的基本功能设计
6.因为空间比较小,所以大面积采用浅色系搭配,刚好利用时下最流行的奶油色,适应小户型的整体颜值

▲进门视角,左手全身镜以及洞洞板,满足少量进门的随手收纳,下方换鞋凳满足进门方便就坐换鞋,作为进门避免压抑的缓冲,悬空定制通顶鞋柜满足更多鞋子的收纳

▲进门右手,利用厨房门口定制西厨柜,L型延伸小岛台布局,增加收纳,刚好满足轻巧餐桌的布局,满足平时三口就餐所需;白色岩板餐桌搭配暖色复古的餐椅和条椅,不论是功能和颜值都非常协调;利用餐厅上方暗藏投影幕布,满足三口之家偶尔的娱乐活动

▲扩大原来进门头顶的阁楼搭建,让空间一分为二,既保证了进门餐厅的合理布局,同时也保证客厅的挑空通透;牺牲原有卫生间空间,满足了冰箱镶嵌和局部收纳

▲厨房门洞比较小,为了满足门口餐边柜的布局,采用三联动移门布局,满足功能;局部吊柜以及轨道插座的配置,可以满足平时放置电器,旁边新作水槽满足西厨的平时操作

▲移动楼梯做了收纳设计,打掉阳台推拉门,拱形优雅点缀,让整体光线一览无余,加上客厅上方挑空的层高,光线和空间感受都得到提升

▲因为使用了投影,舍弃了传统电视的布局,选择了轻巧的沙发搭配温馨柔软脚感的地毯,沙发背后大面积镜子搭配,满足孩子平时练习舞蹈所需

▲站阳台看全景,光线和空间都非常明亮;加上奶油色墙面,白色与木色的对比清新,整体满足了小户型想要的温馨颜值和功能布局

▲进入卧室的过道同样拱形造型,与阳台完美呼应;沙发背景镜面不仅满足小孩练舞,而且空间上得到视觉延伸

▲移动主卧墙体,缩小主卧扩大了儿童房空间;同时改变主卧床头朝向,满足了卧室L型衣柜的定制,满足小空间的更多收纳

▲L型衣柜布局,靠近门口悬空的化妆台,节省空间,避免视觉压抑,悬空的床头柜收纳,避免了进门的压抑感

▲儿童房利用移动主卧墙体得以扩大,实现了门口的衣柜收纳,同时吊柜书柜布局,放置矮柜位置预留了书桌位置,满足儿童房收纳和学习的基本功能

▲阳台与客厅打通以后,满足了洗衣功能,原有裸露的下水管采用麻绳装饰点缀

▲冰箱外移,厨房满足L型地柜定制,经典小白砖搭配灰色的地砖,同样奶油色定制搭配,虽小但是非常简洁温馨

▲原有卫生间缩小以后,进门右手悬空洗漱区布局,白色瓷砖与薄荷绿瓷砖搭配,非常清新

▲卫生间全景,去掉浴缸,采用淋浴隔断分区满足功能,白色与绿色瓷砖清新明亮
原创专辑目录,不断更新12.29