KONDAS
项目名称:女子训练中心
设计公司:空袋子
主创设计师:Nova
设计团队:小詹、JJC、Emma
位置:云南·西双版纳
面积:570M²
类型:健身房
‖
菇凉们常常有一颗想要去健身房的心,但热情常常又被健身房的颜值打败。很多健身房都是男女士通用,对于菇凉们来说,无法真正的放开身心健身。另外菇凉们对健身房的要求除了私密性好以外,还要高颜值、高品位、高精致,毕竟每日打卡与自拍,配上超美的健身房的feel超棒。
Women often have a desire to go to the gym, but their enthusiasm is often defeated by the beauty of the gym. Many gyms are for men and women. For women, they can't really let go of physical and mental fitness. In addition, women's requirements for the gym are not only good privacy, but also high beauty, high taste and high delicacy. After all, daily punch in and selfie, coupled with the super beautiful gym feel, are excellent.
▼正面,Restaurant front

空袋子设计
设计师通过市场调研分析,为位于云南西双版纳的运动中心,打造了一个以粉色为基调并具有独立私密空间的纯女性运动中心。
Through market research and analysis, the designer has built a pure female sports center with pink as the keynote and independent private space for the sports center located in Xishuangbanna, Yunnan Province.
▼轴测分析,Axometric analysis

空袋子设计
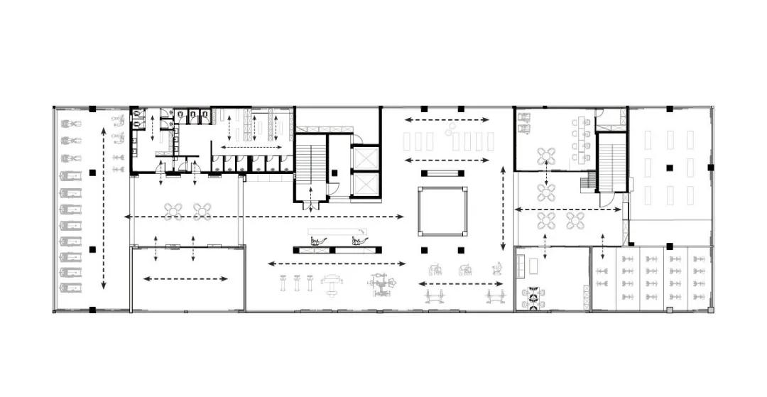
▼平面图,Plan

空袋子设计
▼动态布局,Dynamic layout

空袋子设计
针对不同需求的用户有各自独立的空间,分别设有休闲区、瑜伽室、有氧运动室、体操室、动感单车训练室、更衣室及化妆室。
Users with different needs have their own independent space, including leisure area, yoga room, aerobics room, gymnastics room, cycling training room, dressing room and dressing room.
▼空间展示,Space display

空袋子设计
整个空间顶部采用柔和纱幔作为装饰,既体现了运动中心以女性为服务理念的宗旨,又有高品质,高颜值,高精致的空间环境。
The top of the whole space is decorated with soft veil, which not only embodies the purpose of the sports center's service concept of women, but also has a high-quality, high-value and high-precision space environment.

空袋子设计
粉色基调的空间环境,简单而温馨。
Pink tone space environment, simple and warm.

空袋子设计

空袋子设计

空袋子设计
END

空袋子设计