如果问哪一个风格最浪漫,那当属法式风。精致的线条,惊艳的配色,每一个细节都在诉说着浪漫自由。今天,和小伙伴们分享9套法式风案例,快往下看!(建议收藏)
#1
《伊人》

设计风格:轻法式
半包价格:15万
户型面积:130㎡四室改两室
项目地址:合肥-元一柏庄
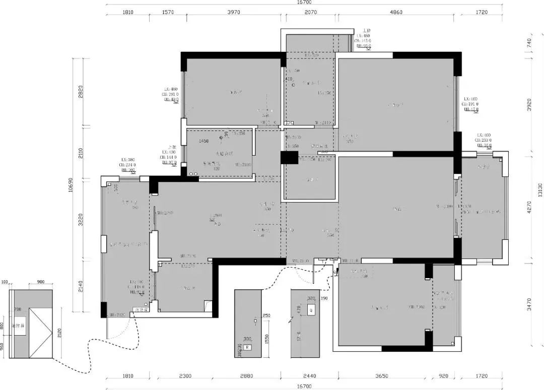
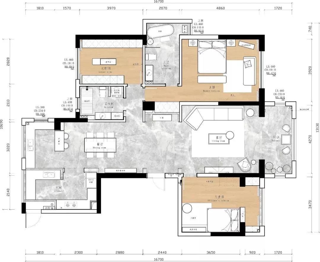
本案的居住者,是一对恩爱夫妻,有一个可爱的宝宝;房子是男业主送给女业主的礼物,业主希望自己的家是舒适的,喜欢法式风格。
设计解析

△Before

△After
设计亮点:
①将四室改为两室,让舒适度最大化。
②入户处无玄关,于是将小卧室改为衣帽间,增加收纳空间,也完善玄关收纳。
③将北次卧一分为二,一半纳入主卧,扩大主卧面积;打通主卫后,设计主卧+衣帽间+工作区的套间设计。
④小次卧另一半纳入客卫,扩大卫生间面积,实现双台盆+四分离卫生间设计。
案例赏析



#2
龙川里小区

设计风格:轻奢法式
户型面积:110㎡三室改两室
项目地址:合肥-滨湖龙川里
本案的业主,是即将迎来新生命的新婚夫妻,男业主从事金融行业,女业主是一个美妆主播,希望自己的家精致美好。
设计解析

△Before

△After
设计亮点:
①客厅阳台打通,增强室内采光,扩大客厅面积。
②将小空间纳入厨房,扩大厨房面积,实现中西厨设计。
③设计精致衣帽间,可以供女业主直播使用。
案例赏析



#3
金隅南七里

设计风格:轻法式
户型面积:130㎡
项目地址:合肥-金隅南七里
本案是一家三口居住,老人偶尔会过来小住,对空间的整体定位是通透精致的法式风。
设计解析

△Before

△After
设计亮点:
①将客厅、阳台、书房之间的非承重墙全部打通,提高整体家居通透度。
②扩大厨房面积,提高实用性。
③主卧套间设计,合理规划二字型衣帽间与三分离卫生间。
案例赏析



#4
《曦光》

设计风格:法式混搭
半包价格:15万
户型面积:138㎡三室两厅
项目地址:合肥-广视花园
本案的居住者,是一家四口,恩爱夫妻与一双可爱儿女,父母会过来帮忙带孩子,对于房屋,目前的居住需求是满足一家六口人的生活。
设计解析

△Before

△After
设计亮点:
①保留三间卧室,两个孩子一人一间卧室,男孩房暂时供父母居住。
②大阳台一分为二,一半纳入客厅,扩大客厅面积;另一半作为生活阳台使用。
③餐厅设计岛台,满足西厨设计,丰富生活趣味性。
案例赏析



#5
《Dream of Love》

设计风格:轻奢法式
半包价格:22万
户型面积:150㎡三室两厅
项目地址:宿州-哈佛*瑰园玫**
这套房子是三世同堂居住,业主希望家里有较好的采光和完善的收纳。
设计解析

△Before

△After
设计亮点:
①保留三间卧室,满足基本入住需求。
②大横厅分出书房空间,客厅与室内打通,扩大室内面积。
③主卧划出空间设计衣帽间,满足女业主梳妆需求。
④部分过道面积扩入儿童房。
案例赏析




#6
《Just for you》

设计风格:轻奢法式
半包价格:19.5万
户型面积:160㎡三室两厅
项目地址:合肥-金科博翠天辰
本案的居住者是三室同堂,业主夫妻、父母、和一个上初中的女儿;对于房屋,业主注重品质,希望可以在高品位的家居中享受生活的惊喜。
设计解析

△Before

△After
设计亮点:
①保留三间卧室,一间书房。
②阳台纳入客厅,并在横厅隔出大衣帽间。
③主卧设计衣帽间+超大口红墙,满足女业主精致生活。
案例赏析





#7
《遇见巴黎》

设计风格:轻法式
半包价格:9万
户型面积:162㎡三室两厅
项目地址:和平盛世
这是一套婚房设计,业主的居住规划是5-10年。
设计解析

△Before

△After
设计亮点:
①南北阳台都纳入室内,扩大客厅,丰富厨房功能,提高居住舒适度。
②保留2间卧室,北次卧改为中岛衣帽间。
案例赏析



#8
《微醺》

设计风格:休闲法式
半包价格:21万
户型面积:200㎡三室两厅
项目地址:合肥-望湖城
本案业主的居住者是一家三口,原本是作为孩子的学区房使用,结果孩子被提前录取,业主戏称要作为“养老房”使用。
设计解析

△Before

△After
设计亮点:
①保留三间卧室,其余卧室改作它用,丰富空间功能性。
②南阳台保留晾晒功能,用隐形门与客厅连接。
③主卧与次卧结合,设计书房、衣帽间,实现套间设计。
④将北次卧纳入室内,扩大餐厨面积。
案例赏析




#9
《衡微》

设计风格:法式
半包价格:38万
户型面积:300㎡别墅
项目地址:合肥-中海央墅
这是一套婚房设计,业主是即将结婚的恋人,对于房屋,业主更加注重光线的穿透、线条感的营造。
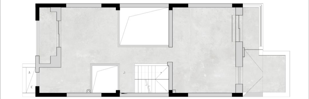
设计解析


△一楼设计前后对比图


△二楼设计前后对比图


△三楼设计前后对比图


△四楼设计前后对比图
设计亮点:
①一楼规划客餐厨。
②二楼规划老人房以及预留的儿童房。
③三楼一整层都作为业主私域空间使用,设计了主卧、四分离卫生间。
④四楼主要为女业主设计超大的画室。
⑤房屋保留天井,并设计室内景观,让光线在空间内更好的穿透。
案例赏析



9套法式风案例各有特色,你最喜欢哪一套?
ps:部分图片来源于网络,如有侵权,请联系删除!