轻钢别墅大家都喜欢,但是却不会建,尤其是在一些偏远的农村,更是如此,想要盖一栋实用的轻钢别墅,除了有图纸,还要有施工队,满足这些才能盖出实用的农村别墅。
今天就给大家带来2套农村轻钢别墅合集,来看看这样的房子,能否成为村里最受欢迎的那一栋。
先来看这一栋别墅,造价31万,典型的农村自建房风格,尤其是这个大门,太有亲切感了,基本上90%的农村家庭都用的这种大门,小编的农村就是这样一种情况。

平面布局图:
再来看布局展示,二层设计,首层客厅,二层住房,相互独立互不牵扯,简直太实用了!


尤其是旁边的环形展示,更是漂亮,180平的建筑面积,才花了31万,而且还是包工包料价,这性价比绝对稳的没话说。

把脚手架拆掉之后,别墅更加漂亮,在村里别具心思的盖一栋这样的房子,倒也乐得自在。

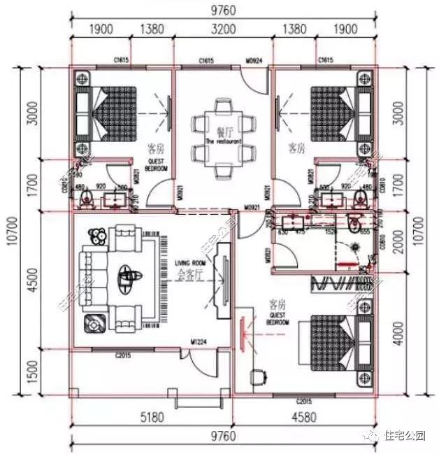
户型二:
这第二套户型造价更便宜,仅仅15万的价钱就可盖好,从设计到施工,再到室内装修,房子20多天就建好。没骗人没忽悠,20天的时间就盖起了这栋实用的农村别墅。

平层的设计很适合农村生活,三间卧室,每个房间都是一个独立的套间,还有会客区域跟餐厅厨房,虽说是平层建筑,但依旧实用的没话说。

不信来看,这样的布局,这样的设计,15万的价钱绝对是最具有性价比了,如果家里只有老人居住的话,与其盖那些二三层的别墅洋楼,倒不如来盖一栋这一点轻钢别墅,造价低又实用,而且保温抗震都没话说,用来养老最合适不过了。

再来张正面图看的更清楚,这样的好房,你可一定不能错过。

关注本号,每天都有新户型,还有乡邻晒家,建房省钱小妙招一手掌握。