位置:位于宝安大道和凤塘大道交汇处,11线塘尾站B出口约300米,目前周边比较杂乱,电动车很多,销售说以后地铁会有一条连通通道通到楼盘门口。

占地:12.8万
总建面:约81万平米
配套:分三期开发,自带12.5万商业,公寓4.5万,写字楼5.3万,是集大型购物中心,高端住宅,公寓,写字楼为一体的大型综合体
容积率:4.5左右
绿化:35%
停车位:1:0.8
交房方式:毛坯
概况:
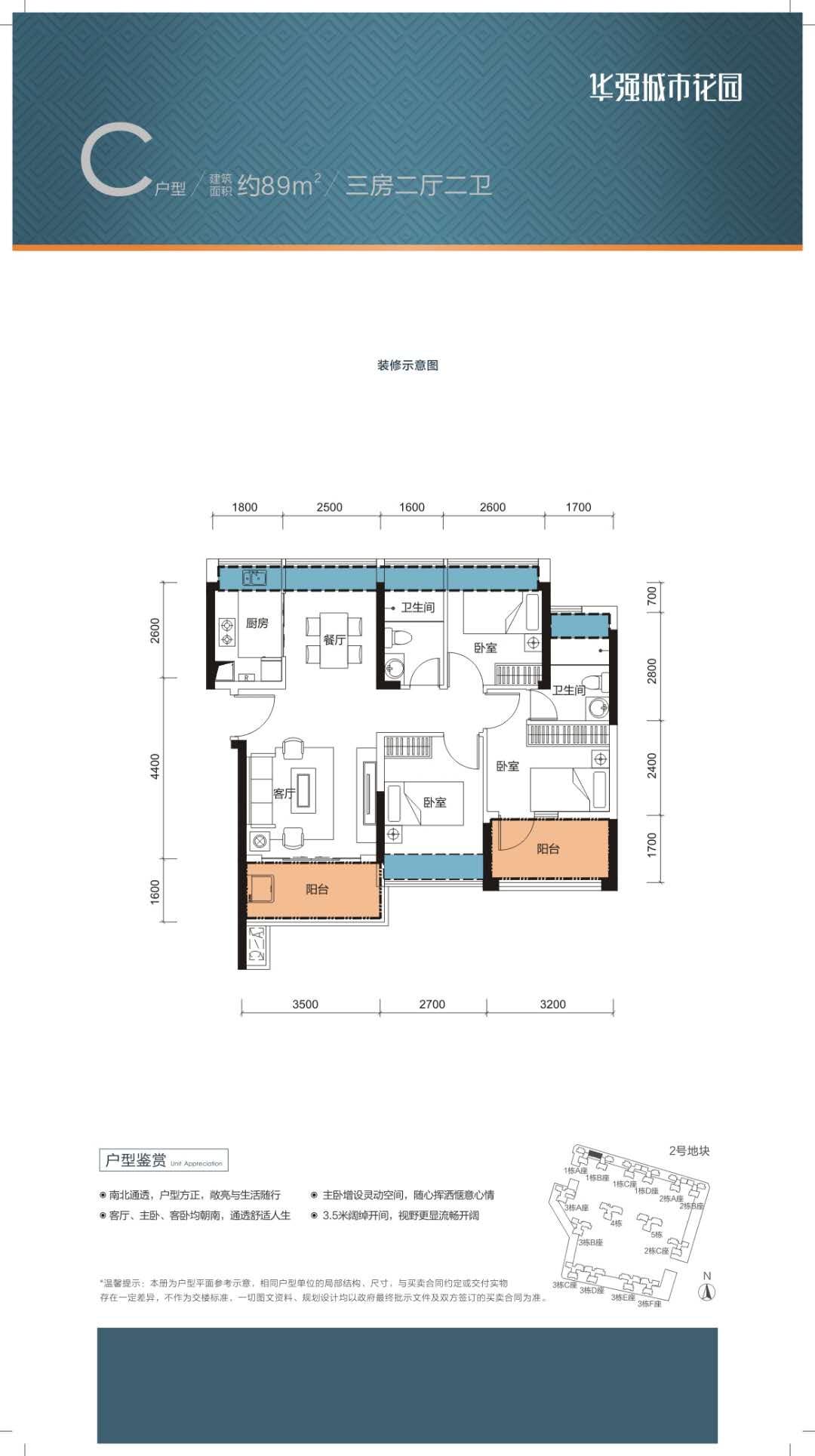
华强城这块地是华强集团和村委联合开发的,一期在2018年底销售了一大部分,现在卖一期剩余556套住宅是村委的产权,1栋A 、1栋B座 ,3栋B 、3栋C 座,两梯四户,72平米(124套),89平米(337套,4栋 两梯三户 125 130平米(各32套),现在是现楼,预计半年左右交房,具体以合同为准。户型方正,坐北朝南,二期是保障房已经入住,楼下商业跟沃尔玛,肯德基等签约,三期是2019年中旬卖完已交房!
周边配套:小区自带幼儿园 ,塘尾万里学校,小学初中都有省一级,南科大十二高级中学(高中),自身12.5万平商业,周边4km范围有福永益田假日里,同泰时代中心,沙井新沙天虹,京基百纳广场,新会展中心,凤凰山森林公园,立新湖公园,周边有鸿荣源 中粮 海岸城 卓越 京基 华润等大型旧改。
户型:72平的两房,主流户型为89平的三房两厅两卫,110平大三房,125-130平四房,户型比较多,部分89平的户型客厅横厅设计,还可以南北通透。








卖点:妥妥的11号线地铁盘,但是距离地铁又有300米,没有金融街那么吵。11号线是一条块线,去南山福田上班还是很方便的。户型方正使用率高,两梯四户两梯三户低容积率还是很香的,现楼比三期开盘的价格并没有涨多少,社区比较大。
区域方面福永沙井有会展中心大空港的加持,也是近年资金流的方向。

大空港的规划很震撼
劣势:周边环境比较吵杂,农民房工业区电动车很多。没有名校加持,学位的成长还需要一定的时间。刚需盘,停车位也不足,最近踩的盘停车位都不足哇!
价格方面,其实已经放风出来了,5万-5.5万,对比旁边的中粮凤凰里倒挂一万块钱一平。