大家好,我叫Chris,和大家一样是一位港漂。
我出生在中国十八九线小城镇, 2010年到香港读博随后留港工作至今。
刚到香港时候是师兄帮我租的房,我记得当初的房子是一个唐楼分割出来的不到5平米的房间,月租只要1700HKD,是的1700HKD。

这1700HKD的房子怎么样呢,爬三层楼梯,然后屋子内除了床和衣柜之外什么都没有,没有保安,也没有门禁,大家共用卫生间,隔音效果非常差,大晚上隔壁年轻小两口无论为爱吵架或者鼓掌,我都听得一清二楚,怎么说呢,作为当时20多岁的我来说,一方面的确为生活所迫,另外一方面的确有点刺激。
所谓没有伞的孩子只能努力奔跑,反正就这么一路努力学习及工作。随着博士毕业,以及工作发展, 我从工程师,做到了高级工程师,之后做项目经理。
随着职位和收入的增加,我所住的房子的房租也从1700HKD变成了3800HKD (好像依旧很可怜)的唐楼套房,然后变成了7500HKD的洋楼套房,之后变成了23000HKD的酒店式公寓。相信各位可以感受得到一个来自十八九线小城市的人为了在香港拼搏所做的忍耐,以及随着事业发展对个人生活的提升。

在我33岁的时候,也就是去年,我通过个人投资 ,闲暇时间的副业,以及家人的支持下,攒了一些钱,想了一下手里攥着这么多现金看着贬值也没有意思, 所以就开始了自己的买房之旅 ,我也想过房价会波动,但是长远来看不会是个很大的问题,尤其是香港这个所谓的国际化城市。
香港的房子虽然看起来很贵,但是他的*款贷**利率很低,而且香港的租金回报高,即使之后哪天我离开香港了,也可以把房子租出去, 年租金回报约2.5%,基本上可以以租养贷。
01
随后我开始准备买房
我的买房思路:
1.因为是我自己一个人买及*款贷**,预算方面是由当时自己的现金及人工所决定的, 理想总价是700w以下,最多到800w ,请注意,该价格需要包含初次购房时的买卖合约印花税 (3.75%)及中介费(1%)。
2.对房子的想法方面,思路是房子最好具有一定的流通性,即哪天我想卖房的时候会比较容易转手。所以必要条件是:两房,九龙区,有一定景观,位置周边有发展优势,面积最好在400呎左右,楼龄20年以下。加分项为:有学区,离工作地点通勤时间在40min以内。
3.看房思路:我把香港地图打印了出来,就那种带着交通路线、房屋、乃至地形图的那种地图, 同时分析我的工作特点,以及香港本地产业分布。 基本上锁定了几个区域:一个是启德概念,一个是北部都会区概念 (火炭到上水),一个是老牌的生活区(马鞍山),还有一个是最强上车盘(港湾豪庭)。

香港地图,这一版最大的好处是:可以看到地貌和一些未开发的区域,哪些地方是稀缺资源一目了然。
02
贪新和便宜,我犯的第一个错误
我最先看的房子是马鞍山区域内比较新的盘,叫荟朗,离马鞍山站走路10分钟。
因为房子很新 (3年多楼龄),马鞍山那个地方离科学园或者九龙都很方便,在利嘉阁app上看到了一个低价盘,价格比周边还低约15%,马上就在app上约了中介带去看了那边几个两房单位,说实话,当时看完之后有一点心动,只不过被告知这个单位同层有凶宅。

是的,在香港这个发达而迷信的地方, 银行是不给凶宅批*款贷**的,和凶宅同层的单位,银行给的*款贷**额度也会降低15~20%。
这个银行的估价会影响我房屋之后的转手,所以当时就劝退了。一个比较新的盘短短几年几场命案,也是醉。另外一个劝退我的是相对新的房子的管理费 (理解为内地的物业费)比较贵,一般5 HKD/呎每月,也就是每个月2000多物业费。

建议1: app上想看的房子都查一下银行估价,估不出来价的房子都留心下是不是凶宅附近。
然后有意思的事情来了,中介带我去看了马鞍山另外一个有20年楼龄 (迎涛湾)的两房单位,也差不多400呎,但是实际感受这个400呎比荟朗的400呎面积大很多!
而且我得到了一个惊人的消息: 2008年以前的房子,飘窗是不计算在实用面积内的。 一个有大飘窗的卧室可比一个没有飘窗的卧室视觉体验大多了。当时觉得这个房子超过了我的理想预算,所以也没有继续看下去,签了睇楼纸然后离开。
建议2: 调整下思路,也看一些2008年以前 (15-20年楼龄)的房子,相同实用面积的房子,2008年以前的房子更大。
03
短暂暧昧的北部都会区
跟着我看房的思路,下一个看到了粉岭,主要看了联和墟这边的逸峰 (比较新)和御庭轩、帝庭轩(20~25年楼龄)的两房,说到这不得不感慨一下靠近深圳的优势,导致粉岭部分楼盘跟九龙一些盘一个价。
这里是通过美联地产约到的中介,中介姐姐是另外一位超级资深的港漂,当时觉得很有缘分,所以之后其他区域的看房也都是一直麻烦她带我。

中介姐姐在粉岭和上水推的这几个楼盘其实都不错,讲真,只不过结合我当时的工作地点而言,这个位置的确有点偏。
个人主观想法方面: 从我对投资的理解而言,我觉得新界不缺地 ,所以长期来看不算是稀缺资产,目前的这个呎价我认为不具有显著的投资换手意义。所以这里略过。

04
市区最强上车盘-港湾豪庭
说到市区最强上车盘就一定是 港湾豪庭 ,20年楼龄,地点九龙大角咀,步行10分钟内有三个地铁站,呎价也很适合上车族,只不过……旁边有个大酒店 (香港人称殡仪馆为大酒店)。
当时其实还是很喜欢的,毕竟红磡住了这么久,大酒店已经免疫。
随即约着看了好几个单位,最后锁定在1座几个高层的两个两房单位,虽然只有330呎左右,但是有海景! 高层、临海、双卧室都看得到特别大的海景!报价780w,银行估价也足。 就是下图,330呎加上飘窗,空间感足够,稍微装修下住一两个人是很爽的!





当时看完的心情是:就这了!然后我就交票让中介分别去谈了。我这里心里做了好久的建设把自己的预算从700万提高到了800万, 结果人家看到我票后说:封盘不卖!而且是两间都不卖!
我内心os:丢~你不卖放咩盘~玩嘢~~!
好的,港湾豪庭1座高层的海景单位我都入票了,然后都没有谈成,之后就没有看港湾豪庭的其他房子了。
建议4: 人性就是这样,你看到了这个小区最好的两房单位,那么这个小区其他的单位就黯然失色了。
建议5: 如果有计算好的预算,就坚持住 ,价格高的房子肯定会更加吸引你,但也会增加你钱包的负担,我现在后悔的事情是买房时没有留足够的现金去做我想做的事情。
05
兴高采烈去买新盘,结果要抽签
然后中介当时问我要不要抽火炭的新盘 ,星凯堤岸,是内地开发商在香港的新盘,当时中介说该开发商很有可能会为了打响名声在香港以低一点的价格卖房,结果预约参观时候发现并不是,实际上符合我预算的房子只有这里个别低一点楼层的一房。
所以这个我略过,另外一方面是发现买新房看人品:我交了票,以为就可以选房了。结果发现这个入票后得抽签,然后按号码挨个选房子。


那么我的人品的确不好,给我的号码偏后,所以没到我的时候就已经没有符合我预算的房子了。
建议6:大家看新盘的时候,千万不要第一天上午去,人多且没有意义,第二天去看一样的,人少不用排队且随便拍照。
06
情定土瓜湾
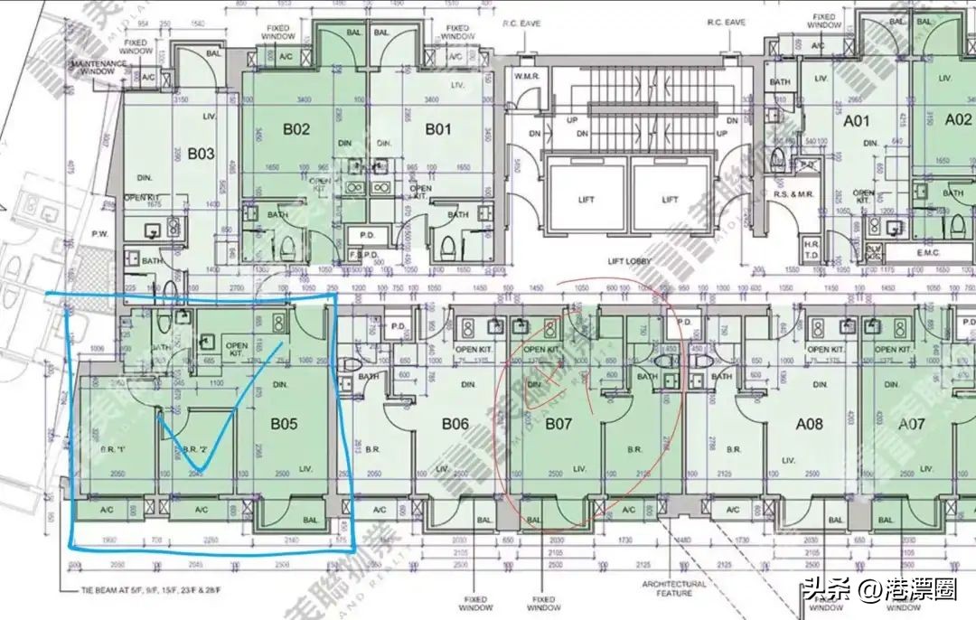
最终看的是港湾豪庭的姐妹盘,叫做 翔龙湾 ,15年楼龄 (加分),这个房子虽然在土瓜湾,但是被化在了启德发展区,周边都在盖商业区(加分),有34名校网(加分),有海景(加分)。不过这个小区的房子也有一些缺点,就是很多单位的阳台比较大,388呎的50呎给了阳台,然后房间貌似不是很高,但是还行。


看了里面几个不同的单位,从1座到6座,在我的预算范围内还真没有很多选择,但是意外的遇到了一个中低层的临海单位,就这个单位的卧室呢,是临着海的,什么意思呢, 就是说晚上睡觉的时候是不会有车辆噪音的。
所以我也交了票,顺利的拿到了这个房子, 768万,388呎,物业费一个月只要1300不到, 那就它了。前后经历了3个月左右的看房和研究,在这画个句号。在这里只放一个户型图,因为原房间的装修我没法用,所以全拆了,不具有参考意义。

PS提一下:这个看房的时候呀,一定要看仔细,你看看这个洗手间,至少三处bug。 (答案将在文章最后揭晓)




拿到手后,房屋做了小小的装修。
相信这不是我最后一套房子,所以全屋只做了墙面 (铲掉重新刷漆)和地板(打蜡),然后全屋子的冷气机都换成了分体式变频冷暖的那种(比窗口机安静多了),淋浴设备也换了恒温的,灯和门锁也换了智能的,卧室把窗帘整个换了,绝对遮光,拉上帘就是黑夜,其他家私基本上就买了二手的,支持下环保,加上我抠……嗯……全屋简装花费8w港币!


好的,生活不易,每个人都在努力向前走,祝各位找到自己心仪的房子,然后把那个房子变成你的家!
最后来揭晓谜底揭晓:
Bug1: 花洒的顶部实际并未接入,只是个装饰
Bug2: 洗手间没有门把手
Bug3: 也是隐藏最深的bug,地漏的那个塞子跟普通洗手池的塞子是一样的,也就是说,当它塞上的时候,就……一点都不下水…… (手动白眼)
*以上内容为作者投稿,仅代表作者观点,不代表“港房研究所”平台意见。图像影音来自网络,本文由港房研究所原创,转载请联系港房研究所微信公众号(ID:fanginhk)。