1
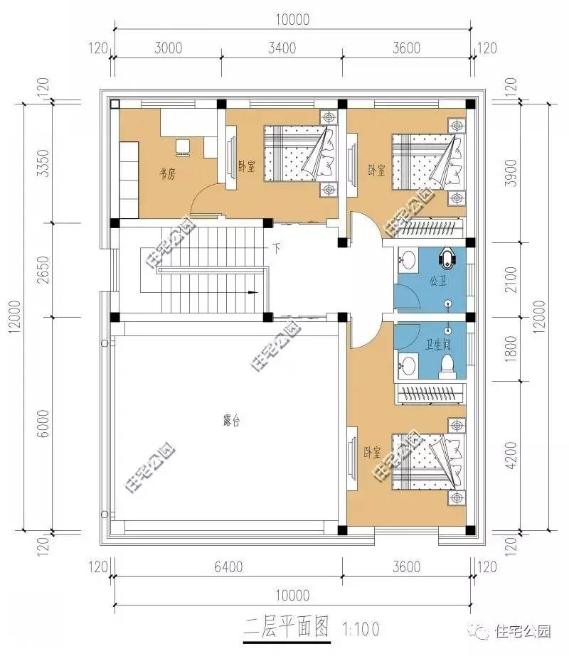
11X12米美式二层别墅
该户型外形为经典的美式简约风格,空间布局工整紧凑,动静分离,南北通透,造型简洁。
占地尺寸:11.2m*12.22m
占地面积:106㎡
建筑面积:206㎡
建筑情况:2卫3厅4卧1厨2露台1阳台

平面布局图
说明:
1.卧室自带独立卫生间,居家生活更加便利;卫生间干湿分离,既能保持洁净的环境,又能预防细菌滋生,有利健康。

2.卧室皆有室外空间的露台或是阳台,便于室内采光充足;特别的检修口设计,便于房子的维护和检修,这是十分重要的。

2
12mX12.5m经典别墅
该户型空间布局工整紧凑,动静分离,南北通透,造型简洁,搭配弧形采光窗,很有欧式田园的美感。
占地尺寸:12m*12.5m
占地面积:140㎡
建筑面积:260㎡
建筑情况:4卧2厅3卫2活动室

平面布局图
说明:
1.入户处避免开门见山,门口可设计为玄关,与客厅形成迂回;

2.二层的主卧室配设有衣帽间及独立卫生间,空间品质感悄然提升。

3
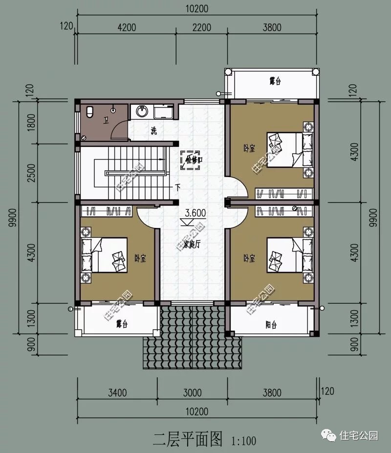
10.2mX12.2m经典别墅
曲度优美的弧形窗,典型西式风格的罗马柱,鲜艳的红屋顶,充满了浓郁的西式田园风格,这是一栋简洁而不失雅致,优雅而内敛的双层别墅。
占地尺寸:10.2m*12.2m
占地面积:125㎡
建筑面积:207㎡
建筑情况:5卧2厅4卫1露台1书房1厨房

平面布局图
说明:
1.入户的客厅设计,较好地保障了业主的私人空间,也能及时招待客人。

2.主卧自带卫生间,次卧也设计在离卫生间很近的地方,方便业主日常生活。

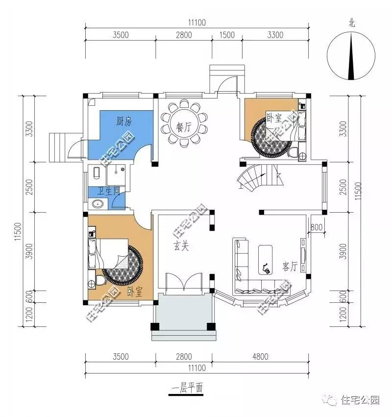
4
11.3mX10m经典别墅
经典欧式外观,赋予了这栋别墅大气奢华之感;完善合理的空间布局提供高品质的居住环境,拥有比较完善的配套用房及设施,堂屋、挑空客厅、露台等俱全。
占地尺寸:11.3m*10m
占地面积:100㎡
建筑面积:264㎡
建筑情况:7室1厅1堂屋1餐厅1厨房3卫

平面布局图
说明:
1.一层设有堂屋,满足农村居传统居住需要;客厅为挑空客厅,大气通透;

2.别墅整体建筑结构,工整合理,上下水对齐,易于施工,适合各种建筑结构建造。


5
11.2mX12.2m经典别墅
该户型空间布局工整紧凑,外观雅致,造型简洁,设有极具农村特色的堂屋,美观又实用。
占地尺寸:12.2m*11.2m
占地面积:125㎡
建筑面积:316㎡
建筑情况:6室4厅1厨5卫1露台

平面布局图
说明:
1.别墅设有两个大门,正入户门进门为堂屋,后门进入为餐厅,方便使用;

2.主要活动空间全部朝南,并配有多边形采光窗,居住感受佳,视野开阔;

3.三层双露台,让田园美景融入生活起居,畅想自然。

6
17.3mX10.7m平层住宅
选用坡屋顶,更利于排水,房屋整体风格偏向美式简约又不乏欧式的庄重。
占地尺寸:17.3m*10.7m
占地面积:171㎡
建筑面积:171㎡
建筑情况:3室2厅1堂屋1厨2卫1书房1锅炉房1檐廊

平面布局图
说明:
1.室内布置有堂屋、锅炉房符合乡村民情,适合北方严寒地区。
2.室内布局非常合理,可谓动静分离。
3.厨房与餐厅相连,二者又与客厅相隔,能够大大减少室内供暖制冷的能耗。
4.虽无私卫,但一左一右2个公卫,完全足够一家人使用。 锅炉房靠近卧室,冬季供暖非常方便。
5.客厅的飘窗设计可谓点睛之笔,不仅美观而且采光充足。

7
12mX11.7m经典别墅
高贵典雅的经典欧式建筑造型,经久不衰;这套别墅着重强调了居住的实用性,内设9个卧室,可供大家庭居住。
占地尺寸:12.1m*11.7m
占地面积:125㎡
建筑面积:332.9㎡
建筑情况:9卧1厅3卫1厨1餐厅1露台1阳台

平面布局图
说明:
别墅结构工整,上下水对齐,降低施工难度,易于建造。



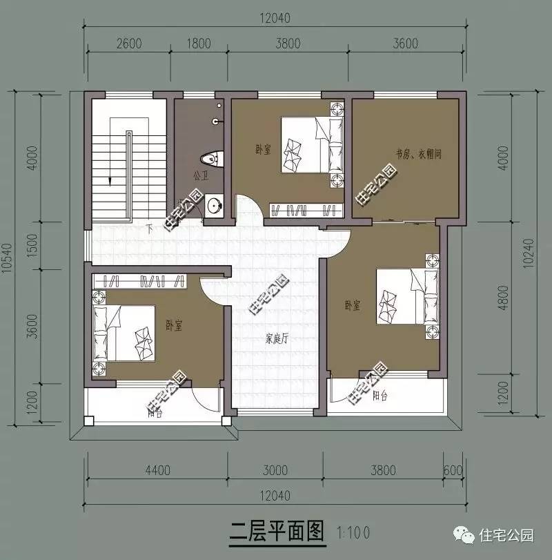
8
美式二层高采光小别墅
该户型外形为经典的美式简约风,4间卧室3间朝阳,采光良好。
占地尺寸:12.04m*10.54m
占地面积:124㎡
建筑面积:220㎡
建筑情况:2卫3厅4卧1厨2阳台1走廊

平面布局图
说明:
1.房前有走廊,让外观更加靓丽,造型更加美观;室内布局简单实用,一层卧室面积够大,距离餐厅厨房等功能区域较近,适合做老人房。

2.二层多卧室,主卧配置豪华,书房、衣帽间一应俱全;2个卧室皆有阳台,采光较好。

9
13×12.3m二层美式别墅
该户型外观采用温软细腻的暖色调,罗马柱和门斗设计,彰显浓郁的美式风情,造型简约大方。
占地尺寸:13m*12.3m
占地面积:150㎡
建筑面积:267.7㎡
建筑情况:7室 4厅 4卫 1厨 2阳台 1露台

平面布局图
说明:
1.设有前后门,进出更加方便;入户客厅与内部采用软隔断,保证了一定的私密性,避免了直接的开门见山。

2.二层居住区,布局与一层相似,书房、休闲厅等功能性区域一应俱全,丰富了居家生活,提高了生活品质。

10
12×11m农村二层小别墅
该户型外形为经典的美式简约风,老人房自带独卫,主卧自带书房居家办公两不误。
占地尺寸:11m*12.24m
占地面积:120㎡
建筑面积:233㎡
建筑情况:2卫3厅4卧1厨2阳台1走廊

平面布局图
说明:
1.一层卧室自带独立卫生间,可做老人房,为家中老人的居家生活提供了便利。

2.二层3卧室1起居室1卫生间,主卧配置齐全,设有独立卫生间、衣帽间和书房,适合在家办公,居住空间也非常充足。

微信公众号:住宅公园,500套别墅图纸,别墅、庭院设计施工,施工专家答疑。