新农村不是过去的农村,新农民也不是过去的农民。尤其是90后,他们无论在文化,认知还是眼界上,已经没有了城市和农村的区别。那90后农村自建房喜欢的风格是什么样?是70后、80后喜欢的简欧式农村别墅?是60后喜欢的中式三合院四合院?我觉得都不是,现代风格的农村别墅,才应该是他们的首选。今天给大家汇总近期发布的现代风格农村别墅户型,占地面积大小都有,二层三层齐备,部分带挑空客厅,看看这样的新农村别墅,是不是才是未来农村90后自建房的主流。现代风格农村别墅户型一:




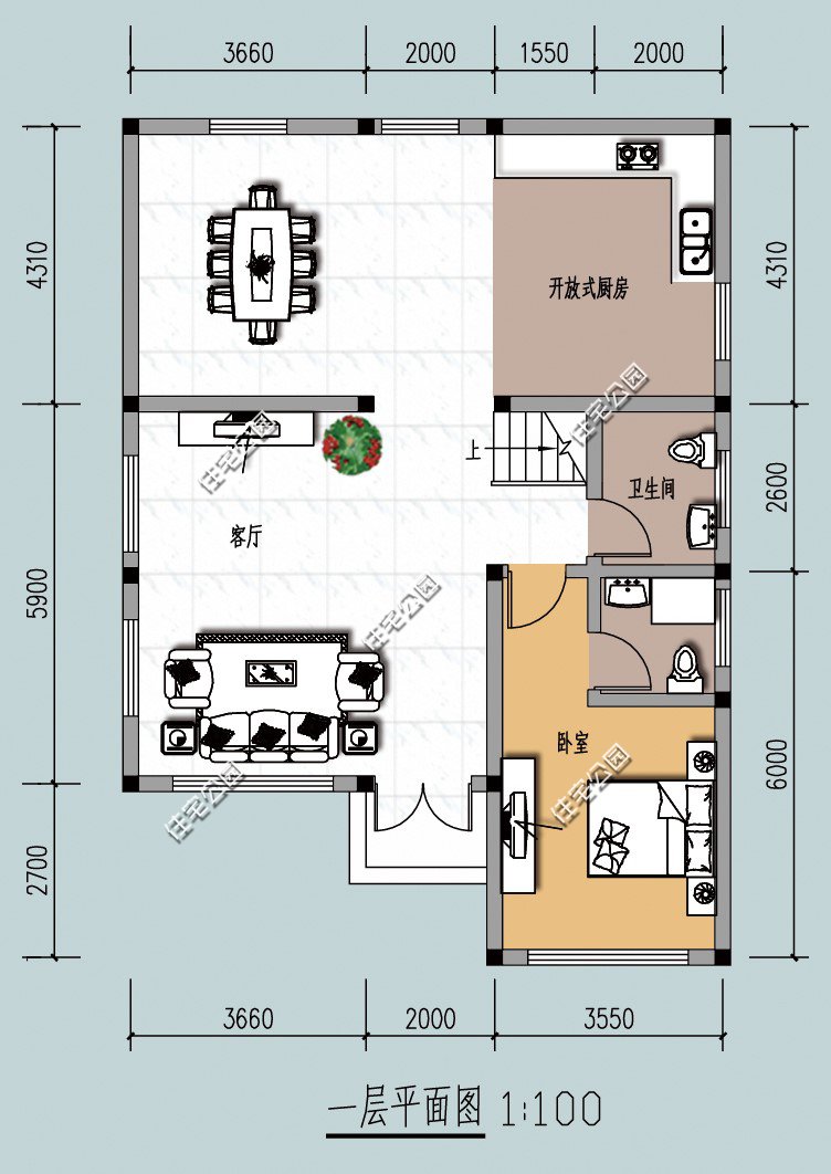
现代风格农村别墅户型二:现代风格的主要特点这套户型表现的淋漓尽致,线条方正简单,易于建造。大规模玻璃落地门窗的采用,采光通透,但要注意保温,尽量选用三层玻璃窗,断桥门窗框。这套户型平面图布局也非常现代,标准的西式开放式厨房,带中央岛台,但请注意,定制业主院内单建土灶厨房,室内西式厨房只考虑简餐。



现代风格农村别墅户型三:



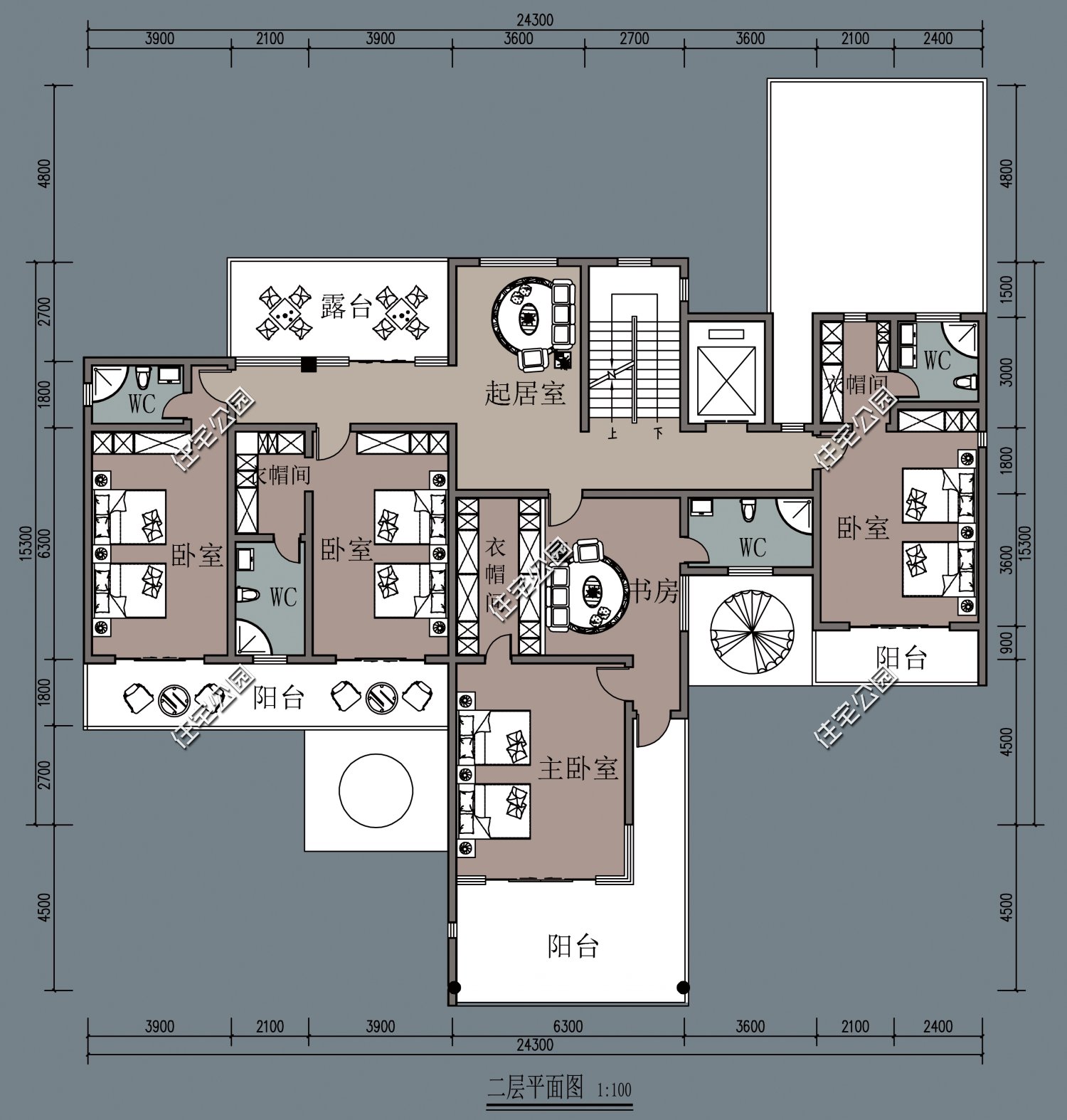
现代风格农村别墅户型四:现代风格外型,带中央庭院布局,中西合璧,我要是农村建房子,就选这一套。




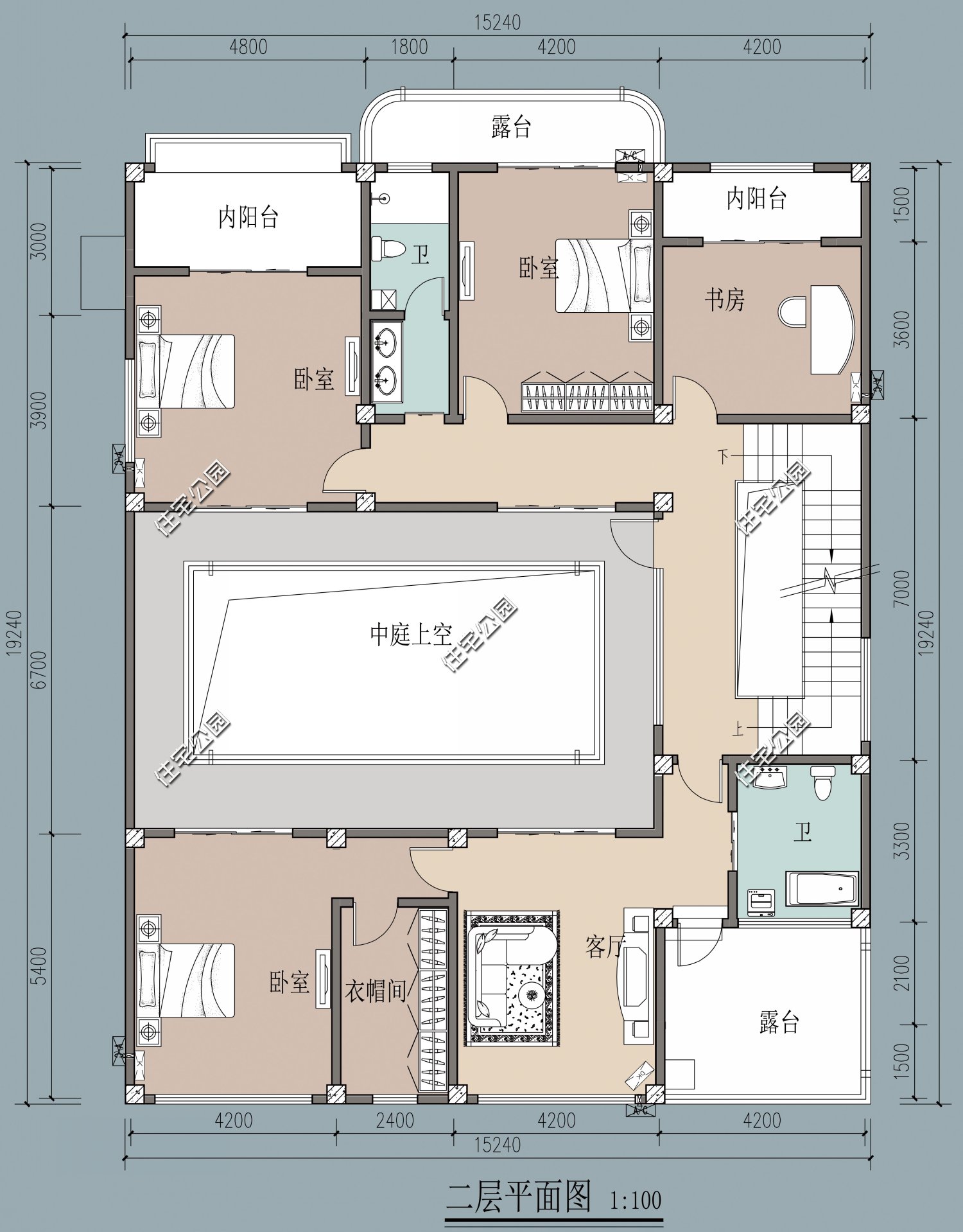
现代风格农村别墅户型五:更实用的现代风格,门窗更好选择,保温性也合理。



现代风格农村别墅户型六:




微信公众号:住宅公园,600套农村别墅图纸,施工专家答疑。