【项目名称】保利商务大厦22楼智悲禅修中心
【设计单位】*安泰**第五宅装饰设计(地图可导)
【户型】会所
【面积】300平
【装修形式】大包
【主案设计师】高振攀
【参与设计】李俊霞、木言、王佳钰
【摄影】东尼商摄
【产品支持】箭牌卫浴、道格拉斯瓷砖、雷士照明、五金代购、日立空调、第五宅软装代购、第五宅定制|
【写在前面】现在都市生活过快,这种节奏留给人们思考的空间太少,人人都在匆忙地生活,于人于己都在寻求快速、方便,以往的生活轨迹被改编,渐渐地人很少停下来去注意那些在快节奏生活中失去的东西,唯有放慢脚步你才懂得珍惜生活中的种种美好
*安泰**第五宅装饰,高端品质,亲民价格!
坚信设计的力量!用作品说话,作品即人品!
未经许可,禁止盗用,违者必究!
更多案例请关注:第五宅设计
缘。与师傅结缘是在工作室,朋友引荐,初识一袭青衣,整洁、利索,神态奕然、温文尔雅,举手投足间尽显安静、随和,与之沟通言简意赅,无欲无求、自在随缘。
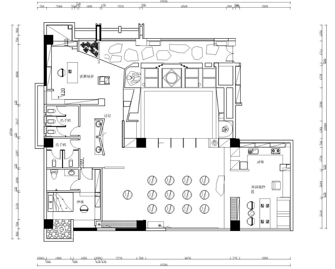
居。原建筑300平米为两套紧挨三室两厅居室,意在通过改造成为一个可容纳10-20人活动的禅修中心,功能要具备禅修室、多媒体活动空间、卫生间、展示空间、小厨房及休息室。
意。让*安泰**最好的风景线——泰山融入到市内空间成为“画中画”将一片树、一块石、一座山、一滴水这些自然的元素引入室内让它在这干净的空间中自然地生长、自然地消逝......

法。将两室所有非承重墙打掉释放所有空间,将禅修室置于室内中心位置,利用U型动线环绕进入,增强佛堂的神秘感与期待性,采光通风最佳位置一字并列为休息室、多媒体空间、公共活动区,茶室作为会客接待与展示空间位于主入口尽头,卫浴空间为照顾便利性设于走廊位置同时利用断墙设计将其干湿分离。




入口过道将地面抬高,顶面压低,增大相邻青石板距离让访客脚步慢下来,尽情欣赏窗外泰山风景,原本糟糕的心情在此处得以沉淀、放松,干净的心境对佛也不失为一种尊重

、



茶室西北角位置冬天时有一抹斜阳照入,在此手植绿竹,夜阑人静时,微风一吹松涛阵阵,点一柱清香、品一杯清茶,翻一本书,正可谓“此景只应天上有,岂知身在妙高峰”



“曲径通幽处,禅房花木深”故意拉长的通道让来客在行走中沉淀心境,而尽头花格处即隐约可见师傅参禅打坐的身影,






背景艺术挂画为当代铅笔画家刘刚作品,对面墙作品为八大山人仿品,画中有山无水,喻佛法如鱼游水中具无限生机,而空间中多处运用玻璃给人营造水的流动、清透感,利用它作为餐厅及多媒体区桌面让佛事变得更加的超然物外,就像中国的禅文化强调内观自省,抛却杂念佛法无边看山是山、看水是水




生活需要仪式感——法器、花器、香器、佛经、琴、棋、书、画每一样物品承载着主人的品味、爱好,它们会和这个空间随着时间的流逝变得更有味道更有故事性......
*安泰**第五宅装饰,高端品质,亲民价格!
坚信设计的力量!用作品说话,作品即人品!
未经许可,禁止盗用,违者必究!
更多案例请关注:第五宅设计