
「赫设计」这套#淮海名邸#作品,融合东方简约和现代品味的奢华质感,谋求丰富形态的表达、契合业主与设计师之间的精神默契。

一把圈椅、一张沙发、一盏灯饰,出手精准,寥寥几笔,户型软装做到简单而丰富的境界。
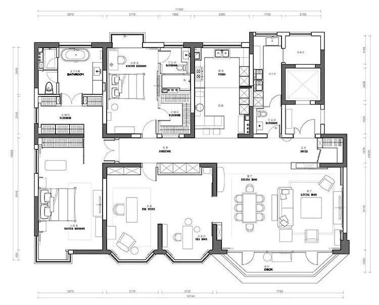
房屋信息
户型 4 室
使用面积 265平
装修花费 240 万元
房屋位置 上海 徐汇
所有图片「赫舍空间」提供
01
户型设计
/
舍弃多余的房间,书房空间整合新布局
原户型是4室2厅,户型方正,但从实际的居住需求来看,多余的客卧果断取舍,以书房整合客餐厅,形成开放式的办公+会客空间。

△原始户型
多余客卧改造成书房,注重洄游动线的设计,墙体两侧收纳,兼顾书房和厨房一侧的收纳需求;
②次卧套升级,配备完整的衣帽间和卫生间;
③扩充厨房面积,增加吧台和料理台区域;
④保姆间改成功能齐备的家政间;

△户型设计
于是乎,在这套#淮海名邸#的大平层里,可以欣赏到非凡软装带来风格的艺术性以及建筑布局带来的独创性。
02
客餐厅+书房
/
空间融合,平层庭院
运用建筑的手法整合书房与客厅,开放、递进的空间与经典庭院布局有几分相似,客餐厅摩登现代的家具珠玉在前,中式家具气定神闲地压阵,使空间有了层次丰富的故事性。



沙发:EthanAllen曼斯菲尔德三人沙发
装饰椅:Caracole完美时光布艺沙发椅
装饰架:EthanAllen克拉克斯堡展示架
03
主卧
/
质感与用色协奏曲
正如Coco Chanel手袋一样富有标志性,这款菱形绗缝Signature皮革床优雅精致,棱角分明、奢华有型定调整个主卧的凝练气场。





04
其他空间
/
是个体,也是整体
次卧灰绿色的绒面软包使空间整体有延伸感,与灰调家具相称,更添卧室柔和的包容感。

厨房是光与影的交汇,料理区域引入光,明亮而干净,水吧区域融入影,朦胧而生动,三餐四季、美酒小憩,丰富人与空间的关系。



从居住出发,将楼盘气韵、功能设计解构,使空间整体一气呵成,形成立体的视角,让艺术与生活相融,让生活与艺术相生。