在忙碌了一天后,走进自己精心布置的卫浴间泡个澡,可见洗浴已不再局限于单纯的洁净身体,而是追求身心舒适的一种品质生活。那么,浴缸购买好了之后,如何安装又是一个问题。今天,编辑就来分析一下吧!如果你有关于施工方面的疑惑,可以留言或私信编辑(13916825247),随时咨询,编辑也会拉你进入装修情报的施工监理读者群哦!

▲浴缸可能是每个人规划装修时的愿望,从实用的角度出发,家庭成员中如果有老人、小孩,浴缸更加安全、舒适。但在有限的浴室内安置浴缸却是件头疼事,然后找到合适的尺寸,满意的功能,则要早早下手。
1、不同户型,选不同浴缸

▲大部分放弃浴缸妥协,多数是因为国内卫生间普遍较小,即使房子整体面积不小,但浴室却依旧局促。所以,选择浴缸的第一步就是可否实现,常规的浴缸长度多在 1500~1800mm 之间,是较为舒适的尺寸。宽度则影响不大,多为 700~750mm 。但多数厂商会有特殊尺寸产品,以让小空间也可容纳浴缸。

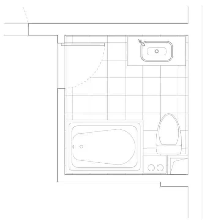
▲为较为常见的方形浴室,门在一个角落,建筑原始排水见布局。即使不安排浴缸,也能看出洗浴空间和马桶有交叉,如果做常规隔断,马桶使用时就出现“面壁思过”的不便之处。除了喜欢泡澡之外,父母也可以利用浴缸方便为孩子洗澡,洗澡时可以玩打消了小孩怕洗澡的顾虑。

▲在没有改动马桶排水的前提下,马桶逆时针 90°,原淋浴区改为浴缸。虽然长度低于标准只有 1200mm,但深度加大,储水量增加,即使成人使用也较为舒适。小尺寸浴缸多为亚克力材质,重量轻,对于改造承重方面不必担心。与铸铁、钢瓷釉浴缸相比,缺点是耐磨性低,正常使用会有划痕,抗冲击性低,正常使用无碍,避免使用利器接触。

▲如果卫生间面积够大,在考虑浴缸的同时,需要将淋浴一并考虑。如果马桶影响了整体布局,也不必担心。无论是使用普通马桶+移位器避让,还是使用隐蔽水箱+壁挂马桶,都可以优先解决布局问题,比起浪费的空间和日后数年的使用,这点改造非常值得。

▲有了淋浴区,浴缸龙头就可以使用单龙头,无需花洒,可以注水即可。追求淋浴体验,可以选择有多种出水模式的花洒,如果是空气注入除了洗澡体验舒爽,冲的久也不必担心浪费热水。追求耐用、品质、综合性能,铸铁搪瓷和钢瓷釉是首选。除了常规的嵌入式结构,转角、异形、独立也都有选择,价格略高于亚克力。
2、不同浴缸,找不同安装

▲浴缸安装,首先,需要了解,浴缸放置的形式。一般浴缸的放置形式有两种独立式与嵌入式,搁置式即把浴缸直接搁置在浴室地面上,这种方式施工方便,容易检修,适合于在地面已装修完的情况下选用。

▲而嵌入式浴缸是将浴缸全部嵌入或部分嵌入到台面中,嵌入式浴缸相较而言,进出轻松方便,适合于体弱者使用。

▲独立式浴缸安装较简单。其中进出水口的安装是重点问题。在安装之前就要先储备或修改好浴缸出水口和其他通道,然后把浴缸放置在两块木条上,连接上下水,尝试在浴缸里注水,检查下水是否渗漏。若无渗漏,则可把木条取出。浴缸基本安装完成。

▲嵌入式浴缸安装重点在于做好防水。主要步骤有,做好浴缸的管道后,为了达到防水的功效要将开槽部位重点补好,最好在一两天之内检测是否会漏水,正常的顺序下铺好地面,使用泡沫砖垫好嵌入式浴缸,高度一般在60cm以内,注意在下水管的位置备着250x300mm正常大小的检修孔。

▲检查浴缸水平、前后、左右位置是否合适,检查排水设施是否合适,要安装稳固,安装过程中对浴缸及下水设施采取防脏、防磕碰、防堵塞的设施,角磨机、点焊机的火花不要溅到浴缸上面,否则会对釉面造成损伤,影响浴缸美观。

▲此外,按摩浴缸安装必须设置接地线和漏电保护开关,安装时注意将电插头接好后,在接垫板周围做好防水,避免发生漏电事故。连接水管前要做马达的通电试验,试听其声音是否符合要求。

▲带支架的浴缸安装前,应检查浴缸安放地面是否平整;将浴缸放到预留位置后,应借助水平尺并调整支撑脚螺母,直至浴缸水平。

▲注意浴缸保护,在浴缸安装和房屋装修过程中,可以用柔软材料覆盖浴缸表面,勿在浴缸上站立施工,或在浴缸边缘放置重物,以防止损坏浴缸。浴缸安装24小时后,方能使用。
编辑留言:
最后,各位读者需要注意的是,浴缸安装水管管道要选对,浴缸的下水管道建议使用稍微呈倒S型的,这样有效防止下水道返臭,不过在使用时,卫生方面也要稍微注意,S型的管道容易堵塞,而且清洁也比较麻烦。如果你有关于施工方面的疑惑,可以留言或私信编辑(13916825247),随时咨询,编辑也会拉你进入装修情报的施工监理读者群哦!
点击“了解更多”,编辑带你进入装修情报的读者群!