装修本就让人很烦恼,如果再过多的追求造型,各种细节问题简直会让人崩溃。所以不少人开始追求简约装修,围绕轻装修重装饰理念,硬装不造型少吊顶,将重心转移到软装搭配上,通过软装表达出理想的风格类型。比如接下来这套案例,90㎡的两居室,没造型少吊顶,不做电视墙,通过软装表达原野的美式格调,融合纯净的黑白灰和质朴木纹,打造简约精致无比的居家空间,回归自然让人倍感宁静舒适。(设计:瀚高设计)

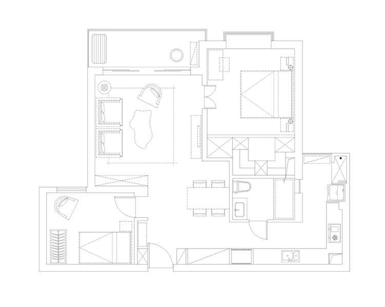
装修平面图,户型规整实用,两居室的格局满足一家三口住宿需求,开放式的厨房设计,让居家动线更灵活流畅。

入户进门,组合式鞋柜设计非常满意,不仅满足了收纳、换鞋凳和挂衣物等需求,还兼顾儿童房隔断作用,虚实结合的设计,又避免了视觉呆板,整体美观实用。

客厅自然素雅,没有复杂的造型也没有吊顶设计,大白墙搭配石膏线,简洁又耐看。天然质朴的木纹家具,呈现出回归自然的生活方式,宁静舒适又精致无比。双向推拉门设计,给室内带来了充足的采光和通风条件,搭配浅色调窗帘,空间更显轻盈。

沙发一侧定制了通高收纳展示柜,摆放书籍和装饰品,坐在沙发随手取阅,享受阅读的乐趣与居家的闲适。盆栽绿植的点缀,给客厅增添些许绿意生机,也是生活的一份诗意和浪漫。

电视墙不做任何造型,也没有任何的装饰,一面干净整洁的墙面足够了。自然木纹的电视柜,落地款式还不错,唯独清洁的时候有点费事。


家里唯一吊顶的区域,安装中央空调没办法。吊顶与储物柜之间的衔接很到位,视觉效果很不错,不会很突兀。吊顶一直延伸到厨房,拉平处理高度统一更美观。进入厨房过道等距离安装筒灯,保持照明的均匀与协调。

餐边柜与冰箱整合,整齐统一满足收纳又不影响其他空间。浅灰色的柜门,略带几分素雅高级。辅助照明设计,让餐边柜使用不背光更舒适。


转角厨房,开放式设计动线更灵活,借助生活阳台采光,整个空间通透明亮。顶吸油烟机很好的隐藏在吊柜内部,整体效果更显美观一体。利用白色橱柜和地铁砖平衡空间感,平添几分简约时尚。

餐厅布置在空间转角处,桌椅颇具时尚感,简易的外观造型让空间更显通透。墙面安装窗户造型的装饰镜,扩大视觉空间,不仔细看还真以为在墙面做开窗处理呢。


卫生间局部留白,其他区域采用白色地铁砖装饰,让卫浴空间更显敞亮。马桶上方安装隔板架,摆放一些绿植和卫浴用品,收纳、净化空气两不误。


主卧一抹浅灰色调的背景墙,增添了几分雅致静谧。大面积的白色搭配天然质朴的木质家具,明亮中透露着自然舒适。中央空调出风口,完美地和衣帽间结合,丝毫不影响美观。


儿童房空间不是很大,家具选择上避免大尺寸和厚重感,以舒缓的灰色、白色和木色为主。一面浅灰色的背景墙,避免大白墙的单调,多了一份素雅精致。

阳台采光和视野都很不错,搭配略带复古风的家具,别有一番精致闲适。一本书、一杯咖啡,享受独处的悠闲与慵懒的阳光。
看完装修感觉不错吧,轻装修重装饰,通过软装表达出居家格调,不念过往不畏将来,回归自然的生活方式,让人倍感宁静舒适,又精致无比。