买房 / 维权 / 验房 / 专车
各类房产咨询服务可加小编微信
↓ ↓ ↓ ↓
渔猫买房(ymmf1212)
加微信后可直接留言,小编看到后将及时回复

楼市热闹不减,今天中冶盛世滨江和创维宏悦府进行公证摇号,共有1431组客户摇428套房源。另还有三盘于昨日和今天新领销许,分别为熙悦、林景象山墅院、中国铁建青秀城,共492套房源等上市!
—— 新 摇 号 ——
1.中冶盛世滨江
项目新领4、5、6号楼房源销许,9-11层高,户型面积为150、173、238㎡,共116套房源,销许均价37664—40345元/㎡。今日(12月19日)9:30进行公证摇号,116套房源共531组购房者参与摇号,中签率21.8%。
项目地址:南京鼓楼区龙江路与郑和中路交汇处
开发商:南京临江老城改造建设投资有限公司
销许均价:37664—40345元/㎡
摇号顺序




户型图:


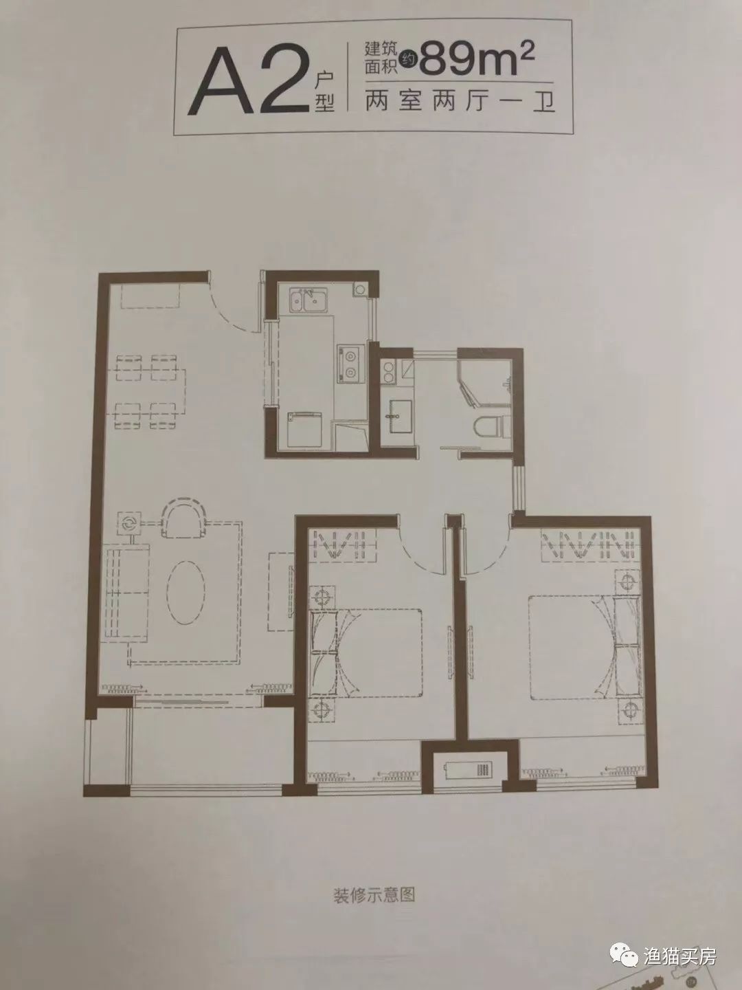
2.创维宏悦府
项目12月14日新领2、3、10号楼住宅销许,共计312套毛坯房源,户型面积约89、93、96、102、109、111㎡,销许均价8350元/㎡,均为毛坯交付,拟交付时间为2020年10月31日。
项目暂定今日下午17时公证摇号,共有900组客户参与,中签率34.7%!
项目地址:东侧为群力大道,北侧为中兴路,西侧为123省道,南侧为团山路
开发商:南京维恒置业有限公司
参考均价:8350元/㎡

户型图:




—— 新 销 许 ——
3.熙悦
熙悦自从6月底首开以来,就当之无愧为南京“最勤劳的楼盘”,几乎月月推新房源,这个月也不例外。
项目11月刚推B地块6号楼住宅,共132套精装房源,户型面积89、99、128㎡。今日又新领10号楼房源销许,户型面积为89、99、105㎡,共131套房源,销许均价28900元/㎡,预计2020年12月30日精装交付。
项目地址:麒麟中心区域,有轨电车南湾营街站旁
开发商:南京锦安中垠房地产开发有限公司
参考均价:28900元/㎡
销许截图:

户型图:



4.林景象山墅院
项目昨日新领21-25、27、28号楼房源销许,户型面积为405-711㎡,共计12套房源,销许均价32601-35000元/㎡,预计2019年12月31日毛坯交付。
项目地址:江浦街道白马路89号
开发商:江苏通宇投资有限公司
参考均价:32601-35000元/㎡
销许截图:

效果图:

5.中国铁建青秀城
项目于昨日新领8、15号楼房源销许,户型面积为88、106、109、134㎡,共348套房源,现房交付。整体精装均价约29300元/㎡。值得一提的是,本次是项目时隔两年后再次领取销许。
项目地址:迈尧路与经五路交汇处
开发商:中国铁建房地产集团江苏公司
参考均价:29300元/㎡
销许截图:


户型图:


—— 新 房 源 ——
6.碧景山庄
据碧景山庄置业顾问透露,本月底项目预计加推最后的13、14栋楼,户型面积78、108㎡,共计252套房,均价预计在12000-13000元/㎡,置业顾问讲述,13、14号楼目前已经完工,现房销售,预计明年6月就能交付。
自今年9月亚泰梧桐世家收官之后,大厂一度陷入新房“断粮”状态,仅剩的两大老盘君悦花园、碧景山庄,也捂盘两年之久,开盘遥遥无期!项目本次将加推房源,可以预见开盘效果一定不会差。
项目地址:大厂丁家山路2号
开发商:江苏华亚房地产有限公司
参考均价:12000-13000元/㎡
户型图:


