现如今,新风除湿一体机走进了更多的家庭了。市面上常见的有吊顶式的、壁挂式的,柜式的却不是很常见。今天我们来看下氧风柜式新风*湿机除**的安装案例吧。柜式新风*湿机除**相比于吊顶式和壁挂式的,更加有优势的方面在于放置位置比较灵活,维护更加便利。目前氧风的柜式新风*湿机除**,同时支持手机APP和微信公众号远程控制。消费者可以根据个人喜好,选择*载下**“氧风新风”APP或者在“氧风新风系统”的公众号进行控制,无论在国内的各个角落还是在某个外国,都可以实现远程操控。
南宁业主家的房子已经装修了一半,这时候更加感受到除湿的重要性,于是他们跟专业新风除湿品牌“氧风”取得了联系。现在要找到氧风可是容易多了,无论在京东、天猫、淘宝、阿里巴巴,慧聪网、百度爱采购等等平台,我们都可以找到氧风的店铺。因为装修进行了一段时间的缘故,现场很多情况限制了安装,包括打孔、排水等等问题。最终氧风设计师根据现场情况,推荐了柜式新风除湿一体机,下面我们截图两张安装前的对话,还原下安装前的情景。

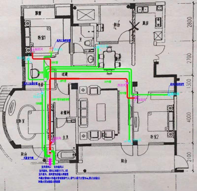
氧风设计师根据现场情况与业主做了沟通,同时结合师傅现场勘查情况,确定了机型,给出设计方案。设计方案如下图:

柜式新风*湿机除**采用木箱包装,体型跟重量都是不小哦,见下图:

安装的位置得天独厚有木有?就是在阳台,机器跟房子的不少房间和客厅都隔开了,声音自然可以很好控制。下图中的机器朝向室外新风管道,做下保温,这个小细节可是要做到位的。

见下图黑色的一整条,这是啥玩意?哈哈,这个就是传说中的定制消音管道,风只要跑到里面去,噪音就被吓跑了,就能乖乖的安静下来了。不厌其烦的再科普下,红色的这根是风口消音管道。

由于安装图片没有保存到位,小氧感到深深的自责,就不能分享更多图片给大家了。本篇小文就介绍到这里了。现在给大家一个问题,买新风*湿机除**选哪家?
恭喜答对了,一个更用心的新风品牌--氧风。