俗话说“落叶归根”,大多数人在外挣到了足够的钱,就会回老家建房,做到在外有房,在乡有家。那说到建房,现在老家的房子也不像从前,找个师傅建起来就成,现在都会找个好的设计师将房子从里到外的设计一遍,这样建起来的房子看起来美观,住起来舒适,相信你在这样的房子里住下去,幸福感蹭蹭上涨,再也不想在城里小房里蜗居了。一起看看这四款二层别墅吧!
第一款:面宽14米简欧温馨两层小别墅设计图,带车库户型

效果图展示
14米×12米,老虎窗设计很亮眼。这款二层农村别墅外墙采用文化石和真石漆搭配,美观又有内涵,非常有品位。户型小,造价低,在农村建造它非常实用不浪费。一层设有车库,设置了南向采光的老人房,客厅和餐厅也采用了南向采光,二层设有3个卧室,还设有大露台和阳台,更具有实用性。
占地面积 :14m*12m,173.28平方米左右;
建筑层高 :二层;
建筑高度 :10.725米(含屋顶);
设计功能 :
一层户型:客厅、厨房、餐厅、卧室(带娱乐室)、车库、卫生间;
二层户型:客厅、娱乐室、卧室(带书房)、卧室x2、卫生间、露台、阳台

户型图展示

户型图展示
第二款:120平精美二层别墅房屋设计图,外观造型耐看又实用

效果图展示
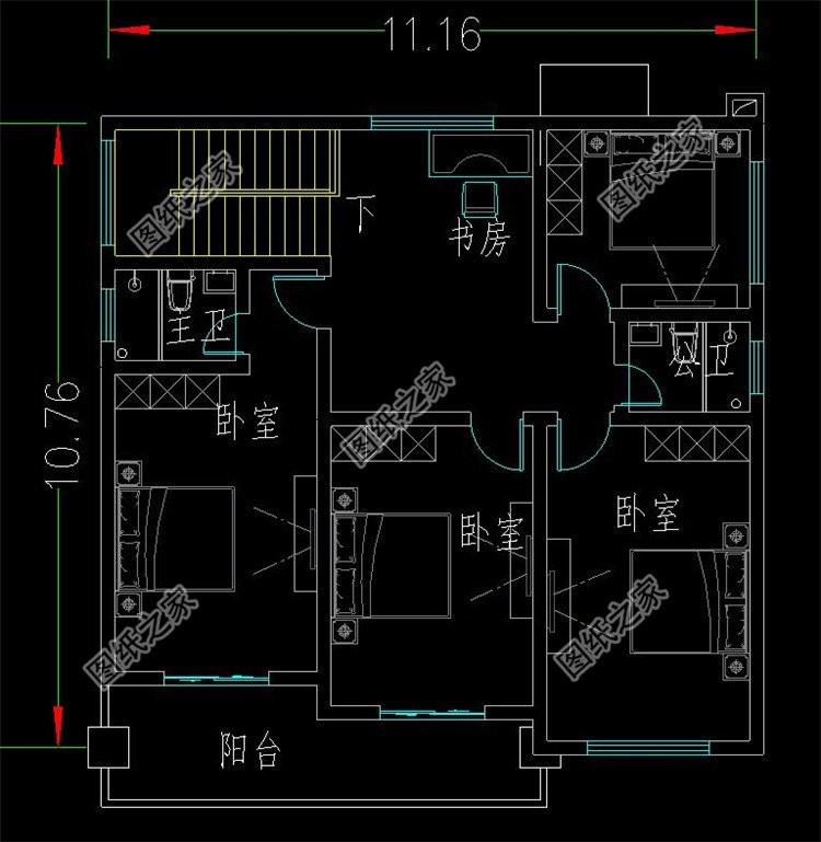
经典永流传,别墅采用人字形屋顶造型,外墙采用灰色涂料作为装饰,最底层用文化石作为装饰,让整个房子造型更加的有活力。多窗设计满足室内采光,南北通透,玻璃装饰露台让整体房子看起来更加的灵动耐看。 占地面积: 11.16m*10.76m,121.48平方米左右; 建筑层高 :二层; 建筑高度: 9.745米(含屋顶); 设计功能: 一层户型:客厅、中西厨房、餐厅、卧室(带卫生间)、棋牌室、卫生间;二层户型:书房、卧室(带卫生间)、卧室x3、卫生间、阳台;

户型图展示

户型图展示
第三款:165平方米新农村两层施工建筑设计图以及户型图,新中式风格

效果图展示

效果图展示

效果图展示
户型不大不小。对于一家人的生活需求,完全能够应付得来,方形罗马柱屹立在门前,凸显时尚气派。别墅每层都配有老人房,方便老人的生活起居,二层客厅连接阳台,保障了室内的通风与采光,白天可以晾晒衣物,晚上还可以在露台处摆放睡椅,观望星空美景
占地面积:15.6m*11.1m,164平方米左右;
建筑层高:二层;
建筑高度:10.13米(含屋顶);
设计功能:
一层户型:玄关、客厅、厨房+土灶房、餐厅、棋牌室、杂货间、老人房、客房、卫生间x2;
二层户型:客厅、书房、棋牌室、老人房、卧室x2、卫生间、阳台、露台;

户型图展示

户型图展示
第四款:简约精致的二层自建房子设计图以及户型图,农村建房经济实用

效果图展示
简单大气,不火才怪,外观上采用的是最耐看的黄色和褐色墙砖装饰,屋顶采用灰色琉璃瓦,这两种材质的结合,可以确认是不管多久看都是不会过时。布局上很经济实用,建造此户型既居住舒适,又美观不浪费。房屋整体与自然很协调,让人居住室内,又置身自然的感觉。
占地面积: 11.76m*8.26m,89.76平方米;
建筑层高: 二层;
建筑高度: 8.50米(含屋顶);
设计功能:
一层户型:客厅、厨房、餐厅、卧室、卫生间;
二层户型:茶座、卧室x3、卫生间、露台;

户型图展示

户型图展示
以上就是小编推荐的农村二层别墅设计,你家选好哪款了吗?