
为提高*党**政机关公文的规范化、标准化水平,2012年6月29日,国家质量监督检验检疫总局、国家标准化管理委员会发布了《*党**政机关公文格式》国家标准(GB/T 9704-2012)。该标准于2012年7月1日起正式实施。此标准是对国标《国家行政机关公文格式》(GB/T 9704-1999 )的修订,对公文用纸、印刷装订、格式要素、式样等作出了具体规定。
公文用纸幅面尺寸
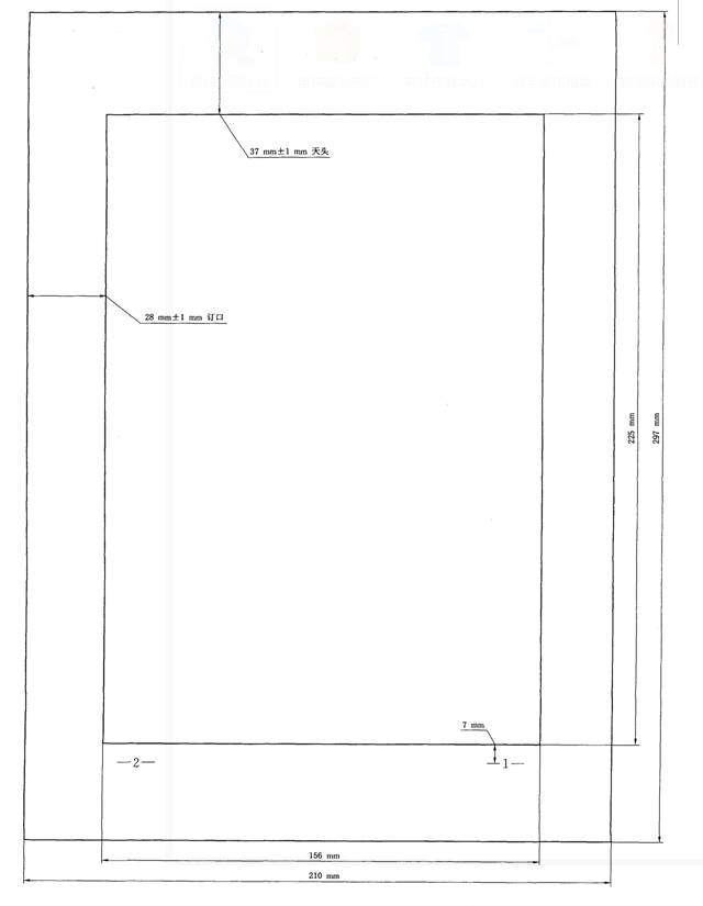
公文用纸采用GB/T 148中规定的A4型纸,其成品幅面尺寸为:210 mm×297 mm。
页边与版心尺寸
公文用纸天头(上白边)为37 mm±1 mm,公文用纸订口(左白边)为28mm±1mm,版心尺寸为156 mm×225 mm。

字体和字号
如无特殊说明,公文格式各要素一般用3号仿宋体字。
行数和字数
一般每面排22行,每行排28个字,并撑满版心。
发文机关标志
由发文机关全称或者规范化简称加“文件”二字组成,也可以使用发文机关全称或者规范化简称。
发文机关标志居中排布,上边缘至版心上边缘为35mm,推荐使用小标宋体字,颜色为红色,以醒目、美观、庄重为原则。
联合行文时,如需同时标注联署发文机关名称,一般应当将主办机关名称排列在前;如有“文件”二字,应当置于发文机关名称右侧,以联署发文机关名称为准上下居中排布。

单一机关发文带“文件”二字

多个发文机关联合发文不带“文件”二字
发文字号
编排在发文机关标志下空二行位置,居中排布。年份、发文顺序号用阿拉伯数字标注;年份应标全称,用六角括号“〔〕”括入;发文顺序号不加“第”字,不编虚位(即1不编01),在阿拉伯数字后加“号”字。
上行文的发文字号居左空一字编排,与最后一个签发人姓名处在同一行。

签发人
由“签发人”三字加全角冒号和签发人姓名组成,居右空一字,编排在发文机关标志下空二行位置。“签发人”三字用3号仿宋体字,签发人姓名用3号楷体字。
如有多个签发人,签发人姓名按照发文机关的排列顺序从左到右、自上而下依次均匀编排,一般每行排两个姓名,回行时与上一行第一个签发人姓名对齐。

单个签发人

多个签发人
版头中的分隔线
发文字号之下4mm处居中印一条与版心等宽的红色分隔线。
标题
一般用2号小标宋体字,编排于红色分隔线下空二行位置,分一行或多行居中排布;回行时,要做到词意完整,排列对称,长短适宜,间距恰当,标题排列应当使用梯形或菱形。
主送机关
编排于标题下空一行位置,居左顶格,回行时仍顶格,最后一个机关名称后标全角冒号。
正文
公文首页必须显示正文。一般用3号仿宋体字,编排于主送机关名称下一行,每个自然段左空二字,回行顶格。文中结构层次序数依次可以用“一、”“(一)”“1.”“(1)”标注;一般第一层用黑体字、第二层用楷体字、第三层和第四层用仿宋体字标注。
附件
如有附件,在正文下空一行左空二字编排“附件”二字,后标全角冒号和附件名称。如有多个附件,使用阿拉伯数字标注附件顺序号(如“附件:1. XXXXX”);附件名称后不加标点符号。附件名称较长需回行时,应当与上一行附件名称的首字对齐。

单个附件

多个附件
发文机关署名、成文日期和印章
成文日期一般右空四字编排,印章用红色。

单一行文发文机关

两个机关联合行文

五个机关联合行文
版记中的分隔线
版记中的分隔线与版心等宽,首条分隔线和末条分隔线用粗线(推荐高度为0. 35 mm),中间的分隔线用细线(推荐高度为0. 25 mm)。首条分隔线位于版记中第一个要素之上,末条分隔线与公文最后一面的版心下边缘重合。
抄送机关
如有抄送机关,一般用4号仿宋体字,在印发机关和印发日期之上一行、左右各空一字编排。“抄送”二字后加全角冒号和抄送机关名称,回行时与冒号后的首字对齐,最后一个抄送机关名称后标句号。
如需把主送机关移至版记,除将“抄送”二字改为“主送”外,编排方法同抄送机关。既有主送机关又有抄送机关时,应当将主送机关置于抄送机关之上一行,之间不加分隔线。

版记要素
页码
一般用4号半角宋体阿拉伯数字,编排在公文版心下边缘之下,数字左右各放一条一字线;一字线上距版心下边缘7 mm。单页码居右空一字,双页码居左空一字。公文的版记页前有空白页的,空白页和版记页均不编排页码。公文的附件与正文一起装订时,页码应当连续编排。
