

你是不是也属于这一类人,家里眼看要装修了,说不出自己究竟想要什么,只知道自己不要什么,对原始房子有哪些不满意的地方。满心期待找一个专业的团队帮你的新家打造的超乎你想象,就像“梦想改造家”里面*放播**的每一期栏目那么神奇。
本案就是一个很典型的老破旧翻新案例,对比以前的原始入户图片和全新装修好的图片,会发现有了翻天覆地的改变。
关于家的故事
业主的职业:男业主是警察,女业主是企业HR
业主平日爱好:男女业主平日在家作息比较不规律,男业主晚上加班较多
男业主最喜欢楼下吧台区域,他是警察,平时上班和休息时间和女业主是交叉的,能够有时间一起聚在家里的时光,他最喜欢和老婆一起在吧台吃饭或者喝点红酒,感觉特别有家的归属感;
女业主最喜欢楼上看到落地窗方向的位置,整体层高和大落地窗让她望向窗外看着特别惬意和舒心,看书听音乐就喜欢在这个区域。

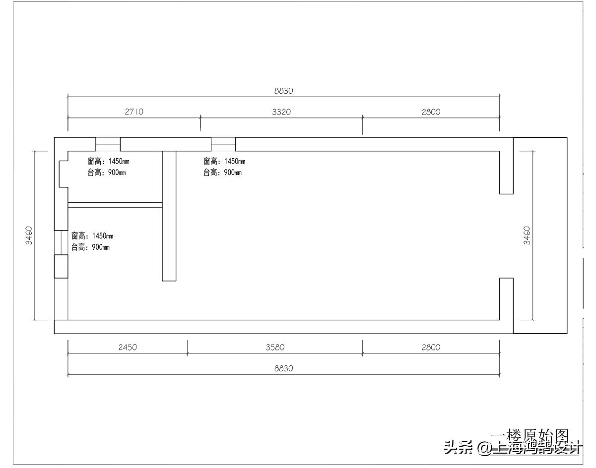
原始户型严重待解决问题:
1)原来厨房台面太短,卫生间从厨房步入;
2)原始楼层是错层,厨房区域较低,客餐厅区域落差25公分,最大的改造难点在于错层的合理修复;
3)原始室内采光特别差,特别是厨房和卫生间区域;
4)二楼需要重新搭建出一个新的卫生间,将楼上做成私密性主卧套卫加衣帽储藏;
5)老厂房靠近马路边,隔音效果很差;
6)阁楼有天窗,原来有很严重的漏水现象;


设计改动后的户型特点:
1)增加了厨房台面的使用空间,增加吧台,两人就餐及多人聚会都可满足;
2)利用干湿分离手法,增加了卫生间的实际使用空间面积;
3)利用地面,顶面错层三层修复,使每一层空间高度更为合理(男业主身高较高,实际装修好的层高每一层在2.3左右,客厅区域为挑高)
4)顶面利用隔热棉及二次防水修复顶面漏水以及解决原始顶楼严重燥热问题;
5)利用顶面隔音棉及双层玻璃解决原始的隔音差问题;
6)改动了原来的楼梯走向,让楼下客厅面积更大,整体动线更合理;
7)软装主要以墨绿色为主要基调色,白色为辅助色全新打造北欧宜家风;
改造前后




玄关

入户增加了一个宜家收纳鞋柜,无论家的整体面积多大,该有的日常使用功能一个都不能少,穿衣镜加鞋柜以及厨房吧台,自然形成了入户玄关区域。
客厅

客厅大的落地玻璃窗让整屋的采光都有了很大改善,并且步入式玻璃窗,平时的晾晒也可以直接走到外面的小平台,功能上也非常的合理和方便。地板是实木复合的,沙发是宜家购买的两用沙发床(不到3000元人民币),偶尔有客人留宿,打开沙发床楼下就可以瞬间变成一间次卧。

站在楼上往下看,客厅配了现代简约金属色的玻璃灯,配搭墨绿色窗帘和单人沙发,感觉很舒服。女业主买了一个豆袋沙发,特别喜欢坐在楼梯上方这个角落区域看书听音乐。

客厅以灰白为基调,墨绿色为重点点缀色,楼梯扶手是特殊定制铁艺几何形状的,楼梯下方的平板门设计增加强大储物功能的同时,让整体设计看上去更加简单维和。客厅顶面局部挑空,增加了楼下最重要空间的整体高度,对比原来的老破旧小客厅看上去非常大气而不压抑。

客餐厅与厨房顶面的错层设计使进屋后的整体动线更为清晰合理,改动过楼梯后方向后的客厅让这个小家更温馨,楼梯后方自然形成了一个玄关背景墙,下面放了一个可折叠的8人餐桌椅,即使平时有朋友过来聚餐都完全不会受到任何局限。

楼梯

餐厅

平时主要是小夫妻两人居住,所以现场打造了吧台,平时两人就餐在吧台区是很温馨而有情调的小浪漫。

淘宝款的墨绿色玻璃吊杆灯等加金属椅,虽然造价不高,但是整体搭配效果还不错。
厨房


增加了厨房的操作台面,利用了台上方太洗碗机增加了台下储物空间,用鱼骨文黑白釉面砖,让白色整体橱柜看上去没有那么单调。
卫生间

没有单独设计一个卫生间的门,反而让出了洗衣机的摆放空间,同时增加干区让卫生间看上去一点都不拥挤。卫生间的私密也一点不差,在马桶和淋浴区装了黑色钛合金移门,科勒的马桶,宜家购买的台盆,加桑金色水龙头让整体卫生间区域黑白混搭的非常协调。

卧室

楼上整体的功能设计得到有效处理后,在整体色彩搭配上还是延续了整屋统一,背景墙是墨绿色的,黑色1.8*2.2的双人床,白色柜体整体搭配。

楼上主要是业主的私密空间,主卧加套卫的改动后设计,在错层位置做了衣帽间加马桶的一体空间,由于是半开放式卫生间,没有太大的湿气,所以采用了局部六角砖做点缀,上方的双层玻璃让顶楼的采光和隔热防噪音问题,都得到了很好的解决处理。
阁楼

业主寄语
其实当时在装修这套房子的时候我和老公手边的预算是非常紧张的,我们就是希望可以在有限预算范围内,能够解决这个老破旧小房子原始这么多问题,还能让这个房子的整体空间利用率更高。最最开心的就是找到了一位真正懂我们,且能够真正帮我们严格把控好预算,让我们能够把家装完且完全大变样,当我们真正住进去的那一刻,我们内心是真的很激动的,甚至于超乎我们想象的。现在我们也经常会找一些朋友到家里来聚会,朋友们也都很喜欢我们家,真的很感谢我们的设计师和为我们家装修付出辛勤劳动的施工队全体员工。
关注[上海鸿鹄设计],不错过更多精彩文章~
坚持原创、坚持更新,为大家分享更多精美的原创设计案例!(咨询设计,请私信留言^_^)