昨天

学生公寓设计
Students Apartment
提起学生宿舍,首先想起来的就是和室友在一起的温馨画面。然后就是缺乏现代家具和体面设施的居住环境。
今天就来欣赏一下国外的 3 个大学生宿舍,看一下这些有设计感的学生宿舍究竟有何不同。

01.
集装箱宿舍
ADocks

这个集装箱宿舍位于法国的勒阿弗尔码头,由 Cattani Architects 设计,宿舍全部都是用回收的集装箱组成,共有 100 个公寓房间,每个宿舍面积 24㎡,高 2.4m。实用性和承受力完全不输传统建筑。

△ 总平面图

△ 单户型平、立面图

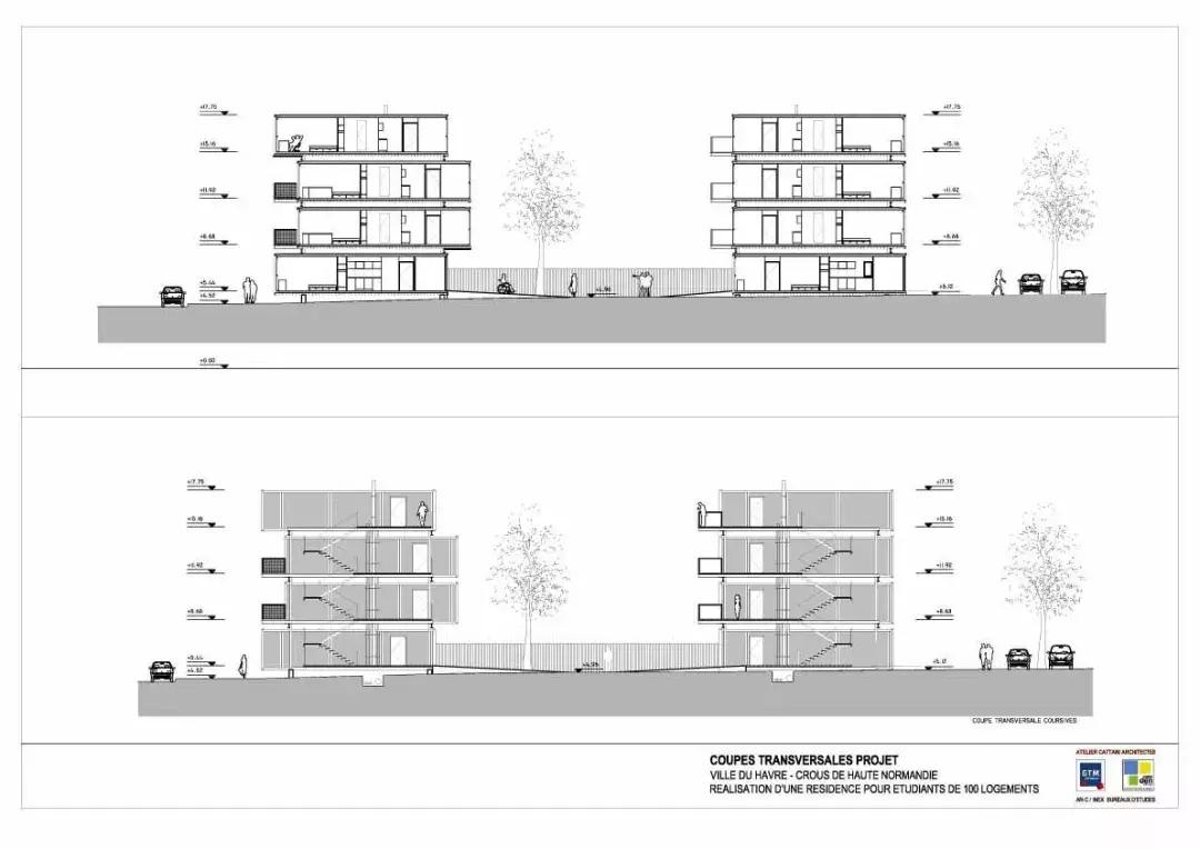
△ 剖面图

这种模块化拼层叠加的形式,处处流露出学生时期独有朝气蓬勃。同时又给人一种严谨与一丝不苟的态度,非常符合校园的氛围。



宿舍共有四个楼层,第一层比地面高,这样一来,各单元的住户都能拥有同样的隐私空间。也都能俯瞰到楼下的花园。

交错的单元结构可以腾出地方来建造人行道、庭院和露台。金属结构不仅能让人更好地辨认不同的房间,还可以促使人们更便捷地通过阶梯、露台等扩建区。



为了确保隔热和隔音效果,外墙相涂有 40cm 厚的钢筋混泥土防火墙。与此同时合成橡胶层还具有防震功能。


在内部,设计师选择了白色的墙壁和木制家具。厨房、卧室、浴室一应俱全还有无线上网设备。四面朝向都有窗户保证了足够的自然光线,从落地窗还能直接看到英吉利海峡。

△ 房间小巧可爱,不失温馨

△ 朝南的设计带来良好的采光环境




02.
环形宿舍
Tietgen

该项目位于丹麦,靠近哥本哈根大学。由 Lundgaard & Tranberg Architects 建筑事务所设计,面积为 26,515㎡,公寓可容纳约 400 名学生。

它的设计灵感来自中国土楼的设计,夺得过英国皇家建筑师学会国际奖(RIBA InternationalInternational Awards)。其设计概念是着重学生之间的沟通和交流,它是丹麦政府对未来学生居住环境的完美描绘。

△ 手绘形体分析

△ 首层平面图

△ 平面图
简单的环形设计,中心是个小广场,与周边的建筑风格形成一致,在新规划区提供了一个大胆的建筑陈述。



设计师还利用外墙的不同深度,给予人们一种结晶特征。倒映在水中的样子更是有一种别样的奇妙美感。


△ 立面形体分析


△ 局部放大平面

△ 平、立面图

△ 手绘透视草稿


凹凸的开放式露台设计,提供楼层与楼层之间的联系。

外廊、公用厨房、娱乐室和洗衣房等,每个区域的细节设计都让人感到舒适,也最大化的为学生提供了生活便利。





宿舍内的设计也非常人性化,裸露的混凝土结构和胶合板结合打造出温馨的家居空间。也让大学生活更加灿烂。

△ 剖面图

03.
水上宿舍
Urban Rigger

这个由 BIG 事务所设计的水上宿舍,位于丹麦建筑面积有 680㎡,刚建成时,在设计圈还引起了一阵轰动。

因为丹麦学生人数呈现出大量且持续的增长,城市扩张也很有限,所以设计公司在哥本哈根的港口一片未被充分开发利用的区域租了一艘货运船,在这上面用集装箱为学生们建造了一栋漂浮在水上的房子。


宿舍共有 6 个集装箱围绕而成,每个集装箱内包含 15 个居住空间。为大学生们建立起低成本的模块化集装箱式住房。



△ 宿舍模型
最顶部的空间,一块用太阳能覆盖,一块是平整的草地,剩余的一面用作休闲的空地。

底层三角中央种植了树木,剩余的部分做成下凹式的活动区域,感觉跟地面上的宿舍,并没有什么区别。


△ 架在钢结构上的木板如地面一样平整
每个学生的宿舍都有厨房、卧房、客厅。相对于陆地上的同学还能在宿舍里钓鱼、欣赏海景。



在这可以感受到不一样的宿舍氛围。







△卫生间设计地也非常私密



△暗藏的门,除了这个圆窗之外,你很难发现它在哪
住在这,白天可以下海游泳,晚上还能看港口夜景,闲着没事还能出海逛逛,真的不要太爽。




△置入水面的楼梯,放学后可以游个泳

△玩摩托艇


晚间亮起的各种颜色得灯,就像是生活在一个奇妙的世界里。

//
本文由一起设计原创撰写
欢迎分享到朋友圈
「一起设计」 专注于设计的新媒体品牌