昆山国兴奥迪4s店怎么样 (昆山国兴奥迪)

  • 项目地点:苏州昆山
  • 项目性质:商业工装
  • 建筑面积::3500平方
  • 总造价:365万
  • 施工工期:60天
  • 竣工时间:2019.05
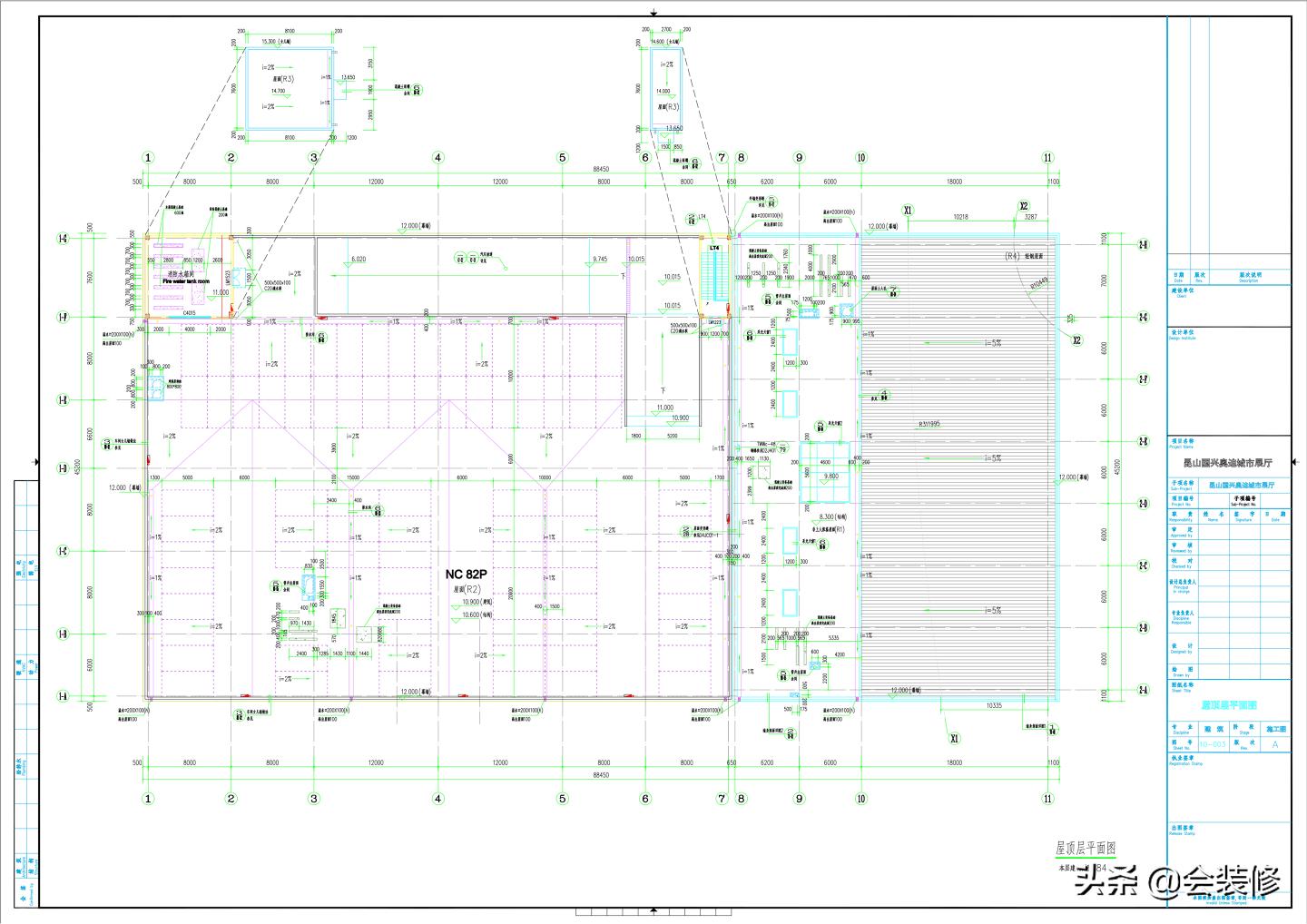
  • 平面布局

    昆山国兴奥迪,昆山国兴奥迪4s店怎么样

    昆山国兴奥迪,昆山国兴奥迪4s店怎么样

    昆山国兴奥迪,昆山国兴奥迪4s店怎么样

    工程施工对比图

    昆山国兴奥迪,昆山国兴奥迪4s店怎么样

    昆山国兴奥迪,昆山国兴奥迪4s店怎么样

    室内竣工图

    昆山国兴奥迪,昆山国兴奥迪4s店怎么样

    昆山国兴奥迪,昆山国兴奥迪4s店怎么样

    昆山国兴奥迪,昆山国兴奥迪4s店怎么样

    昆山国兴奥迪,昆山国兴奥迪4s店怎么样

    昆山国兴奥迪,昆山国兴奥迪4s店怎么样

    昆山国兴奥迪,昆山国兴奥迪4s店怎么样

    昆山国兴奥迪,昆山国兴奥迪4s店怎么样

    昆山国兴奥迪,昆山国兴奥迪4s店怎么样

    昆山国兴奥迪,昆山国兴奥迪4s店怎么样

    昆山国兴奥迪,昆山国兴奥迪4s店怎么样

    室外外墙图

    昆山国兴奥迪,昆山国兴奥迪4s店怎么样

    昆山国兴奥迪,昆山国兴奥迪4s店怎么样

    昆山国兴奥迪,昆山国兴奥迪4s店怎么样

    昆山国兴奥迪,昆山国兴奥迪4s店怎么样