项目标签
设计公司:毕路德
位置:中国
类型:建筑
材料:石材 木材
中山,古名香山,一座曾是与世隔绝的海上孤岛,有传地多神仙花卉,乃桃源胜境。几经历史变迁,无数风流人物上下求索,中山已然发展为全国领先的商业和文化并重的宜居城市。中山艾美酒店即位于具有众多历史遗址、寺庙、现代化购物商场和湿地公园的中山市港口镇,作为中山城区“北大门”首个五星级商旅目的地,楼高24层,高度达100米,是目前港口镇最高的商业建筑,被称为港口耀眼的城市天际线。
Zhongshan, known as Heung-san in ancient time, was an isolated sea island rumored to have been an earthly heaven boasting many a celestial flower. With the endeavor and commitment of generations of great figures in the history, Zhongshan has become an agreeable city to live and a leader in commercial and cultural development nationwide. Le Méridien Zhongshan is located in Gangkou Town of Zhongshan City, with monuments, temples, modern shopping malls and verdant wetland parks all close by. As the first five-star destination of business trip in North Gate of Zhongshan urban area, the 100 meter high-rise of 24 floors is regarded as the most impressive skyline of Gangkou Town.
▼酒店外观,external view of the hotel

挑高的大堂以深木色为主调,屏风层层叠进,带有庄严的阵列感,稳重而雅致。入口与尽端的亚克力山朦胧迷幻,似雨后忽远忽近的山峰。地面水纹石材顺着海的方向延续到墙面,将中山平原广布、丘陵点缀、河网密集的地貌微缩到大堂室内。接待台以山之倒影为原型进行设计,一改传统,呈分散式排布,轻盈的立于灰色石材之上,灵动有趣,消解纵深空间。玻璃钢材质的中山市花菊花花瓣被拆解重组,结合鹦鹉螺的螺旋造型,构建出各异的形态,使接待区的背景呈现出多样性。
The full-high lobby in a dark timber tone is cut by solemn arrays of screens, adding to the steady style. The acrylic mountains at the entrance and in the end offer a mystic and blurry hill view through water vapor after a nice rain. The water flows on the floor stone reach the walls seaward, turning the lobby into a veritable microcosm of Zhongshan landform of plains, hills and rich water system. The three free-standing reception counters, a rebel against ordinary design, taking the reflection of mountains in the water, rest gracefully on the grey marble as an offset to the deep space and a feature of fun and creativity. In the background, the spiral shapes of pearly nautilus consisted of glass steel chrysanthemum petals vary from each other, making the reception area more diversified.
▼通高的大堂,double-height lobby

▼接待区,reception

大堂书吧整体呈围合之势,高靠背座椅与中式格栅的运用,为创意人士营造出交流思想、碰撞灵感火花的聚会空间。古香山的辉煌过往化作条条经线脉络,汇成一幅解密城市今生与过往的探索地图,融入地毯之上。书吧上方的曲面花瓣吊饰,形散神不散,寓意着中山人团结互助、共筑历史长河的品质。
High-back chairs and grilled screens of Chinese style enclosed another part of the lobby as a library to exchange thoughts and inspirations for people with creativity.The crossed lines of the glorious past of Heung-san on the carpet facilitate the exploration of the past and the present of the city. The hanging petal accessory arranged in a random yet orderly way stands for the solidary quality of all Zhongshan people who have contributed to the local history.
▼围合的大堂书吧,enclosed lobby bar

从宽敞高耸的大堂转入相对低矮的电梯厅,一尊亮眼的绿色山形艺术品突现眼前,带来宛如洞见桃花源的意外之喜,增加宾客探索的意趣。顺着电梯“拾阶而上”,实现从山底到山顶位置的转变。一方顽石静立窗前,将外在的喧闹沉淀。紫色花纹地毯优雅内敛,营造神秘幽静的氛围。
A green artwork freezing a mountainous view as a transition from the grand lobby to the lower lift lobby would always excite guests like a utopia at the end of narrow opening, triggering them to explore further of the space. Taking the stairs up from the mountain foot to the peak, you will be greeted by a celestial stone by the window, shutting all the noise and trouble out; together with the violet-flower carpet of grace and sophistication, all you can feel is an unspoken tranquility.
▼电梯前的端景装置,artwork in front of the elevator

▼客房走廊,corridor of the guest room level

简洁的线条和清晰的体块构筑了客房空间。房间的装饰通过简明的材料糅合当代设计和传统细节,辅以低饱和度的颜色,营造出宁静、舒适的氛围。
The guest roomof simple lines and clear-cut blocks in subdued colors with plain material combination of modern design as well as traditional details is designed to be calm and comfortable.
▼宁静、舒适的客房空间,calm and comfortable guest room

玄关处的屏风灵感来源来自于中山古建筑上的镂空门扇,通过提取与简化,创造新的视觉体验。从见证了中山过往的古鹤村淘来的古木,被制成挂饰置于沙发背景墙上,质朴的手工痕迹,斑驳的色彩晕染,将古镇人民的生活智慧与审美追求一一呈现。
The screening at the foyer provides a fresh visual excitement by emulating and simplifying the pierced door panels of ancient Zhongshan buildings. The old wood sourced from Guhe Village, a witness to Zhongshan history is hand carved into a feature against the sofa. The unpolished traces of carving andbleeding colors manifest the locals’ wisdom in life and pursuit of aesthetics.
▼客房玄关处设置镂空门扇,pierced door at the foyer of the guest room


独立开敞的书房大气不失精致,低调兼具内涵。孙文纪念公园、中山詹园、中山影视城、*钟金**水库、西山寺、等中山独有景点被抽象出来,制成小画,在书房的墙上为人们*放播**着历史长河中的精彩片段。轻奢风韵、调性优雅且富有创意的艾美DNA在此得到最好的诠释。
Quiet yet sophisticated, the independent big study lacks no detail or delicacy. Abstract images of local attractions like the Sun Yat Sen Park, the Zhanyuan Garden, Zhongshan Movie Town, the Jinzhong Reservoir and the Xishan Temple unroll the history of Zhongshan on the wall. All this proves to be the epitome of the elegant, light luxurious and creative DNA of Le Méridien.
▼独立开敞的书房,independent big study room


卫生间与卧室取消界限,采用半通透的格栅门,实现空间上的互通。卓阔的空间赋予视觉以纵深感,空间也因此更加通透。
Separating the bathroom and bedroom with translucent grill partitions instead of solid division connects the two spaces to a certain degree, making the view of the room deeper and airier.
▼卧室,bedroom

▼卫生间与卧室取消界限,blur the boundary between bathroom and bedroom

每座城市都是一个不断成长的生命体,古香山与新中山的相遇,真切回应着对生活的美好向往,激发着人们对于城市奥秘的永恒探索。
Each city is a living being that constantly evolves. The encounter of old Heung-san and new Zhongshan is an earnest answer to hope for the future, driving the eternal explorationof urban mysteries by human kind.
▼其他客房空间,other guest room spaces

▼大堂平面图,lobby plan

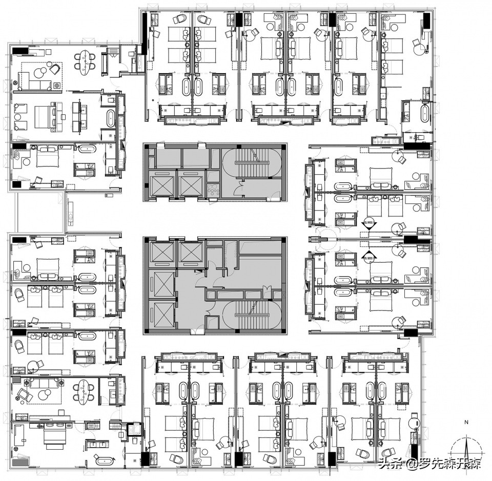
▼客房层平面图,typical plan

项目名称:中山保利艾美酒店
业主单位:保利(中山)房地产开发有限公司
设计公司:毕路德建筑
项目面积:35,327平方米
项目地点:广东中山