阅读此文前,麻烦您点下关注,方便您进行讨论分享,希望带给您不一样的观感!每天茶余饭后的低谈小论,期待您的参与,谢谢!
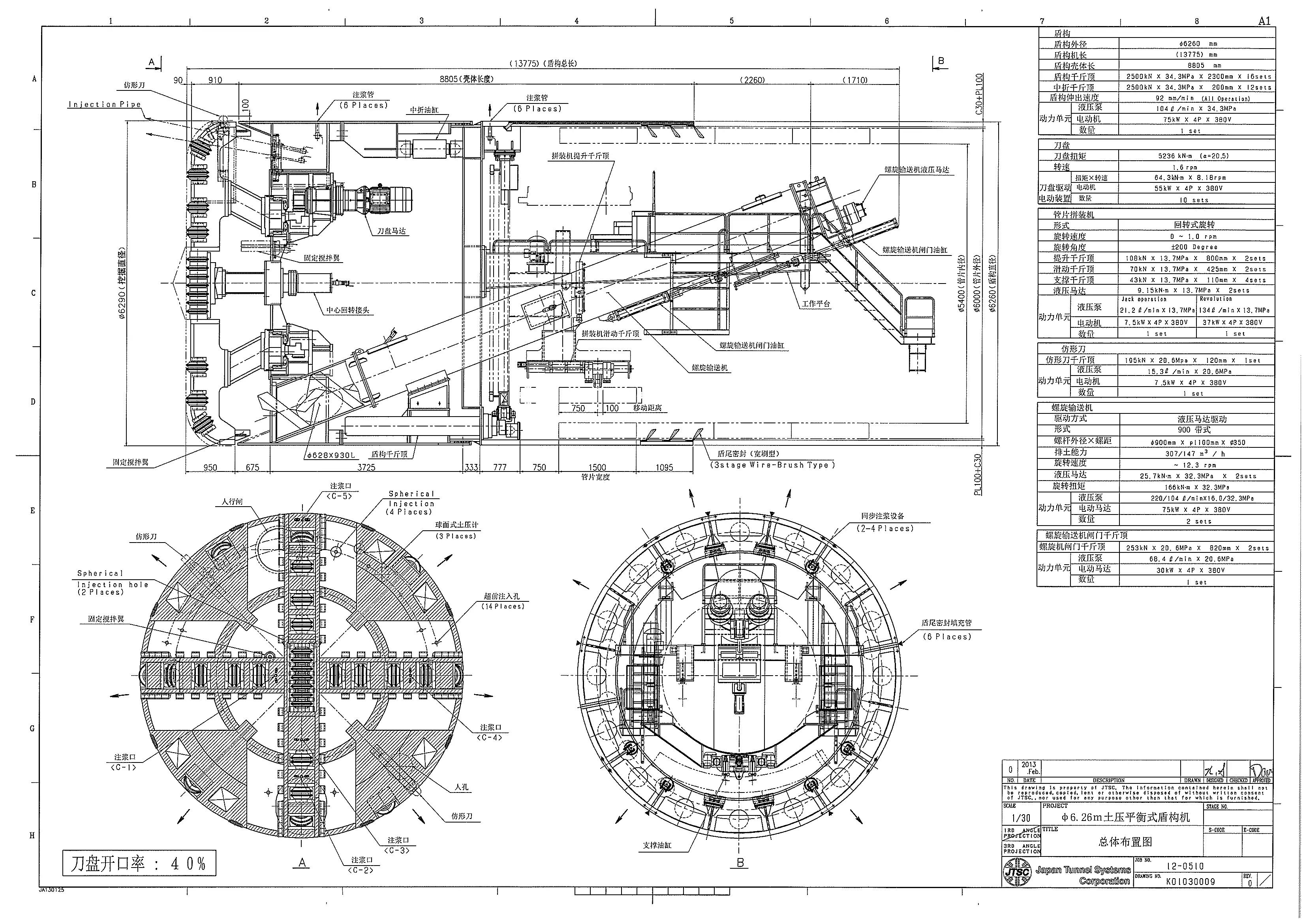
盾构机 全名叫盾构隧道掘进机,是一种隧道掘进的专用工程机械,在 基建方面被称为“基建之王” 。我国的盾构机在技术上属于世界领先水平,包括英美在内的不少国家都在我国购买盾构机,尤其是在中高端领域内,我国产盾构机占据了全世界近一半的市场。在国际市场上,我国产盾构机获得一众好评。

国产大型盾构机
2019年,印度在建设隧道是时遇上了大难题,没有合适的盾构机可以使用,但是工期又比较紧。 于是,一向要强的印度,厚着脸皮找到了我国,一下子买了8台盾构机。 按照印度的要求,我国快速制造了8台盾构机,每台盾构机全长80米,直径12.19米,全重2300吨,是印度历史上进口的最大的盾构机。但等到交货的时候,莫迪想要临时变卦,于是找来印度专家来检查,还聘请了英国的专家来检查够盾构机的质量,可查来查去,盾构机毫无质量问题,只能准备运回印度。但是盾构机体积太大,一般都是拆开之后运输,到达目的地之后再组装使用。于是双方达成协议,盾构机先在我国拆解,再由我国工程师帮助印度机进行组装。 可是没等发货,印度方面又变卦了,说只需要中国将盾构机和零件送去就行了,中国的工程师和相关技术人员不需要去印度进行组装。 印度方面表示印度的技术人员有能力对盾构机进行组装。其实大家都能看出来,印度是有想法的。 其一,印度什么都想和中国比,购买中国的盾构机已经让印度丢失了脸面,印度也想通过组装盾构机挽回一点面子。其二,印度也想通过组装盾构机,对中国产的盾构机的架构进行研究,偷学一下制造技术。 但是我国也没有在意,于是就按照印度的要求将所有拆下来的零件送到印度。

盾构机用于隧道建设
等收到零件后,印度的专家信心满满,但根据图纸研究的许久,根本无从下手。一个月过去了,印度专家组装盾构机毫无进展,于是我国就询问印度是否需要指导, 印度果断回复:没有问题,一切尽在掌握中! 又一个月过去了,盾构机依然是零散的,隧道的进度被一拖再拖,可以想象印度的专家们看着组装说明书,一筹莫展,也是一个头两个大。当初印度可是信誓旦旦说自己可以组装好的,要是回去找中国帮忙,就太丢人了。

盾构机图纸
专家们这边毫无进展,工期越来越近,施工方只能去找政府,印度政府也是十分不满,对参与组装盾构机的专家们进行训诫,图纸都看不懂,怎么研究盾构机的构造和技术呢? 半年过去了 ,印度专家们还没有将盾构机组装起来,这次是印度民众不满意了,隧道修不好,非常影响通行,耽误的工期那么长, 印度民众都觉得这次是十分丢脸。可是莫迪依旧死鸭子嘴硬,地外称我国盾构机存在质量问题,所以没有组装好,将责任推给我国。
但看着隧道的建设丝毫没有进展,莫迪政府也是没办法了,只能 再求中国派技术人员去印度进行组装。 原本盾构机就是我国生产,让我们安装,合情合理。但当时印度国内疫情严重,所以为了我国技术人员的安全考虑, 我国拒绝了 ,如果买的时候就装好不就没这回事了吗?虽然在购买盾构机这件事上,印度虽然多次耍小聪明伴并随着多次的迷之操作, 在疫情稳定后,我国还是派出了技术人员前往印度进行技术指导。
印度致力于与中国进行比拼,下决心在各个领域碾压我们。

中国在科技领域碾压印度
但没有扎实的基础,不动脑筋,不下决心搞研究,靠耍小聪明去走捷径是不可取的。 我国现在“基建狂魔”的称号,是凭的是自身努力挣来的。 印度想要成为制造业的强国,光靠买买买和投机取巧是远远不够的,还是要脚踏实地,稳步向前。
查资料码字不易,记得点赞哦!谢谢!